Выполненные проекты
Проект отопления, водоснабжения и канализации деревянного дома площадью 124 м.кв.
![]() |
![]() |
![]() |
![]() |
![]() |
![]() |
Проект отопления, водоснабжения и канализации: выполнен 04.10.2016
Объект: загородный дом площадью 124 кв.м., Московская область, Серпуховской район, КП «Арнеево»
Вариант отопления: «Комфортный»
Стоимость проекта отопления: 19 125 руб. (со скидкой 15%)
Состав проекта:
1. Пояснительная записка. Общие данные
2. Теплотехнический расчет дома.
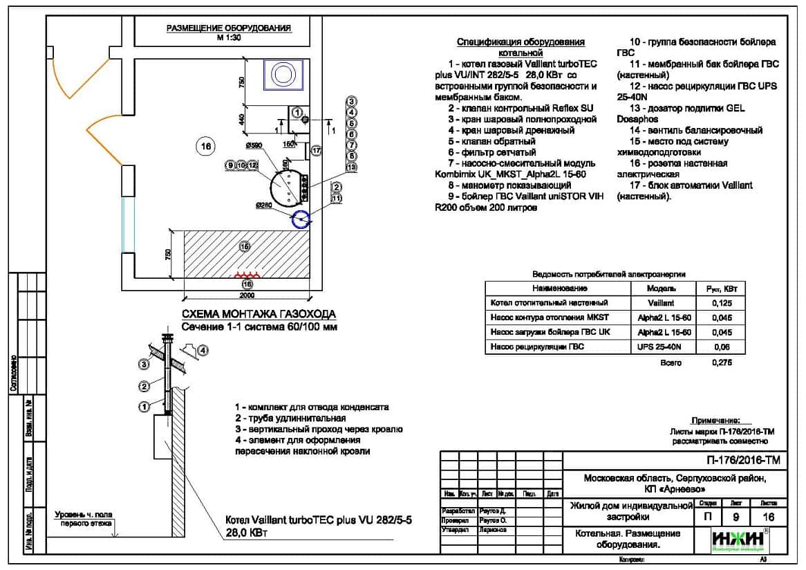
3. Тепломеханическая схема котельной с размещением оборудования.
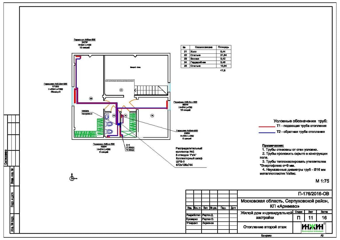
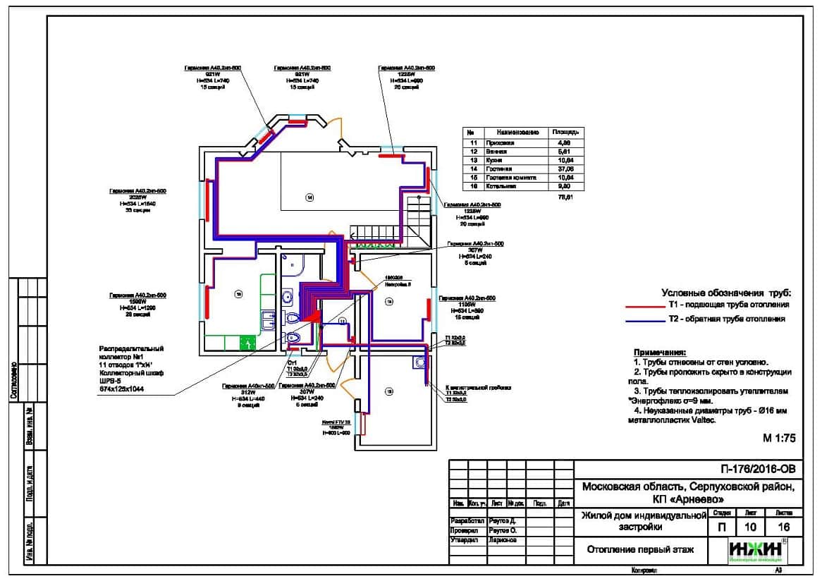
4. Комплект чертежей радиаторного отопления.
5. Комплект чертежей внутреннего водопровода и канализации.
6. Схема системы канализации (аксонометрия).
7. Спецификация материалов и оборудования.
Объем проекта: 35 листов.
Основные решения проекта отопления, водоснабжения и канализации, принятые в соответствие с заданием Заказчика.
Индивидуальная котельная частного дома.
o Котел - настенный газовый Vaillant turboTEC plus мощностью 28 кВт;
o Контуры котельной – радиаторное отопление и горячее водоснабжение (бойлер);
o Приготовление горячей воды при помощи бойлера Vaillant uniSTOR, объемом 200 литров;
o Расширительный бак водоснабжения Reflex, расширительный бак отопления встроен в котел;
o Насосное оборудование Grundfos;
o Трубы дымоходные коаксиальные Vaillant, в исполнении «через кровлю»;
o В качестве распределительного коллектора использован универсальный насосно-смесительный модуль Meibes;
o Подпитка отопления – ручная;
o Автоматика котельной – блок Vaillant calorMATIC 630/3 с блоком дистанционного управления котлом GSM-climate.
Автоматизация (вариант «Комфортный»).
o Автоматическое регулирование отопления по наружной температуре (погодное регулирование);
o Автоматическое поддержание заданной температуры в контурах отопления и горячего водоснабжения;
o Дистанционное оповещение о работе котельной установки при помощи GSM-модуля.
Система отопления дома.
o Отопление радиаторное, использованы панельные стальные радиаторы Kermi с нижним подключением, а также трубчатые секционные радиаторы Гармония А40 (КЗТО);
o Схема радиаторного отопления двухтрубная, коллекторно-лучевая, с принудительной циркуляцией теплоносителя;
o Температурный график отопления 80/60°С;
o Трубопроводы отопления – металлопластик Valtec;
o Распределительные коллекторы отопления Valtec VTc.594EMNX, на 5 и 11 отводов;
o Шкафы коллекторные Valtec, встраиваемые;
o Теплоизоляция трубопроводов Энергофлекс Супер, толщиной 9мм;
o Теплоноситель в системе отопления и теплых полов – подготовленная вода.
Внутренний водопровод.
o Схема внутреннего водоснабжения – коллекторно-лучевая, с рециркуляцией горячей воды через полотенцесушители;
o Трубопроводы системы водоснабжения – металлопластик Valtec;
o Для летнего водопровода использован наружный кран Meibes SEPP-Eis с защитой от замерзания (не требующий слива в зимний период);
o Теплоизоляция трубопроводов Энергофлекс Супер, толщиной 9мм.
Внутренняя канализация.
o Предусмотрен безнапорный отвод стоков от санитарно-технических приборов;
o Трубопроводы канализации – раструбные SINIKON;
o Теплоизоляция трубопроводов канализации Энергофлекс Супер, толщиной 13мм.



















