Выполненные проекты
Проект отопления, водоснабжения и канализации дома площадью 149 м.кв. в Тверской области
![]() |
![]() |
![]() |
![]() |
![]() |
![]() |
Проект отопления, водоснабжения и канализации: выполнен 25.10.2016
Объект: загородный дом площадью 149 кв.м., Тверская область, Конаковский район, ПГТ Козлово
Вариант отопления: «Базовый»
Стоимость проекта: 19 125 руб. (со скидкой 15%)
Состав проекта:
1. Пояснительная записка. Общие данные
2. Теплотехнический расчет дома.
3. Тепломеханическая схема котельной с размещением оборудования.
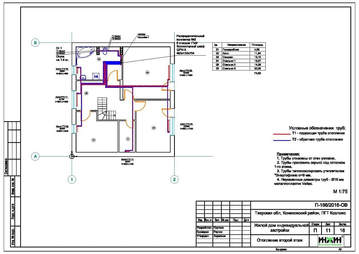
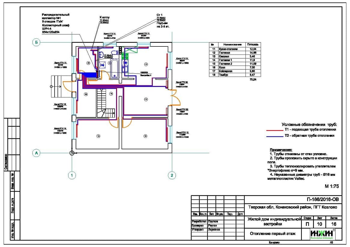
4. Комплект чертежей радиаторного отопления.
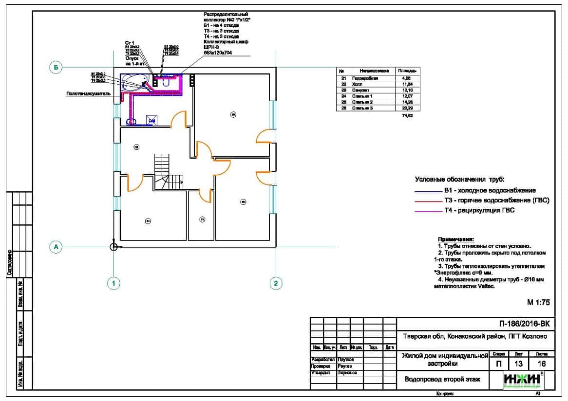
5. Комплект чертежей внутреннего водопровода и канализации.
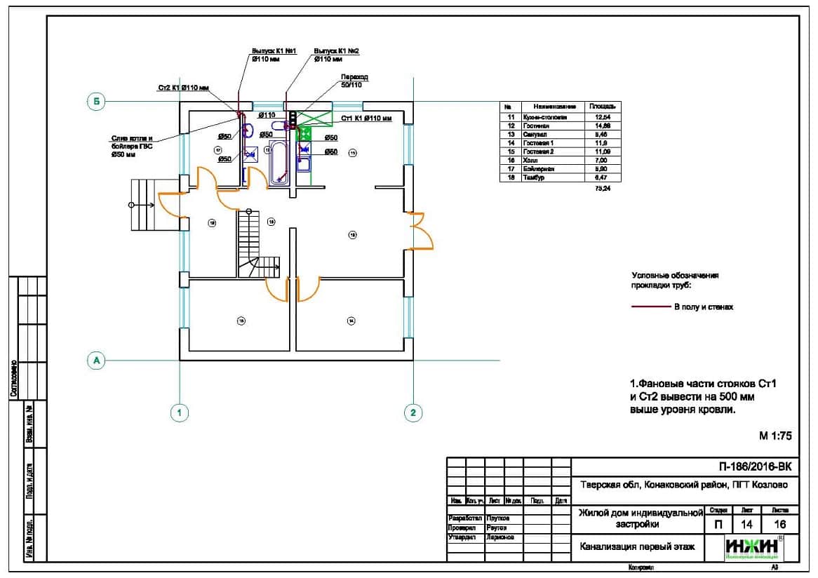
6. Схема системы канализации (аксонометрия).
7. Спецификация материалов и оборудования.
Объем проекта: 34 листа.
Основные решения проекта котельной, отопления, водоснабжения и канализации, принятые в соответствие с заданием Заказчика.
Индивидуальная котельная (проект котельной бесплатно).
o Котел - настенный газовый Vaillant turboTEC plus мощностью 24 кВт;
o Контуры котельной – радиаторное отопление и горячее водоснабжение (бойлер);
o Приготовление горячей воды при помощи бойлера Vaillant uniSTOR, объемом 120 литров, размещение под котлом;
o Расширительный бак водоснабжения Reflex, расширительный бак отопления встроен в котел;
o Насосное оборудование Grundfos;
o Трубы дымоходные коаксиальные Vaillant, в исполнении «через кровлю»;
o Коллектор в котельной не предусмотрен;
o Подпитка отопления – ручная;
o Автоматика котельной – встроена в котел.
Система отопления частного дома.
o Отопление радиаторное, использованы панельные стальные радиаторы Kermi с нижним подключением
o Схема радиаторного отопления двухтрубная, коллекторно-лучевая, с принудительной циркуляцией теплоносителя;
o Температурный график отопления 80/60°С;
o Трубопроводы отопления – металлопластик Valtec;
o Распределительные коллекторы отопления Valtec VTc.594EMNX, на 6 и 9 отводов;
o Шкафы коллекторные Valtec, пристраиваемые;
o Теплоизоляция трубопроводов Энергофлекс Супер, толщиной 9мм;
o Теплоноситель в системе отопления и теплых полов – подготовленная вода.
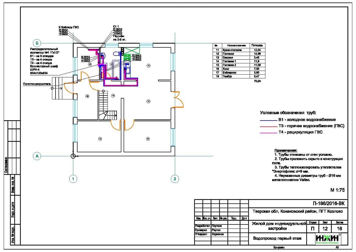
Внутренний водопровод.
o Схема внутреннего водоснабжения – коллекторно-лучевая, с рециркуляцией горячей воды у потребителей;
o Коллекторы водопровода Valtec, сборные;
o Трубопроводы системы водоснабжения – металлопластик Valtec;
o Теплоизоляция трубопроводов Энергофлекс Супер, толщиной 9мм.
Внутренняя канализация.
o Предусмотрен безнапорный отвод стоков от санитарно-технических приборов;
o Трубопроводы канализации – раструбные SINIKON;
o Теплоизоляция трубопроводов канализации Энергофлекс Супер, толщиной 13мм.
![]() |
По этому проекту выполнен монтаж системы отопления, водоснабжения и канализации. |




















