Выполненные проекты
Проект электрики дома из бревна площадью 280 м.кв.
![]() |
![]() |
![]() |
![]() ![]() |
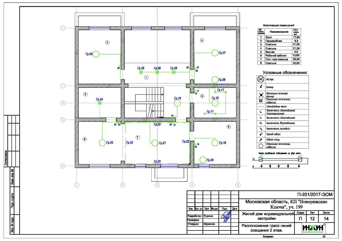
Объект: деревянный дом площадью 280 м.кв., расположенный в КП «Новорижские Ключи» Московской области
Стоимость проекта электрики: 26 180 руб. со скидкой 15% за комплексный проект электрики и отопления (проект слаботочной кабельной сети – бесплатно).
Проект электрики выполнен: 26.05.2017
Состав проекта:
1. Пояснительная записка. Общие данные
2. Однолинейные схемы вводного распределительного устройства и поэтажных распределительных щитов.
3. Чертежи кабельных трасс силовых электрических сетей.
4. Чертежи групповых осветительных сетей.
5. Спецификация материалов и оборудования.
Объем проекта: 14 листов.
Технические решения, принятые в проекте электрики, в соответствии с заданием на проектирование.
Распределительные электрические щиты.
o Проектом предусмотрен распределительный щит, размещенный в помещении тамбура и оснащенный 36-ю автоматами;
o Автоматические выключатели, дифференциальные автоматы и УЗО в щитах - Hager;
o Щитовое оборудование размещено в навесном корпусе Hager.
Силовая и слаботочная кабельная сеть (электропроводка).
o Электропроводка предусмотрена с использованием кабелей ВВГ нг –LS, а также декоративного ретро-кабеля Bironi;
o Общая протяженность линий электроснабжения и освещения – 1 353 метра;
o Электропроводка предусмотрена комбинированным способом (частично скрытым, частично открытым), в защитной гофрированной ПВХ-трубе, металлорукаве в виниловой изоляции, открыто – ретро-кабелем;
o Запроектировано 80 точек подключения розеток и выключателей освещения;
o Для системы телевидения предусмотрены кабельные трассы с использованием кабеля Cavel SAT 703, в количестве 150 метров;
o Линии локальной сети предусмотрены с использованием провода UTP 4х2х0,51cat 5e, 25 метров.
Резервное электропитание.
Источником резервного питания по проекту является мобильный бензиновый генератор (опционально).
Заземление.
Предусмотрен контур заземления на базе комплекта Ezetek EZ 6.


















