Выполненные проекты
Проект отопления, водоснабжения и канализации таунхауса площадью 157 м.кв. в КМЖЗ «Сабурово Парк»
![]() |
![]() |
|
|
![]() |
![]() |
Объект: четырехэтажный таунхаус площадью 157 м.кв., расположенный в КМЖЗ «Сабурово Парк» Красногорского района Московской области
Вариант отопления: «Комфортный+»
Стоимость проекта: 23 550 руб. (проект котельной бесплатно).
Проект выполнен: 16.06.2017
Состав проекта:
1. Пояснительная записка проекта. Общие данные по системам отопления, водоснабжения и канализации.
2. Тепломеханическая схема котельной с размещением оборудования.
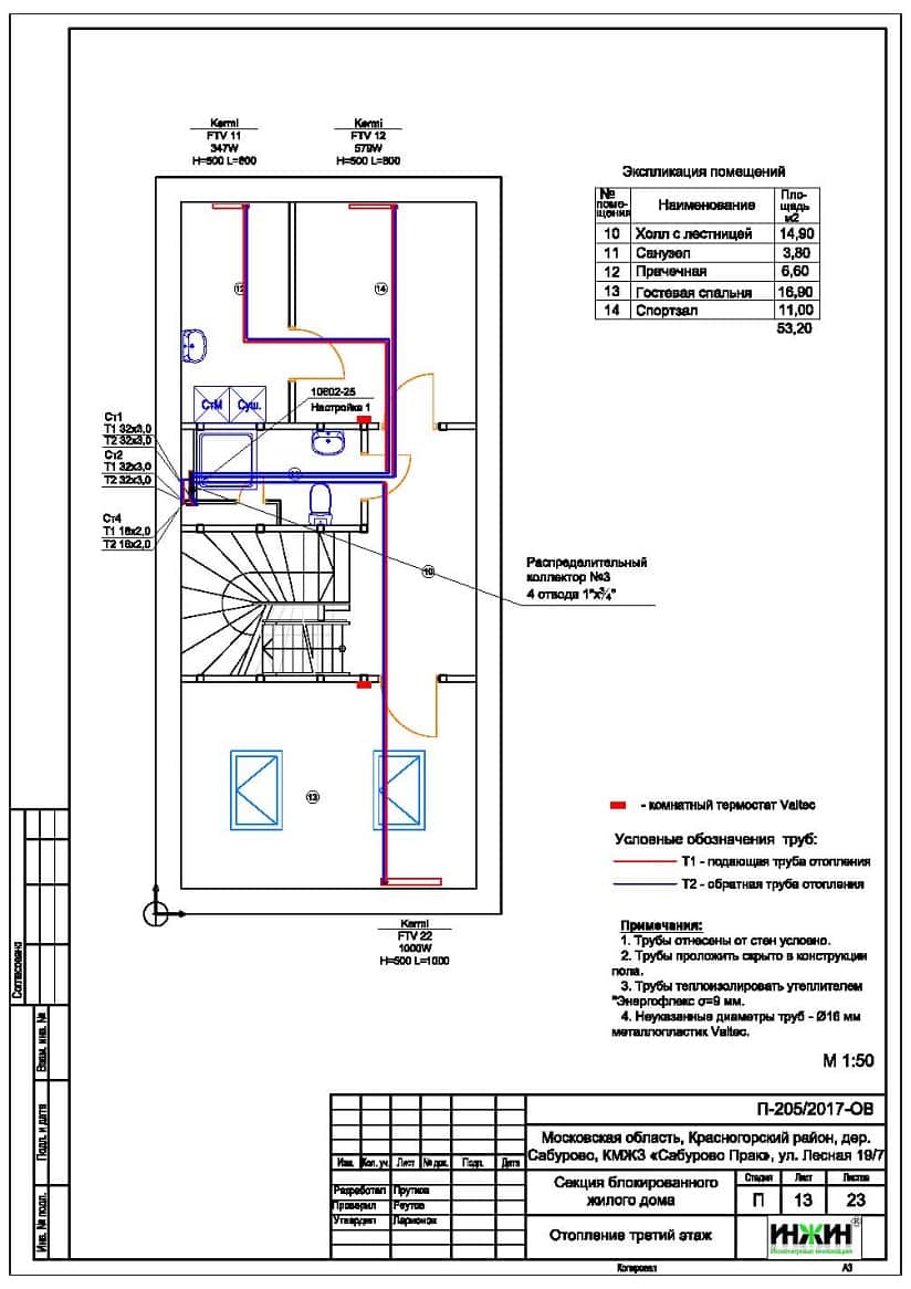
3. Комплект поэтажных чертежей радиаторного отопления таунхауса.
4. Комплект чертежей внутреннего водопровода и канализации.
5. Теплотехнический расчет таунхауса (расчет отопления).
6. Спецификация материалов и оборудования по разделам проекта.
Объем проекта: 42 листа.
Решения, принятые в проекте систем отопления, водоснабжения и канализации, в соответствии с заданием Заказчика.
Котельная таунхауса.
o Котел газовый настенный Vaillant turboTEC plus мощностью 24 кВт;
o Контуры теплоснабжения котельной – радиаторное отопление дома, теплообменник вентустановки и горячее водоснабжение (бойлер);
o Для приготовления горячей воды предусмотрен водо-водяной бойлер Vaillant uniSTOR, объемом 200 литров;
o Расширительные баки отопления и водоснабжения Reflex, емкостью 18 литров каждый;
o Насосное оборудование Grundfos (энергоэффективные насосы Alpha2 L, встроены в насосные группы Meibes);
o Дымоудаление принудительное, комплект горизонтального прохода через стену Vaillant;
o Распределительный коллектор Meibes, с гидравлической стрелкой и насосными группами;
o Предусмотрена автоматическая подпитка отопления при помощи клапана Watts ALOMD;
o Автоматика котельной – погодозависимый блок Vaillant calorMATIC 630/3 с дополнительным модулем дистанционного контроля GSM-climate.
Автоматизация отопления (вариант «Комфортный+»).
o Автоматическое регулирование отопления по наружной температуре (погодное регулирование);
o Автоматическое поддержание заданной температуры в контурах отопления, теплого пола и горячего водоснабжения;
o Регулирование температуры в помещениях при помощи электронных комнатных термостатов Valtec;
o Дистанционный контроль за работой котла посредством GSM-связи.
Система отопления таунхауса.
o Выполнен тепловой расчет отопления, с учетом теплопотерь через ограждающие конструкции, теплоотдачи отопительных приборов и полотенцесушителей (в санузлах);
o Подобраны приборы для системы отопления - стальные панельные радиаторы Kermi;
o Схема радиаторного отопления двухтрубная, коллекторно-лучевая;
o Температурный график отопления 80/60°С;
o Трубы отопления - металлопластик Valtec;
o Коллекторы отопления – Valtec, на 3 и 4 отвода;
o Шкафы коллекторные Valtec, пристраиваемые;
o Теплоизоляция трубопроводов отопления Энергофлекс, толщиной 9мм;
o Теплоноситель в системе отопления – подготовленная вода.
Водяной теплый пол проектом не предусмотрен.
Водоснабжение таунхауса.
o Схема внутреннего водопровода – коллекторная, с рециркуляцией горячей воды через проходные водорозетки;
o Коллекторы водопровода – сборные, Valtec VTc.560, с запорными вентилями;
o Выполнен расчет 26-ти точек водопровода, их них 19 тупиковых и 7 проходных;
o Трубы системы водоснабжения – металлопластик Valtec;
o Для летнего водопровода предусмотрен наружный кран Meibes SEPP-Eis с защитой от замерзания;
o Теплоизоляция трубопроводов Энергофлекс, толщиной 9мм.
Система канализации.
o Предусмотрен безнапорный отвод стоков от санитарно-технических приборов;
o Количество точек канализации – 21 шт.;
o Теплоизоляция трубопроводов Энергофлекс, толщиной 13мм.


















