Выполненные проекты
Проект отопления, водоснабжения и канализации дома площадью 120 м.кв. в дер. Ашукино
![]() |
![]() |
|
|
![]() |
![]() |
![]() |
Объект: двухэтажный дом площадью 120 м.кв., расположенный в дер. Ашукино Пушкинского района Московской области
Вариант отопления: «Базовый»
Стоимость проекта отопления, водоснабжения и канализации: 19 125 руб. со скидкой 15% за комплексный проект отопления и электрики (проект котельной бесплатно).
Проект выполнен: 27.06.2017
Состав проекта ОВК:
1. Пояснительная записка с общими данными по котельной, системам отопления, водоснабжения и канализации.
2. Тепломеханическая схема котельной с размещением оборудования.
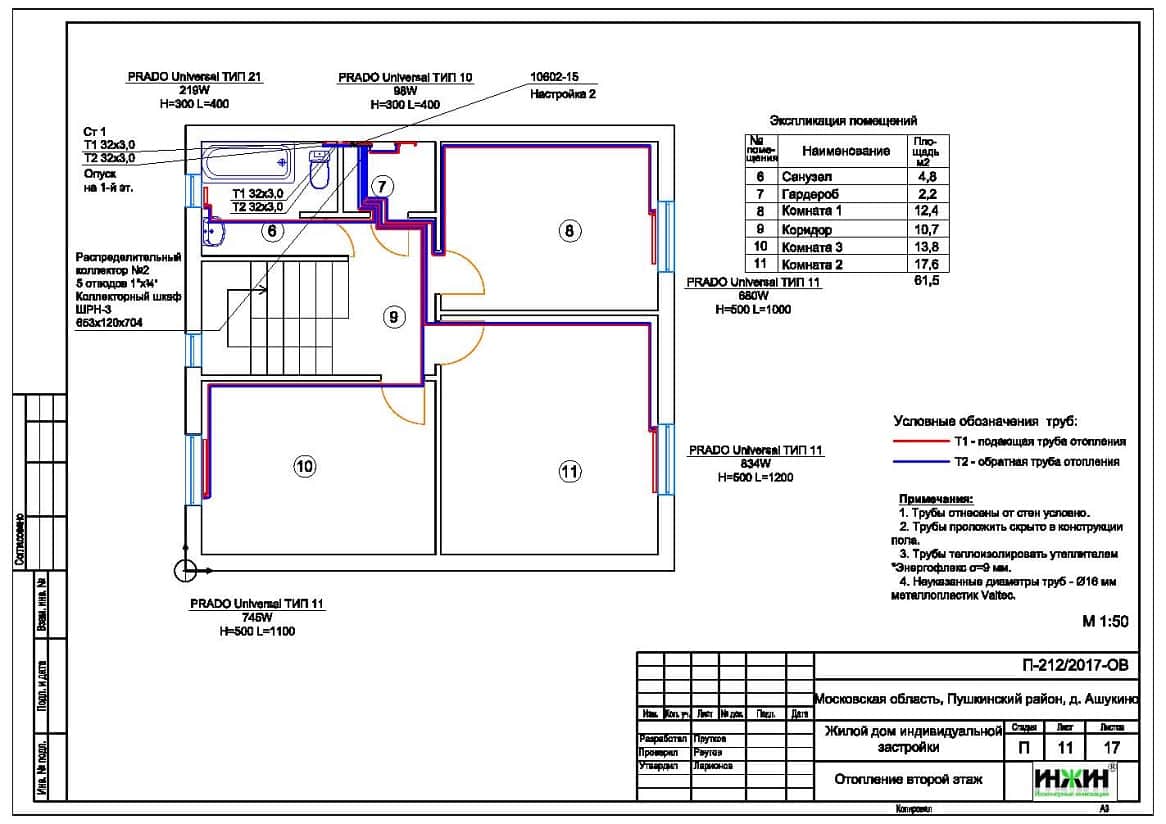
3. Поэтажные чертежи радиаторного отопления частного дома.
4. Чертеж водяного теплого пола.
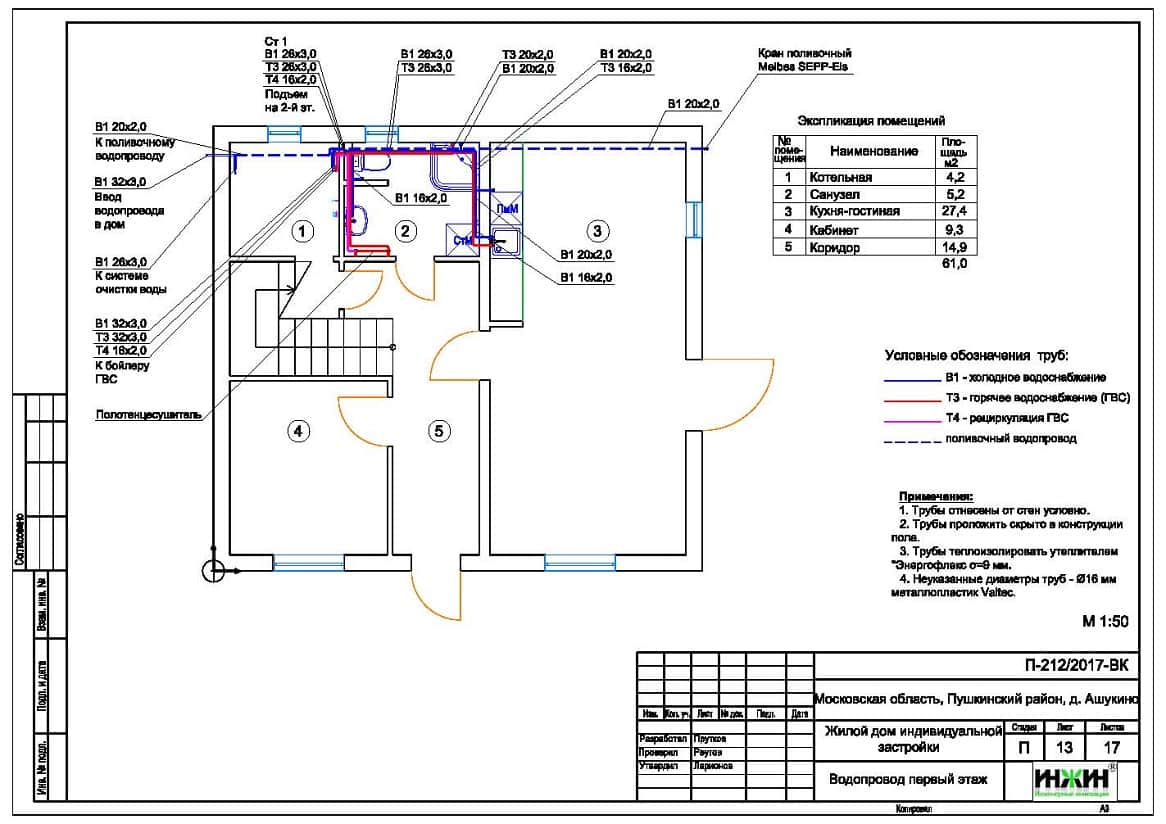
5. Чертежи внутреннего водопровода и канализации частного дома.
6. Тепловой расчет дома (расчет отопления).
7. Спецификация материалов и оборудования по разделам проекта отопления, водоснабжения и канализации.
Объем проекта: 34 листа.
Технические решения проекта ОВК.
Индивидуальная котельная загородного дома.
o Котел газовый настенный Vaillant turboTEC мощностью 20 кВт;
o Контуры теплоснабжения котельной – радиаторное отопление дома, водяной теплый пол и горячее водоснабжение (накопительный бойлер);
o Для приготовления горячей воды предусмотрен бойлер косвенного нагрева Vaillant uniSTOR, объемом 150 литров;
o Расширительный бак водоснабжения Reflex, бак отопления встроен в настенный котел;
o Насосное оборудование Grundfos, применены энергоэффективные насосы Alpha2 L;
o Дымоудаление принудительное, трубы дымоходные коаксиальные, комплект для горизонтального прохода через стену Vaillant;
o Магистральный коллектор котельной - насосно-смесительный модуль Meibes Kombimix с дополнительным контуром загрузки бойлера;
o Предусмотрена ручная подпитка отопления;
o Автоматика котельной – встроена в котел (вариант «Базовый»).
Система отопления загородного дома.
o Выполнен расчет отопления, с учетом теплопотерь через ограждающие конструкции, теплоотдачи радиаторов отопления, водяного теплого пола и полотенцесушителей;
o Радиаторы отопления - стальные панельные Prado Universal (Россия);
o Схема отопления коллекторно-лучевая, с принудительной циркуляцией теплоносителя;
o Температурный график системы отопления 80/60°С;
o Трубы отопления - металлопластик Valtec;
o Коллекторы отопления – Valtec, на 5 отводов (2 шт.), размещены по одному на каждом этаже;
o Шкафы коллекторные Valtec, пристраиваемые;
o Теплоизоляция трубопроводов отопления Энергофлекс, толщиной 9мм;
o Теплоноситель в системе отопления и теплых полов – подготовленная вода.
Водяной теплый пол.
o Водяной теплый пол спроектирован на площади 28 м.кв., 3 петли;
o Предусмотрен отдельный контур котельной для водяного теплого пола;
o Трубопроводы теплого пола - сшитый полиэтилен Valtec PEX-EVON;
o Коллектор теплого пола на 3 отвода - Valtec с расходомерами;
o Для основания теплого пола применены маты из пенополистирола Экопол EPS2102;
o Регулирование температуры теплого пола общее, контуром котельной (ручное регулирование).
Водоснабжение дома.
o Схема внутреннего водопровода – по тройниковой тупиковой схеме, с рециркуляцией горячей воды через полотенцесушители;
o Выполнен расчет 18-ти точек водопровода;
o Трубы системы водоснабжения – из металлопластика Valtec;
o Для летнего водопровода использован незамерзающий наружный кран Meibes SEPP-Eis;
o Теплоизоляция трубопроводов водопровода - Энергофлекс, толщиной 9мм.
Система канализации.
o Предусмотрен безнапорный отвод стоков от санитарно-технических приборов;
o Количество точек канализации – 13 шт.


















