Выполненные проекты
Проект электрики загородного дома площадью 120 м.кв.
![]() |
![]() |
![]() |
![]() ![]() |
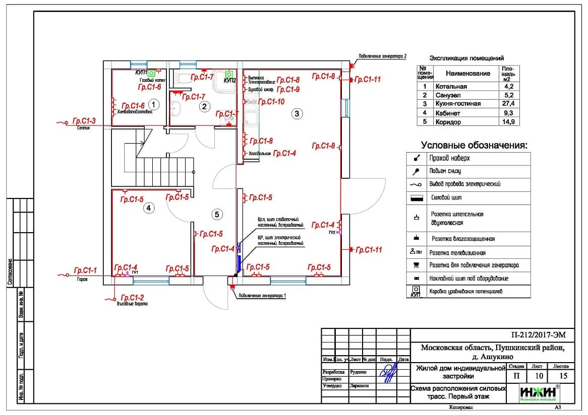
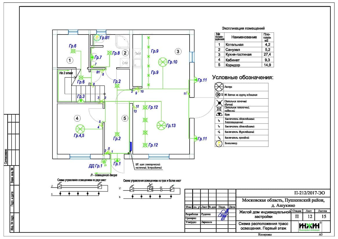
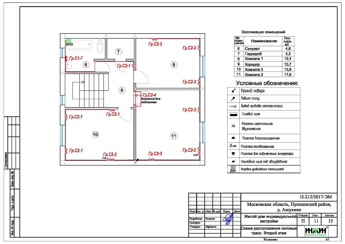
Объект: загородный дом площадью 120 м.кв., расположенный в дер. Ашукино Пушкинского района Московской области
Стоимость проекта электрики: 11 112 руб. со скидкой 15%.
Проект электрики выполнен: 27.06.2017
Состав проекта электроснабжения и освещения:
1. Пояснительная записка. Общие данные
2. Однолинейная схема электрического распределительного щитов.
3. Чертежи кабельных трасс силовых электрических сетей.
4. Чертежи групповых осветительных сетей.
5. Схема контура повторного заземления.
6. Спецификация материалов и оборудования.
Объем проекта: 15 листов.
Основные проектные рещения.
Распределительный электрический щит.
o Проектом предусмотрен электрический распределительный щит, оснащенный 25 автоматическими выключателями, дифференциальными автоматами и УЗО Hager;
o Щитовое оборудование размещено во встроенном корпусе Hager.
Силовая и слаботочная кабельная сеть (электропроводка).
o Электропроводка предусмотрена с использованием кабелей, не поддерживающих горение ВВГ нг -LS с медными жилами в ПВХ-оболочке;
o Общая протяженность линий электроснабжения и освещения – 934 метра;
o Электропроводка предусмотрена скрытым способом, в защитной гофрированной ПВХ-трубе и металлорукаве в виниловой изоляции (в деревянных конструкциях на чердаке);
o Запроектировано 84 точки подключения электрических розеток и выключателей освещения;
o Для организации телевидения предусмотрены кабельные линии (Cavel SAT 703) протяженностью 150 метров.
Заземление.
Предусмотрен контур заземления на базе комплекта Ezetek EZ 6.

















