Выполненные проекты
Проект отопления, водоснабжения и канализации таунхауса площадью 266 м.кв. в ЭЖК «Эдем»
![]() |
![]() |
|
|
![]() |
![]() |
![]() |
Объект: таунхаус площадью 266 м.кв., расположенный в ЭЖК «Эдем» Красногорского района Московской области
Вариант отопления: «Комфортный+»
Стоимость проекта отопления: 49 555 руб. со скидкой 15% (проект котельной бесплатно).
Проект выполнен: 20.07.2017
Состав проекта котельной отопления, водоснабжения и канализации таунхауса:
1. Пояснительная записка проекта. Общие данные по системам отопления, водоснабжения и канализации таунхауса.
2. Тепломеханическая схема котельной с размещением оборудования в помещении.
3. Комплект поэтажных чертежей системы радиаторного отопления таунхауса.
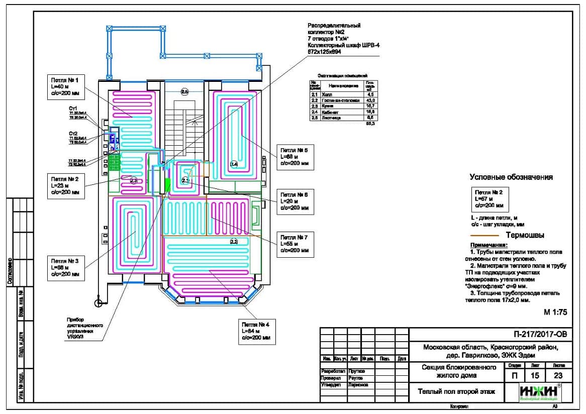
4. Комплект чертежей водяного теплого пола.
5. Комплект чертежей внутреннего водопровода и канализации.
6. Теплотехнический расчет отопления таунхауса.
7. Спецификация материалов и оборудования по котельной, отоплению, теплому полу, водоснабжению и канализации таунхауса.
Объем проекта: 45 листов.
Решения, принятые в проекте, в соответствии с заданием на проектирование систем отопления, водоснабжения и канализации таунхауса.
Котельная таунхауса (проект котельной бесплатно).
o Котел газовый настенный конденсационный Vaillant ecoTEC plus мощностью 30 кВт;
o Контуры теплоснабжения котельной (5 шт.) – радиаторное отопление, водяной теплый пол 1, 2 и 3 этажей (отдельно для каждого этажа) и горячее водоснабжение (накопительный бойлер);
o Для приготовления горячей воды предусмотрен накопительный бойлер Vaillant uniSTOR, объемом 200 литров;
o Расширительные баки отопления и водоснабжения Reflex;
o Насосы отопления и теплого пола - Grundfos, использованы энергоэффективные насосы Alpha2 L;
o Дымоудаление принудительное, трубы дымоходные Vaillant, коаксиальные, 80/125;
o Распределительный коллектор с насосно-смесительными группами и гидравлическим разделителем (стрелкой) Meibes «Поколение 8»;
o Предусмотрена автоматическая подпитка отопления (клапан Watts ALOMD);
o Автоматика котельной – блок Vaillant calorMATIC 630/3 с дополнительным смесительным модулем VR 60.
Автоматизация отопления (вариант «Комфортный+»).
o Автоматическое регулирование отопления и теплого пола по наружной температуре (погодное регулирование);
o Автоматическое поддержание заданной температуры в контурах отопления, теплого пола и бойлера;
o Зональное регулирование температурой отопления (по помещениям) при помощи беспроводной системы Rehau Nea Smart R.
Отопление таунхауса.
o Выполнен теплотехнический расчет отопления с учетом теплопотерь через наружные стены, окна, двери и кровлю (ограждающие конструкции), теплоотдачи отопительных приборов, теплого пола, полотенцесушителей (в санузлах) и теплопритоков оборудования котельной;
o Подобраны приборы для системы отопления: стальные панельные радиаторы Kermi, встраиваемые в пол конвекторы Varmann Ntherm и MiniKon (естественная конвекция);
o Схема радиаторного отопления двухтрубная, коллекторно-лучевая;
o Температурный график системы отопления 80/60°С;
o Трубы отопления из сшитого полиэтилена Rehau RAUTITAN flex;
o Коллекторы отопления – FAR, на 4, 5 и 6 отводов, по одному на каждый этаж;
o Шкафы коллекторные Valtec, встраиваемые;
o Теплоизоляция трубопроводов отопления Энергофлекс, толщиной 9мм;
o Теплоноситель в системе отопления и теплых полов – подготовленная вода.
Водяной теплый пол.
o Водяной теплый пол в таунхаусе предусмотрен на площади 253 м.кв., 21 петля;
o Предусмотрено три отдельных контура теплоснабжения водяного теплого пола, по одному на каждый этаж;
o Трубопроводы теплого пола - сшитый полиэтилен Rehau RAUTHERM S;
o Коллекторные группы FAR с расходомерами на 6, 7 и 8 отводов;
o Основание теплого пола – маты из ламинированного пенополистирола Экопол EPS2102;
o Регулирование температуры теплого пола общее, контуром котельной.
Водоснабжение таунхауса.
o Схема внутреннего водопровода – коллекторная, с рециркуляцией горячей воды через полотенцесушители;
o Коллекторы водопровода – сборные, FAR, с запорными вентилями;
o Выполнен расчет 29-ти точек водопровода;
o Трубы системы водоснабжения – из сшитого полиэтилена Rehau;
o Для полива участка предусмотрен наружный кран Meibes SEPP-Eis с защитой от замерзания;
o Теплоизоляция трубопроводов Энергофлекс, толщиной 9мм.
Внутренняя канализация.
o Предусмотрен естественный отвод стоков от санитарно-технических приборов;
o Количество точек канализации – 15 шт.;
o Теплоизоляция трубопроводов Энергофлекс, толщиной 13мм.



















