Выполненные проекты
Проект электрики частного дома площадью 360 м.кв. в Московской области
![]() |
![]() |
![]() |
![]() ![]() |
![]() |
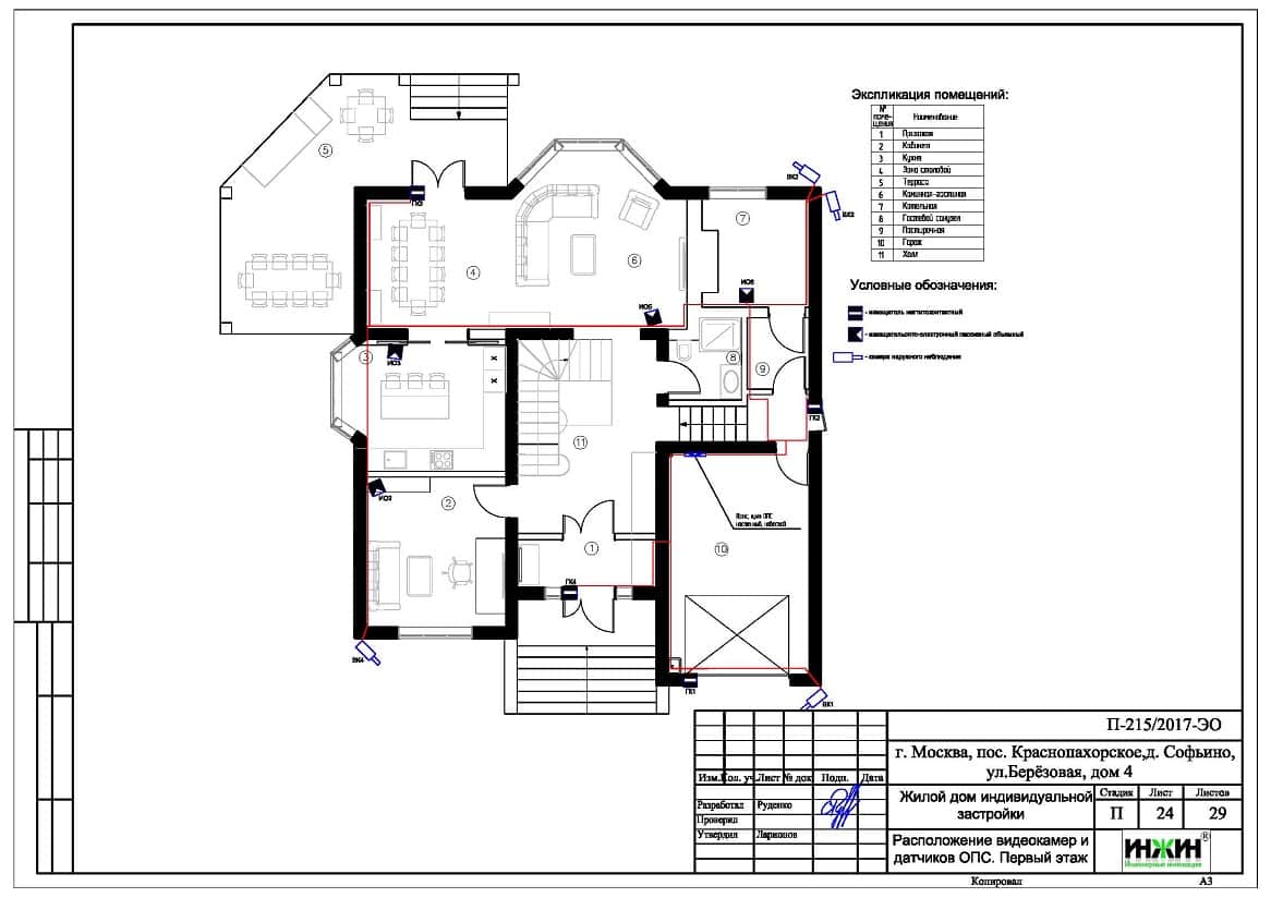
Объект: трехэтажный дом площадью 360 м.кв., расположенный в дер. Софьино Московской области
Стоимость проекта электрики: 29 070 руб. со скидкой 15% за комплексный проект электрики и отопления (проект слаботочной кабельной сети – бесплатно).
Проект электрики выполнен: 28.07.2017
Состав проекта электрики частного дома:
1. Пояснительная записка. Общие данные по электрике частного дома
2. Однолинейные схемы вводного распределительного устройства и поэтажных распределительных щитов.
3. Чертежи кабельных трасс силовых электрических сетей.
4. Чертежи групповых осветительных сетей.
5. Чертежи линий слаботочных кабельных сетей.
6. Спецификация материалов и оборудования.
Объем проекта: 29 листов.
Технические решения, принятые в проекте электроснабжения и освещения, в соответствии с заданием на проектирование электрики.
Распределительные электрические щиты.
o Проектом предусмотрено 3 распределительных щита, размещенных на каждом этаже и оснащенных 54-мя автоматами;
o Автоматические выключатели, дифференциальные автоматы и УЗО в щитах - Hager;
o Щитовое оборудование размещено во встроенных корпусах Hager.
Силовая и слаботочная кабельная сеть (электропроводка).
o Электропроводка предусмотрена с использованием кабелей ВВГ нг -LS с медными жилами в ПВХ-оболочке (не поддерживает горение);
o Общая протяженность линий электроснабжения и освещения – 3 478 метров;
o Электропроводка предусмотрена скрытым способом, в защитной гофрированной ПВХ-трубе и металлорукаве (в деревянных конструкциях мансарды);
o Запроектировано 194 точки подключения розеток и выключателей освещения;
o Для системы телевидения предусмотрены кабельные трассы с использованием кабеля Cavel SAT 703, в количестве 450 метров;
o Линии локальной сети предусмотрены с использованием провода UTP 4х2х0,51cat 5e, 3050 метров.
Резервное электропитание.
Источником резервного питания по проекту является инвертор Cyber Power CPS 3500PRO с блоком из 6-ти аккумуляторных батарей.
Заземление.
Предусмотрен контур заземления на базе комплекта Ezetek EZ-6.



















