Выполненные проекты
Проект отопления, водоснабжения и канализации частного дома площадью 360 м.кв. в дер. Софьино
![]() |
![]() |
|
|
![]() |
![]() |
![]() |
Объект: трехэтажный дом площадью 360 м.кв., расположенный в дер. Софьино Московской области
Вариант отопления: «Комфортный+»
Стоимость проекта отопления, водоснабжения и канализации: 47 260 руб. со скидкой 15% за комплексный проект отопления и электрики (проект котельной бесплатно).
Проект отопления выполнен: 28.07.2017
Состав проекта котельной отопления, водоснабжения и канализации частного дома:
1. Пояснительная записка проекта. Общие данные по системам отопления, водоснабжения и канализации частного дома.
2. Тепломеханическая схема котельной с размещением оборудования в помещении.
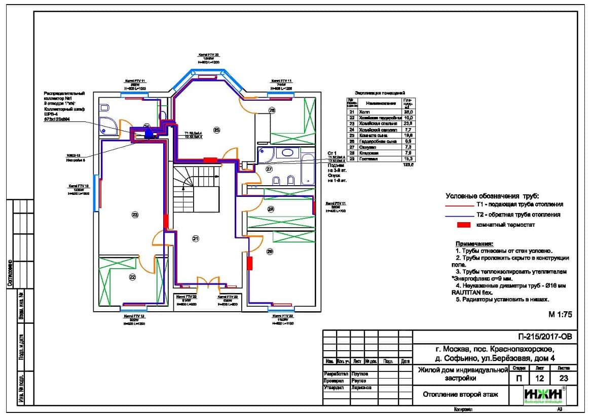
3. Комплект поэтажных чертежей радиаторного отопления частного дома.
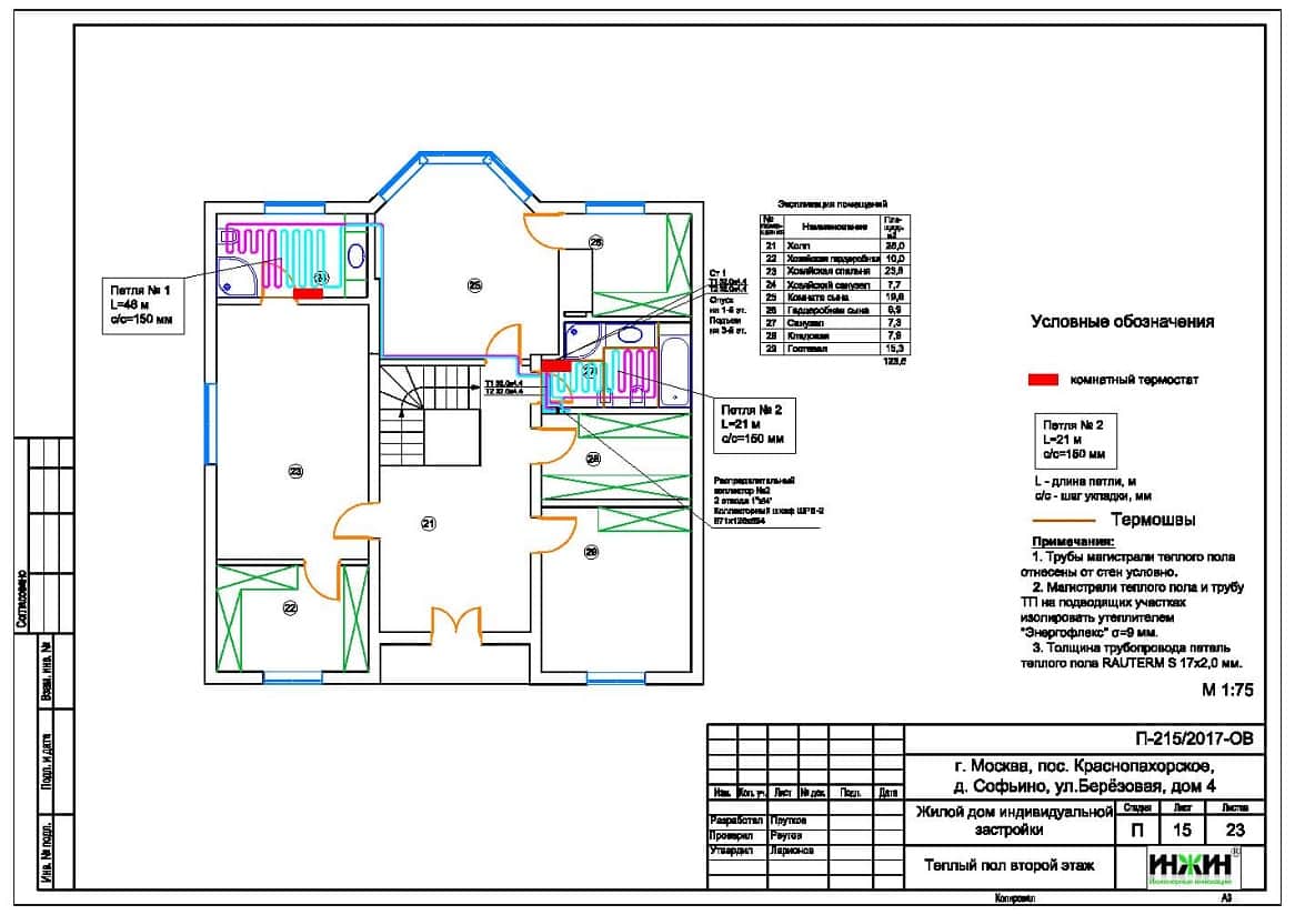
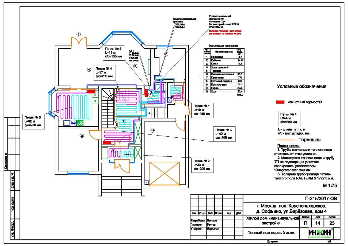
4. Комплект чертежей водяного теплого пола.
5. Комплект чертежей внутреннего водопровода и канализации.
6. Теплотехнический расчет отопления частного дома.
7. Спецификация материалов и оборудования по котельной, отоплению, теплому полу, водоснабжению и канализации частного дома.
Объем проекта: 51 лист.
Решения, принятые в проекте, в соответствии с заданием на проектирование систем отопления, водоснабжения и канализации частного дома.
Котельная частного дома (проект котельной бесплатно).
o Котел газовый напольный Viessmann Vitogas-100F мощностью 42 кВт, в наличии на объекте;
o Контуры теплоснабжения котельной – радиаторное отопление дома, водяной теплый пол, теплообменник вентиляции и горячее водоснабжение (внешний бойлер);
o Для приготовления горячей воды предусмотрен накопительный бойлер Viessmann Vitocell, объемом 300 литров;
o Расширительные баки отопления и водоснабжения Reflex;
o Насосы отопления и теплого пола Grundfos, использованы энергоэффективные насосы Alpha2 L (в комплекте поставки насосных групп);
o Дымоудаление естественное, выполнено на объекте;
o В качестве распределительной гребенки использован коллектор Meibes с насосными группами «Поколения 8»;
o Предусмотрена ручная подпитка отопления;
o Автоматика котельной – блок Vitotronic 200-H, тип HK3B (в комплектк поставки котла), телекоммуникационный модуль GSM Vitocom 100 тип GSM2, устройство дистанционного управления Vitotroll 200A.
Автоматизация отопления (вариант «Комфортный+»).
o Автоматическое регулирование отопления по наружной температуре (погодное регулирование) и температуре в помещении (устройство дистанционного кправления);
o Автоматическое поддержание заданной температуры в контурах отопления, теплого пола и горячего водоснабжения;
o Дистанционный контроль работы котла посредством GSM-связи.
Отопление частного дома.
o Выполнен теплотехнический расчет отопления частного дома;
o Подобраны приборы для системы отопления: стальные панельные радиаторы Kermi с нижним подключением;
o Схема радиаторного отопления двухтрубная, коллекторно-лучевая;
o Температурный график системы радиаторного отопления 80/60°С;
o Трубопроводы отопления из сшитого полиэтилена Rehau RAUTITAN flex;
o Коллекторы отопления – Rehau, на 7, 9 и 10 отводов, по одному на каждый этаж;
o Шкафы коллекторные Valtec, встраиваемые и пристраиваемый;
o Теплоизоляция трубопроводов отопления Энергофлекс, толщиной 9мм;
o Теплоноситель в системе отопления и теплых полов – подготовленная вода.
Водяной теплый пол.
o Водяной теплый пол в доме предусмотрен на площади 94 м.кв., 12 петель;
o Предусмотрен отдельный контур теплоснабжения водяного теплого пола частного дома;
o Трубопроводы теплого пола - сшитый полиэтилен Rehau RAUTHERM S;
o Коллекторные группы Rehau с расходомерами на 2, 4 и 6 отводов;
o Основание теплого пола – маты из ламинированного пенополистирола Экопол EPS2102;
o Регулирование температуры теплого пола – по помещениям, с использованием комнатных термостатов Теплолюкс MCS350 и электротермических сервоприводов Valtec VT.TE 3040.
o Количество зон регулирования теплого пола – 7.
Водоснабжение дома.
o Схема внутреннего водопровода – коллекторная, с рециркуляцией горячей воды через проходные водорозетки;
o Коллекторы водопровода Valtec VTc.560 – сборные, с запорными вентилями;
o Выполнен расчет 43-х точек водопровода, их них 30 тупиковых и 13 проходных;
o Трубы системы водоснабжения – из сшитого полиэтилена Rehau RAUTITAN flex;
o Для полива участка предусмотрено два наружных крана Meibes SEPP-Eis с защитой от замерзания;
o Теплоизоляция трубопроводов Энергофлекс, толщиной 9мм.
Система защиты от протечки воды.
o Контроллер системы - Аквасторож ЭКСПЕРТ PRO;
o Отключение подачи воды предусмотрено при помощи электрокранов Аквасторож-25 версия ЭКСПЕРТ (6 зон отключения);
o В санузлах и кухне размещаются датчики Аквасторож ЭКСПЕРТ.
Внутренняя канализация.
o Предусмотрен безнапорный отвод стоков от санитарно-технических приборов;
o Количество точек канализации – 21 шт.;
o В гараже предусмотрен трап Viega с «сухим» затвором;
o Теплоизоляция трубопроводов Энергофлекс, толщиной 13мм.



















