Выполненные проекты
Проект котельной, отопления, водоснабжения и канализации дома площадью 168 м.кв. в КП «Приволье»
![]() |
![]() |
|
|
![]() |
![]() |
![]() |
Объект: частный дом с гаражом (отдельное строение) общей площадью 168 м.кв., расположенный в КП «Приволье» Заокского района Тульской области
Вариант отопления: «Комфортный»
Стоимость проекта отопления: 25 200 руб., проект котельной бесплатно.
Проект котельной отопления, водоснабжения и канализации частного дома выполнен: 11.08.2017
Состав проекта котельной отопления, водоснабжения и канализации частного дома и гаража:
1. Пояснительная записка проекта. Общие данные по системам отопления, водоснабжения и канализации дома и гаража.
2. Тепломеханическая схема котельной с размещением оборудования в помещении гаража.
3. Комплект поэтажных чертежей радиаторного отопления частного дома.
4. Комплект поэтажных чертежей радиаторного отопления гаража.
5. Комплект чертежей внутреннего водопровода и канализации дома.
6. Комплект чертежей внутреннего водопровода и канализации гаража.
7. Теплотехнический расчет отопления дома и гаража.
8. Спецификация материалов и оборудования по котельной, отоплению, водоснабжению и канализации дома и гаража.
Объем проекта котельной, отопления, водоснабжения и канализации: 49 листов.
Решения, принятые в проекте, в соответствии с заданием на проектирование систем отопления, водоснабжения и канализации дома и отдельно стоящего гаража.
Котельная (проект котельной бесплатно).
o Котельная предназначена для теплоснабжения дома, гаража, а также нескольких дополнительных (перспективных) строений на участке и размещена в гараже:
o При проектировании котельной учтена возможность установки дополнительных газовых котлов (каскада) для теплоснабжения перспективных строений;
o Предусмотрен основной настенный газовый котел Vaillant turboTEC plus мощностью 36 кВт, а также резервный электрический котел Vaillant eloBLOCK, мощностью 18 кВт;
o Контуры теплоснабжения котельной – радиаторное отопление дома, радиаторное отопление гаража и бойлер горячего водоснабжения;
o Для приготовления горячей воды предусмотрен накопительный бойлер Vaillant uniSTOR, объемом 300 литров;
o Расширительные баки отопления и водоснабжения Reflex, объемом 35 и 35 литров;
o Насосы отопления и водоснабжения Grundfos, энергоэффективные насосы Alpha2 L;
o Дымоудаление принудительное, трубы дымоходные коаксиальные Vaillant, комплект для вертикального прохода через крышу;
o Коллектор распределительный с насосно-смесительными группами Meibes;
o Предусмотрена ручная подпитка отопления;
o Автоматика котельной – блок Vaillant calorMATIC 630/3.
Автоматизация отопления (вариант «Комфортный»).
o Автоматическое регулирование отопления по наружной температуре (погодное регулирование);
o Автоматическое поддержание заданной температуры в контурах отопления и горячего водоснабжения.
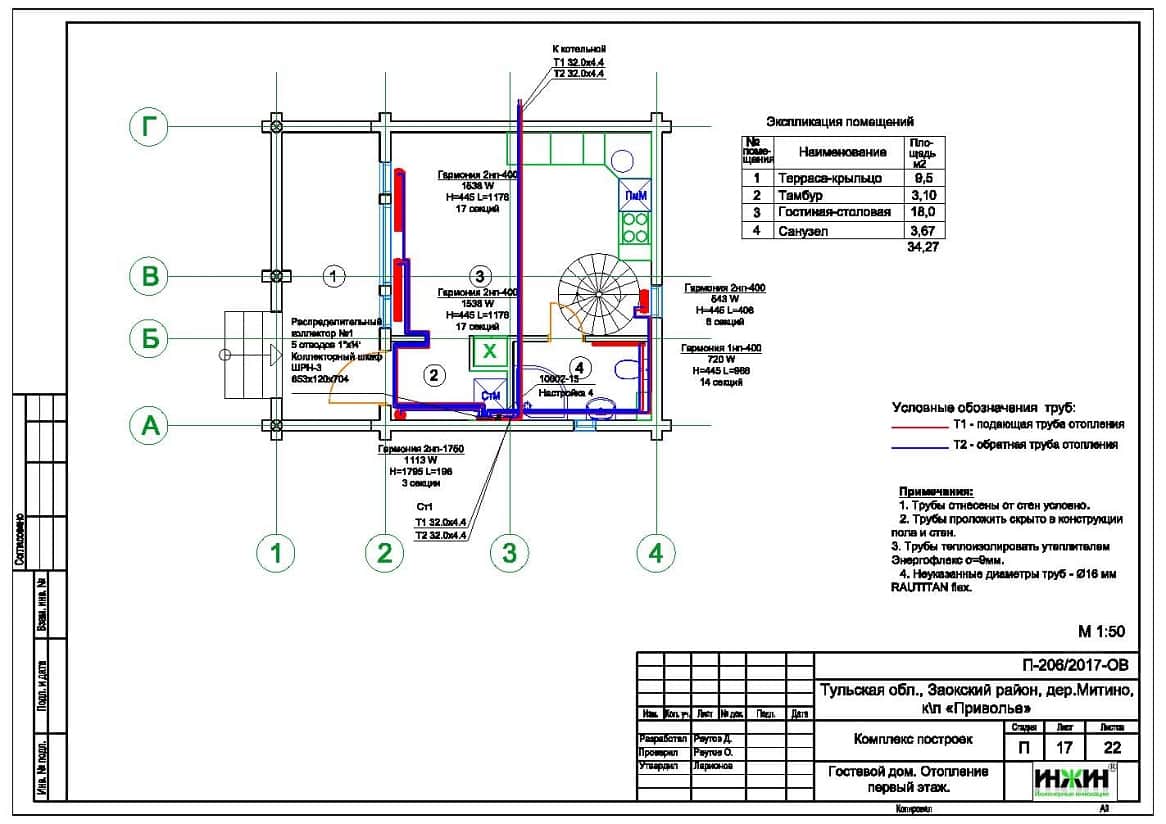
Отопление частного дома и гаража.
o Выполнены теплотехнические расчеты отопления дома и гаража (отдельно;
o Подобраны приборы для системы отопления: дом – стальные трубчатые радиаторы Гармония (КЗТО), гараж - стальные панельные радиаторы Kermi с нижним подключением;
o Схема радиаторного отопления двухтрубная, коллекторно-лучевая для дома и двухтрубная тройниковая для гаража;
o Температурный график системы отопления дома и гаража 80/60°С;
o Трубы отопления из сшитого полиэтилена Rehau;
o Коллекторы отопления – Rehau, на 4 и 5 отводов, по одному на каждый этаж дома;
o Шкафы коллекторные Valtec, пристраиваемые;
o Теплоизоляция трубопроводов отопления Энергофлекс, толщиной 9мм;
o Теплоноситель в системе отопления и теплых полов – подготовленная вода.
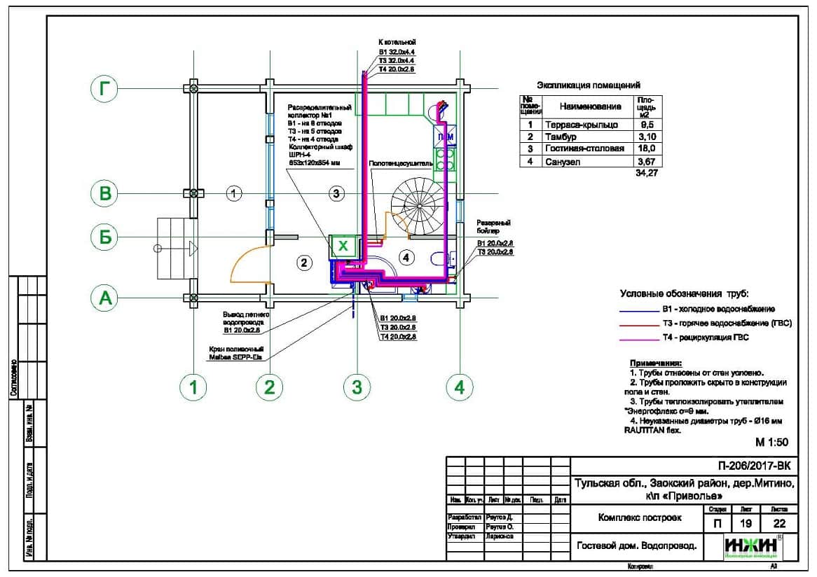
Водоснабжение дома и гаража.
o Схема внутреннего водопровода дома и гаража – коллекторная, с рециркуляцией горячей воды через проходные водорозетки;
o Коллекторы водопровода – сборные, Valtec VTc.560, с запорными вентилями;
o Выполнен расчет 20-ти точек водопровода, их них 13 тупиковых и 7 проходных;
o Трубы системы водоснабжения – из сшитого полиэтилена Rehau;
o Для полива участка предусмотрен наружный кран Meibes SEPP-Eis с защитой от замерзания;
o Теплоизоляция трубопроводов Энергофлекс, толщиной 9мм.
Внутренняя канализация.
o Предусмотрен безнапорный отвод стоков от санитарно-технических приборов;
o Количество точек канализации – 13 шт.;
o Теплоизоляция трубопроводов Энергофлекс, толщиной 13мм.
Трасы тепло и водоснабжения строений на участке.
o Выполнен расчет и разработка трасс теплоснабжения и водопровода между строением котельной, домом и перспективными строениями на участке;
o Трубопроводы трасс на участке – из сшитого полиэтилена Rehau.



















