Выполненные проекты
Проект электрики таунхауса площадью 133 м.кв. в Солнечногорском районе Московской области
Объект: трехэтажный таунхаус площадью 133 м.кв., расположенный в КП «Бакеево» Солнечногорского района Московской области
Цена (стоимость) проекта электрики: 12 112 руб. со скидкой 15% за комплексный проект электрики и отопления (проект слаботочной кабельной сети – бесплатно).
Проект электрики выполнен: 20.03.2018
Состав проекта электрики таунхауса:
1. Пояснительная записка. Общие данные по электроснабжению секции блокированного жилого дома (таунхауса).
2. Однолинейные схемы вводного распределительного устройства и поэтажных распределительных щитов.
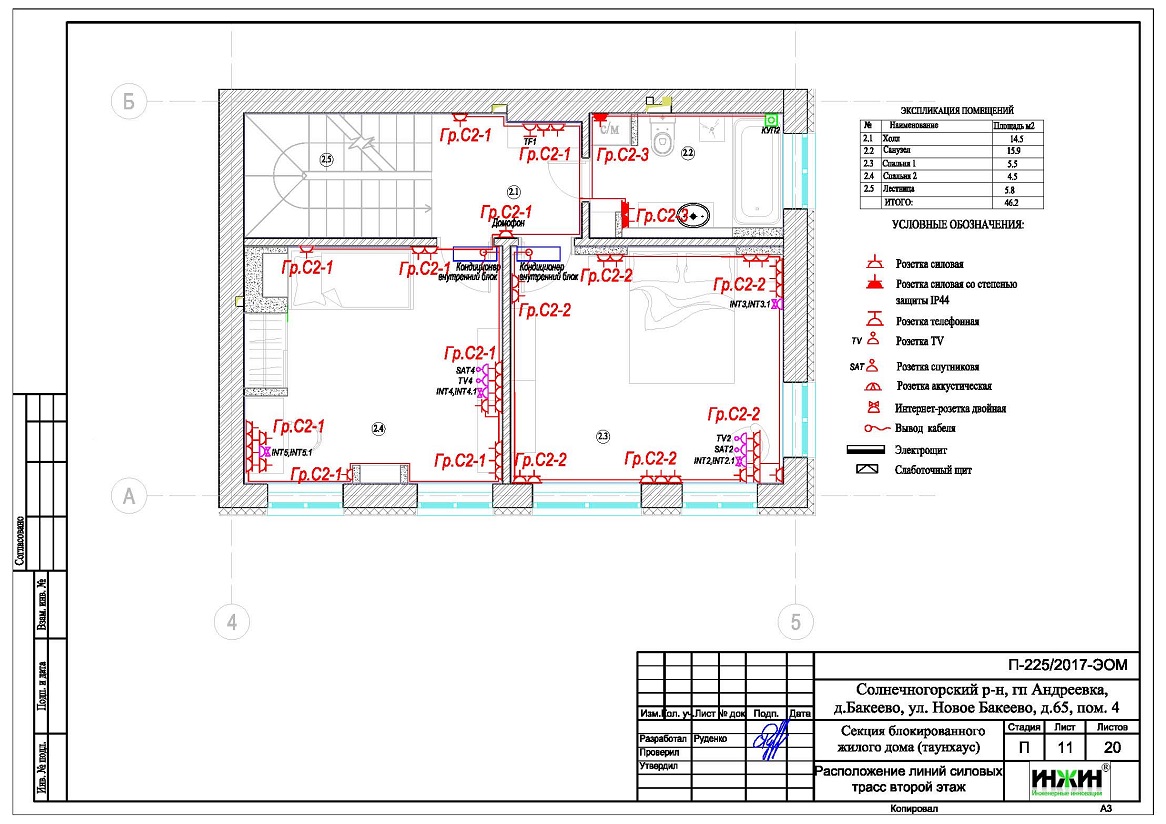
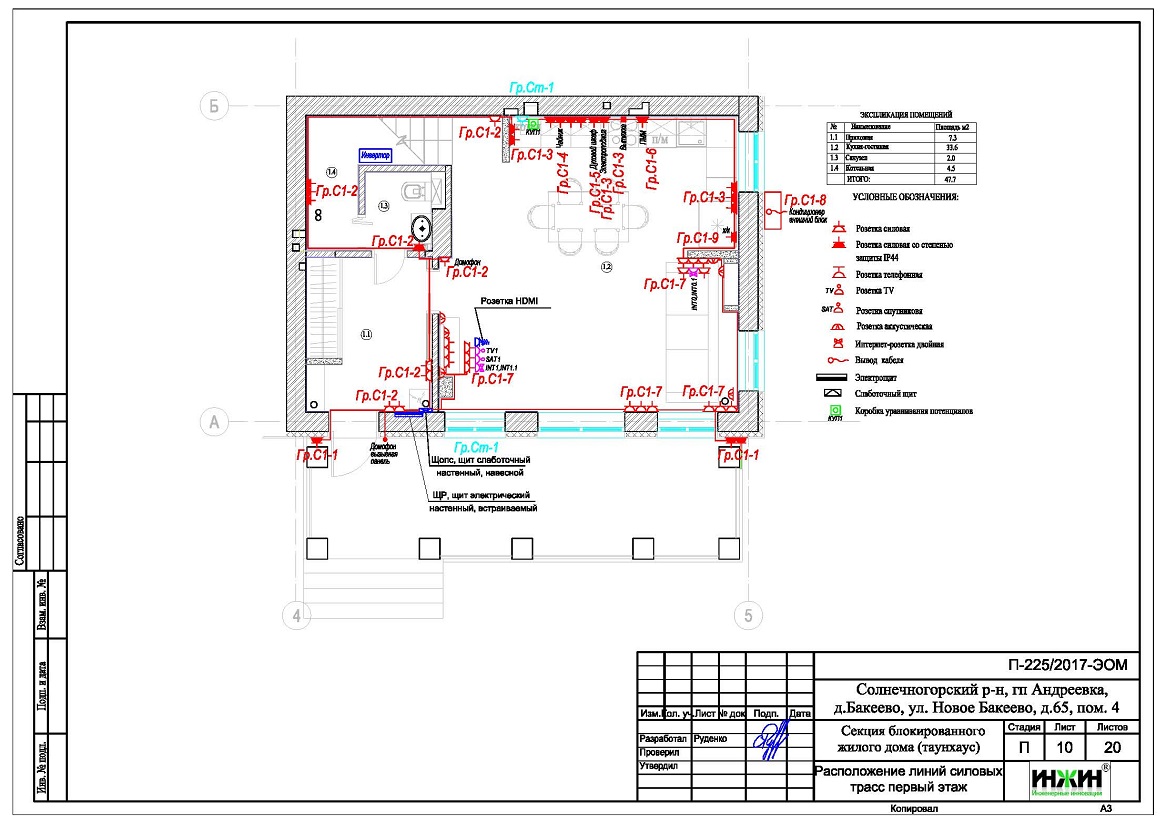
3. Чертежи кабельных трасс силовых электрических сетей.
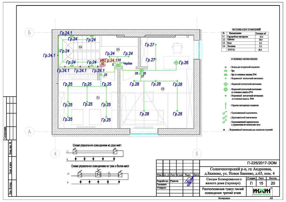
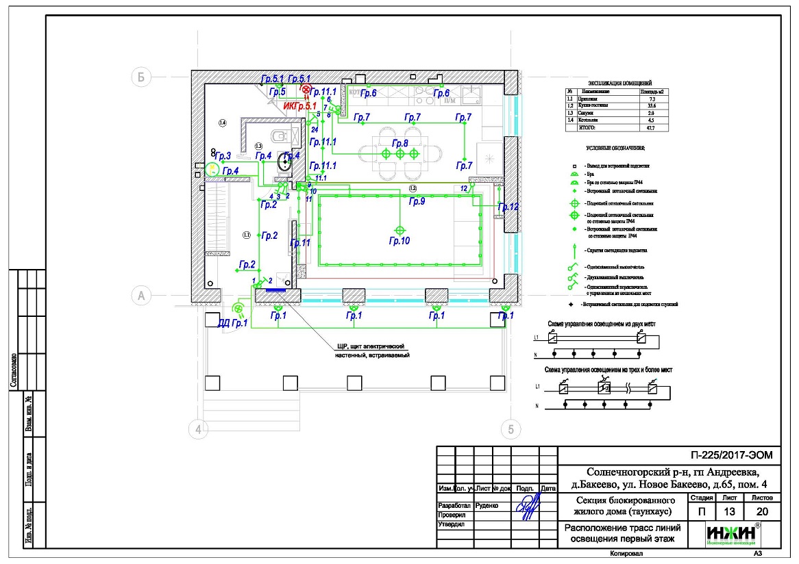
4. Чертежи групповых осветительных сетей.
5. Чертежи линий слаботочных кабельных сетей.
6. Спецификация материалов и оборудования.
Объем проекта: 20 листов.
Технические решения, принятые в проекте электрики таунхауса, в соответствии с заданием на проектирование.
Расчетные показатели по электроснабжению.
o Расчетная электрическая мощность составила 6,59 кВт, коэффициент спроса, согласно СП 31-110-2003, 0,65;
o При расчете учтено силовое оборудование: котельная, духовой шкаф, кондиционер.
o Мощность потребителей стабилизированного питания 0,65 кВт.
Распределительный электрический щит.
o Проектом предусмотрен распределительный щит, размещенный в прихожей;
o В распределительном щите предусмотрена установка 26 автоматических выключателей, дифференциальных автоматов и УЗО производства Hager;
o Щитовое оборудование размещено во встраиваемом корпусе Hager.
Силовая кабельная сеть (электропроводка в таунхаусе).
o Электропроводка предусмотрена с использованием кабелей ВВГ нг -LS с медными жилами в ПВХ-оболочке;
o Общая протяженность линий электроснабжения и освещения – 1 190 метров;
o Электропроводка предусмотрена скрытым способом, в защитной гофрированной ПВХ-трубе и металлорукаве в виниловой изоляции (в деревянных конструкциях кровли);
o Запроектировано 178 точек подключения розеток и выключателей освещения;
o Для системы телевидения предусмотрены кабельные трассы с использованием кабеля Cavel SAT 703, в количестве 250 метров;
o Линии локальной сети предусмотрены с использованием провода UTP 4х2х0,51cat 5e, 610 метров.
Заказать проект электрики таунхауса.
Узнать подробные цены на проект электрики.
Для этого таунхауса выполнен проект системы отопления, котельной, водоснабжения и канализации.



















