Выполненные проекты
Проект отопления, водоснабжения и канализации таунхауса 133 м.кв.
Объект: таунхаус площадью 133 м.кв., расположенный в КП «Бакеево» Солнечногорского района Московской области
Вариант отопления: «Комфортный»
Стоимость проекта отопления, водоснабжения и канализации таунхауса: 19 125 руб. со скидкой 15% за комплексный проект отопления и электрики (проект котельной таунхауса бесплатно).
Проект отопления, водоснабжения и канализации выполнен: 19.03.2018
Состав проекта котельной отопления, водоснабжения и канализации таунхауса:
1. Пояснительная записка проекта. Общие данные по системам отопления, водоснабжения и канализации таунхауса.
2. Тепломеханическая схема котельной с размещением оборудования в помещении.
3. Комплект поэтажных чертежей радиаторного отопления таунхауса.
4. Комплект чертежей водяного теплого пола.
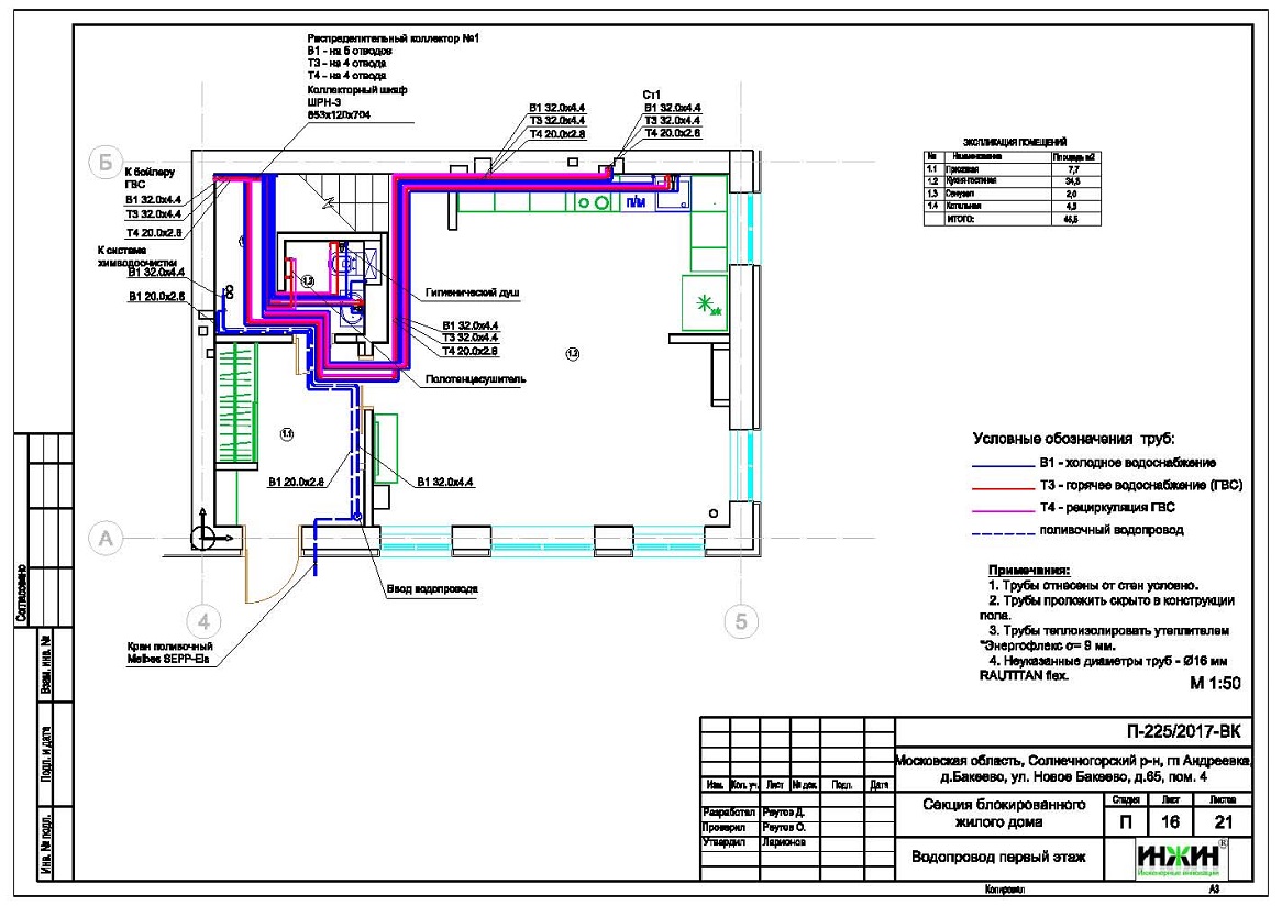
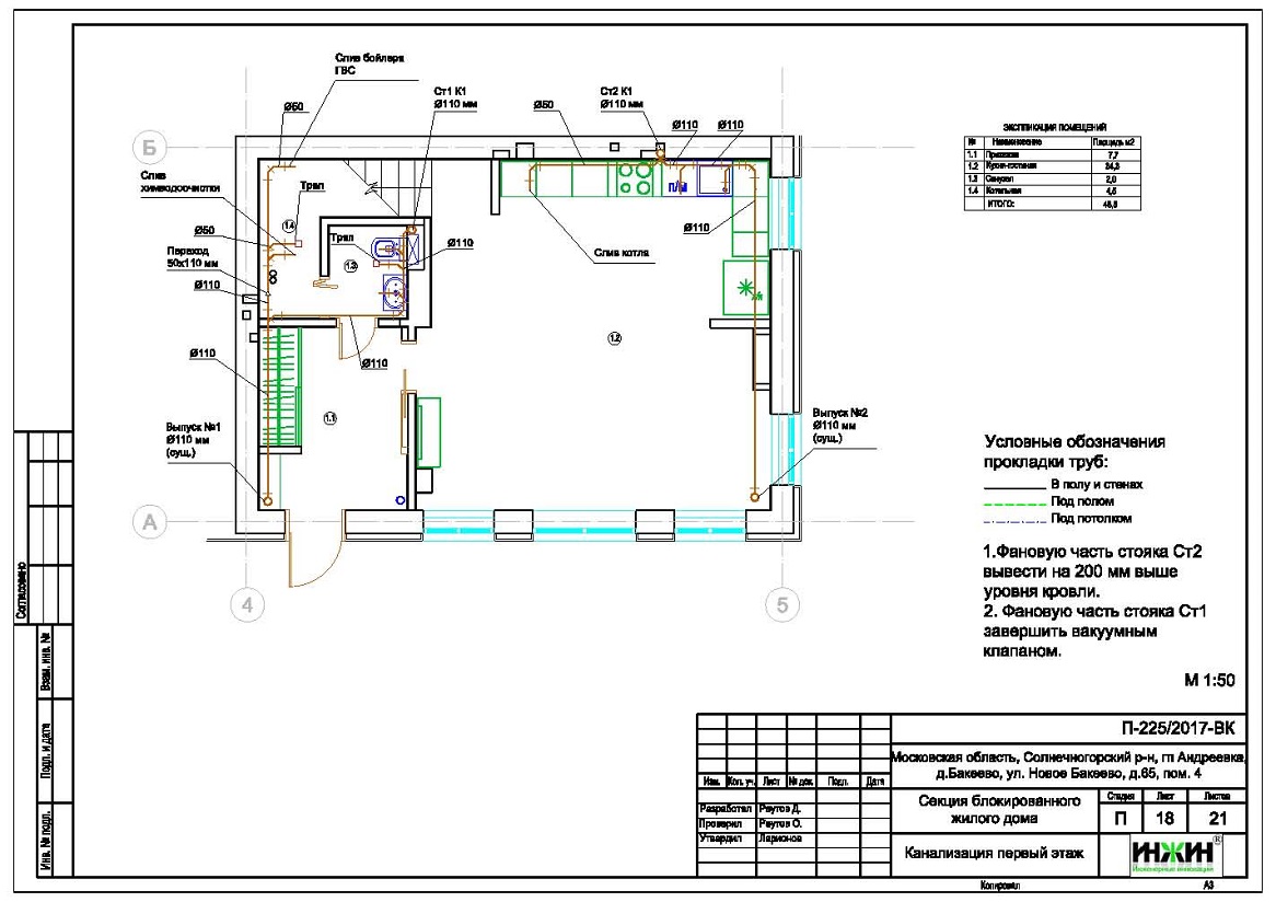
5. Комплект чертежей внутреннего водопровода и канализации.
6. Теплотехнический расчет отопления таунхауса.
7. Спецификация материалов и оборудования по котельной, отоплению, теплому полу, водоснабжению и канализации таунхауса.
Объем проекта: 38 листов.
Решения, принятые в проекте, в соответствии с заданием на проектирование отопления, водоснабжения и канализации таунхауса.
Котельная таунхауса (проект котельной бесплатно).
o Котел газовый настенный Buderus Logamax U054-24 мощностью 24 кВт (в наличии на объекте);
o Размещение котла отопления – в помещении кухни, бойлера и коллектора котельной – под лестницей 1 этажа;
o Контуры теплоснабжения котельной – радиаторное отопление дома, водяной теплый пол и горячее водоснабжение (бойлер косвенного нагрева);
o Для приготовления горячей воды предусмотрен накопительный бойлер Vaillant uniSTOR, объемом 150 литров;
o Расширительный бак водоснабжения Flamco, бак отопления встроен в котел;
o Насосы отопления и теплого пола Grundfos, использованы энергоэффективные насосы Alpha2 L;
o Дымоудаление принудительное, выполнено на объекте;
o В качестве распределительного коллектора использован компактный насосно-смесительный модуль Meibes Kombimix, подключение бойлера предусмотрено непосредственно к котлу;
o Предусмотрена ручная подпитка отопления;
o Автоматика котельной – блок Buderus RC300 с дополнительными смесительными модулями ММ100.
Автоматизация отопления (вариант «Комфортный»).
o Автоматическое регулирование отопления по наружной температуре (погодное регулирование) и температуре в помещении;
o Автоматическое поддержание заданной температуры в контурах отопления, теплого пола и горячего водоснабжения.
Система отопления таунхауса.
o Выполнен теплотехнический расчет отопления, с учетом теплопотерь через ограждающие конструкции, теплоотдачи отопительных приборов, теплого пола, полотенцесушителей (в санузлах) и оборудования в котельной, расчетный расход тепла на отопление таунхауса составил 10,18 кВт;
o Подобраны приборы для системы отопления: стальные панельные радиаторы Kermi в вентильном исполнении;
o Схема радиаторного отопления двухтрубная, коллекторно-лучевая, с принудительной циркуляцией теплоносителя;
o Температурный график системы отопления 80/60°С;
o Трубы отопления из сшитого полиэтилена Rehau;
o Коллекторы отопления – Rehau HKV, на 3 и 4 отвода (2 шт.), по одному на каждый этаж;
o Шкафы коллекторные Valtec, встраиваемый и пристраиваемый;
o Теплоизоляция трубопроводов отопления Энергофлекс, толщиной 9мм;
o Теплоноситель в системе отопления и теплых полов – подготовленная вода.
Водяной теплый пол в таунхаусе.
o Водяной теплый пол в доме предусмотрен на площади 36 м.кв., 4 петли;
o Предусмотрен отдельный контур для теплоснабжения водяного теплого пола;
o Трубопроводы теплого пола - сшитый полиэтилен Rehau RAUTHERM S;
o Коллектор теплого пола Rehau с расходомерами на 4 отвода;
o Основание теплого пола – маты из ламинированного пенополистирола Elsen ElM01.50;
o Регулирование температуры теплого пола общее, автоматикой котельной.
Водоснабжение таунхауса.
o Схема внутреннего водопровода – коллекторная, с рециркуляцией горячей воды через проходные водорозетки;
o Коллекторы водопровода – сборные, Valtec VTc.560, с запорными вентилями;
o Выполнен расчет 20-ти точек водопровода, из них 14 тупиковых и 6 проходных;
o Трубы системы водоснабжения – из сшитого полиэтилена Rehau;
o Для наружного использования предусмотрен кран Meibes SEPP-Eis с защитой от замерзания;
o Теплоизоляция трубопроводов Энергофлекс, толщиной 9мм.


Внутренняя канализация.
o Предусмотрен безнапорный отвод стоков от санитарно-технических приборов;
o Количество точек канализации – 13 шт.;
o Теплоизоляция трубопроводов Энергофлекс, толщиной 13мм;
o В санузлах предусмотрены трапы Viega, с сухим затвором (максимальная нагрузка 300 кг, рамка из пластмассы).
















