Выполненные проекты
Система отопления, проект для дома с баней площадью 398 м.кв.
Объект: загородный дом с баней общей площадью 398 м.кв. в ДНП «Ветеран» Домодедовского района Московской области
Вариант отопления: «Комфортный»
Стоимость (цена) проекта отопления и водоснабжения дома с баней: 46 189 руб. со скидкой 15% за комплексный проект отопления и электрики (проекты котельных дома и бани бесплатно).
Проект отопления и водоснабжения выполнен: 09.04.2018
Состав проекта котельных (дома и бани), отопления, теплого пола и водоснабжения двух строений:
1. Пояснительная записка проекта. Общие данные по системам отопления, водоснабжения и теплого пола дома и бани.
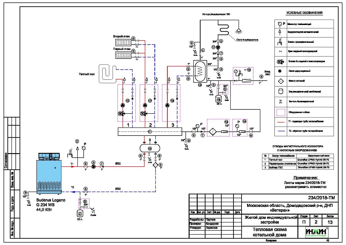
2. Тепломеханические схемы двух котельных (дома и бани) с с размещением оборудования в соответствующих помещениях.
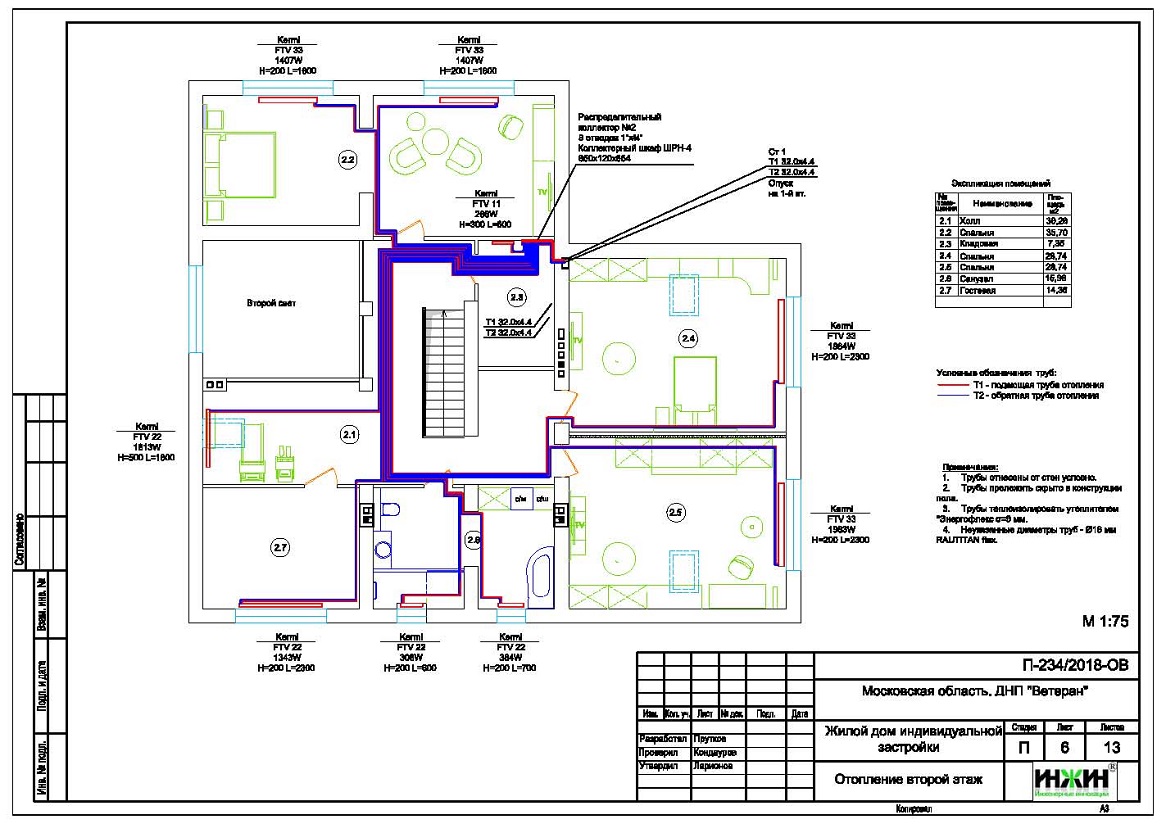
3. Комплект поэтажных чертежей радиаторного отопления дома и бани с расстановкой радиаторов и прокладкой трубопроводов.
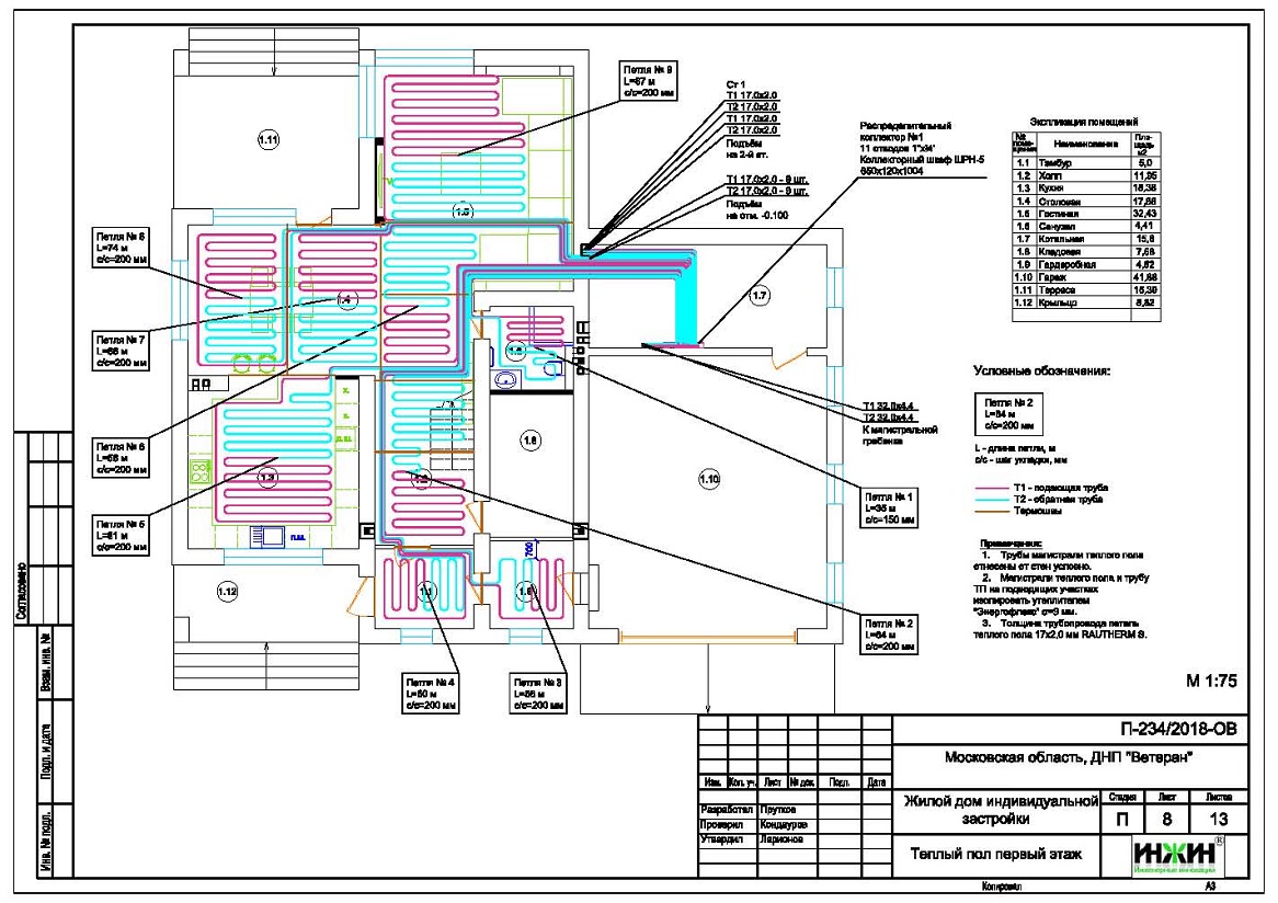
4. Комплект чертежей водяного теплого пола дома и бани.
5. Комплект чертежей внутреннего водопровода двух строений.
6. Теплотехнический расчет отопления дома и бани.
7. Спецификация материалов и оборудования по котельной, отоплению, теплому полу и водоснабжению для дома и бани (отдельно).
Объем проекта: 63 листа.
Решения, принятые в проекте отопления и водоснабжения в соответствии с заданием Заказчика.
Котельная дома (проект котельной дома бесплатно).
o Котел газовый напольный Buderus Logano G234WS мощностью 44 кВт;
o Размещение котельной в отдельном помещении дома;
o Контуры теплоснабжения котельной – радиаторное отопление дома, водяной теплый пол и горячее водоснабжение (бойлер для дома);
o Для приготовления горячей воды предусмотрен накопительный бойлер Buderus Logalux SU200/5E, объемом 200 литров;
o Расширительные баки отопления и водоснабжения Flamco, 50 и 18 литров, соответственно;
o Насосы отопления, теплого пола и загрузки бойлера Grundfos UPM3 Hybrid 25-70, энергоэффективные (с частотным регулированием) входящие в комплект поставки насосных групп;
o Дымоудаление естественное, предусмотрен керамический дымоход Schiedel Keranova;
o Распределительный коллектор котельной Meibes, с гидрострелкой и насосными группами «Поколение 8»;
o Предусмотрена автоматическая подпитка отопления при помощи подпиточного клапана Watts ALOMD;
o Автоматика котельной – система управления EMS plus, Buderus Logamatic MC110 в составе модуля управления RC310 с дополнительными смесительными модулями ММ100 и комнатным термостатом Logamatic TC100.
Котельная бани (проект котельной бани бесплатно).
o Котел газовый настенный Buderus Logamax U072-18 мощностью 18 кВт;
o Контуры теплоснабжения котельной – радиаторное отопление бани, водяной теплый пол бани и горячее водоснабжение;
o Для приготовления горячей воды предусмотрен накопительный бойлер Buderus Logalux SU160, объемом 610 литров;
o Расширительный бак водоснабжения Flamco, 18 литров, бак отопления встроен в котел;
o Насосы отопления и теплого пола Wilo Yonos Para 15/6 RKC, встроены в насосные группы;
o Дымоудаление принудительное, комплект коаксиального дымохода Buderus для горизонтального прохода через стену, 60/100мм;
o В качестве распределительного коллектора использован компактный насосно-смесительный модуль Meibes Kombimix, с опциональной насосной группой загрузки бойлера;
o Предусмотрена автоматическая подпитка отопления;
o Автоматика котельной – встроена в котел, с термостатом Open therm (с функцией недельного программирования) Simple MMI 7 Days.
Автоматизация отопления (вариант «Комфортный»).
o Автоматическое регулирование отопления по наружной температуре (погодное регулирование) и температуре в помещении;
o Автоматическое поддержание заданной температуры в контурах отопления, теплого пола и горячего водоснабжения дома. Для бани – ручное управление контурами (термостат).
Система отопления отопления дома и бани.
o Выполнен теплотехнический расчет отопления, с учетом теплопотерь через ограждающие конструкции, теплоотдачи отопительных приборов, теплого пола, полотенцесушителей (в санузлах) и оборудования в котельной, расчетный расход тепла на отопление дома составил 25,7 кВт, на отопление бани – 10,9 кВт;
o Подобраны приборы для системы отопления: стальные панельные радиаторы Kermi в вентильном исполнении, а также встраиваемые в пол конвекторы Varmann (только для дома) с естественной конвекцией;
o Схема радиаторного отопления дома и бани двухтрубная, коллекторно-лучевая, с принудительной циркуляцией теплоносителя;
o Температурный график системы отопления 80/60°С;
o Трубы отопления из сшитого полиэтилена Rehau RAUTITAN flex;
o Коллекторы отопления – Rehau HKV, на 9 и 12 отводов (для дома), и 8 отводов (для бани);
o Шкафы коллекторные Valtec, встраиваемые и пристраиваемые;
o Теплоизоляция трубопроводов отопления Энергофлекс, толщиной 9мм;
o Теплоноситель в системе отопления и теплых полов дома и бани – подготовленная вода.
Водяной теплый пол дома и бани (проект теплого пола).
o Водяной теплый пол в доме предусмотрен на площади 57 м.кв. (11 петель), в бане – на площади 28 м.кв. (5 петель);
o Предусмотрены отдельные контуры для теплоснабжения водяного теплого пола в доме и в бане;
o Трубопроводы теплого пола - сшитый полиэтилен Rehau RAUTHERM S;
o Коллекторы теплого пола Rehau HKV-D с расходомерами на 11 отводов для дома и 5 отводов для бани;
o Основание теплого пола – маты из ламинированного пенополистирола Elsen ElM01.50;
o Регулирование температуры теплого пола общее, автоматикой соответствующей котельной.
Водоснабжение дома и бани.
o Схема внутреннего водопровода – тройниковая, с рециркуляцией горячей воды через полотенцесушители и проходные водорозетки;
o Выполнен расчет 26-ти точек водопровода для дома и 16-ти точек водопровода для бани;
o Трубы системы водоснабжения – из сшитого полиэтилена Rehau;
o Для наружного использования предусмотрен кран Meibes SEPP-Eis с защитой от замерзания;
o Теплоизоляция трубопроводов Энергофлекс, толщиной 9мм.





















