Выполненные проекты
Проект электрики загородного дома с баней в ДНП «Ветеран»
Объект: частный дом с баней общей площадью 398 м.кв. в ДНП «Ветеран» Домодедовского района Московской области
Цена (стоимость) проекта электрики: 32 139 руб. со скидкой 15% за комплексный проект электрики и отопления (проект слаботочки – бесплатно).
Проект электрики выполнен: 10.04.2018
Состав проекта электрики дома и бани:
1. Пояснительная записка. Общие данные
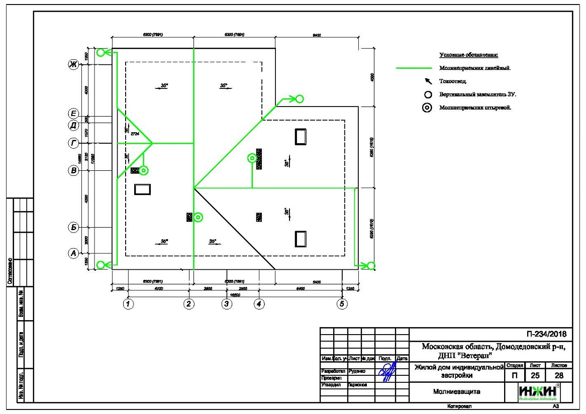
2. Однолинейные схемы вводного распределительного устройства и распределительных щитов дома и бани.
3. Чертежи кабельных трасс силовых электрических сетей дома и бани.
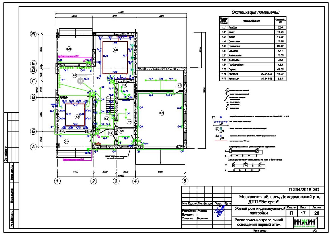
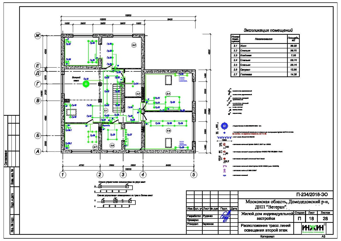
4. Чертежи групповых осветительных сетей дома и бани.
5. Чертежи линий слаботочных кабельных сетей дома.
6. Спецификация материалов и оборудования по системам электроснабжения и освещения.
Объем проекта: 30 листов.
Технические решения, принятые в проекте электрики дома и бани, в соответствии с заданием на проектирование.
Расчетные показатели по электроснабжению.
o Расчетная электрическая мощность дома составила 20,88 кВт, с учетом коэффициента спроса 0,6, принятого согласно СП 256.1325800.2016;
o Расчетная электрическая мощность бани составила 4,80 кВт;
o При расчете учтено силовое оборудование: электроплита, кондиционеры, обогрев крыльца;
o Мощность потребителей резервного питания 4,8 кВт.
Распределительные электрические щиты.
o Проектом предусмотрено 2 распределительных щита, размещенных в доме и бане, оснащенных 69 автоматами;
o Автоматические выключатели, дифференциальные автоматы и УЗО в щитах - ABB;
o Щитовое оборудование размещено во встроенных корпусах ABB.
Силовая кабельная сеть (электропроводка в частном доме) и слаботочка.
o Электропроводка предусмотрена с использованием кабелей ВВГ нг -LS с медными жилами в ПВХ-оболочке (не поддерживает горение);
o Общая протяженность линий электроснабжения и освещения – 2 057 метров;
o Электропроводка предусмотрена скрытым способом, в защитной гофрированной ПВХ-трубе и металлорукаве в виниловой изоляции (в деревянных конструкциях);
o Запроектировано 144 точки подключения розеток и выключателей освещения;
o Для системы телевидения предусмотрены кабельные трассы с использованием кабеля Cavel SAT 703, в количестве 200 метров;
o Линии локальной сети предусмотрены с использованием провода UTP 4х2х0,51cat 5e, 650 метров.
Резервное электропитание.
Предусмотрено резервное электроснабжение дома, источник – дизельный генератор 6 кВт. К источнику резервного электропитания подключены следующие потребители электроэнергии:
- Котлы газовые бани и дома, циркуляционные насосы и системы очистки воды обоих строений;
- Освещение въездных ворот и периметра участка;
- Привод въездных и гаражных ворот, домофон.
Заземление.
Предусмотрен контур заземления на базе комплекта Ezetek EZ 6.
Технологии удобства (включены в проект электрики бесплатно).
В проекте электрике предусмотрено использование системы дистанционного управления открыванием въездных и гаражных ворот, калитки и включением группы освещения въезда и гаража.
Заказать проект электрики дома.
Узнать подробные цены на проект электрики.
Для этого дома с баней выполнен проект системы отопления, водоснабжения и котельных.

















