Выполненные проекты
Проект отопления для дома площадью 154 м.кв. в Тверской области
Объект: загородный дом из керамзитобетонных блоков площадью 154 м.кв., расположенный в ДНТ «Колос» Тверской области
Вариант отопления: «Базовый»
Стоимость проекта отопления, водоснабжения и канализации: 26 435 руб. со скидкой 15% за комплексный проект отопления и электрики (проект котельной бесплатно).
Проект теплового пункта, отопления, водоснабжения и канализации выполнен: 24.07.2018
Состав проекта теплового пункта отопления, водоснабжения и канализации дома:
1. Пояснительная записка проекта. Общие данные по системам отопления, водоснабжения и канализации загородного дома.
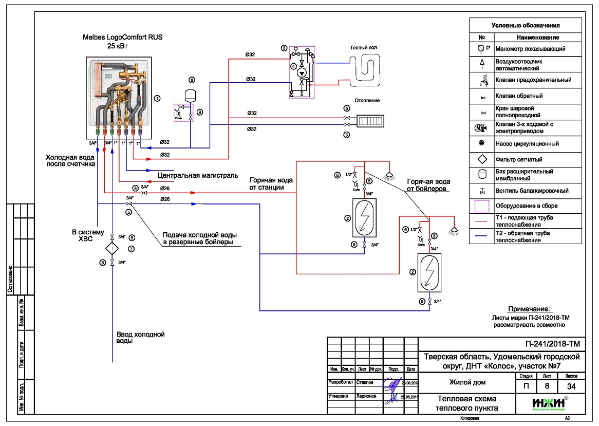
2. Тепломеханическая схема теплового пункта с размещением оборудования.
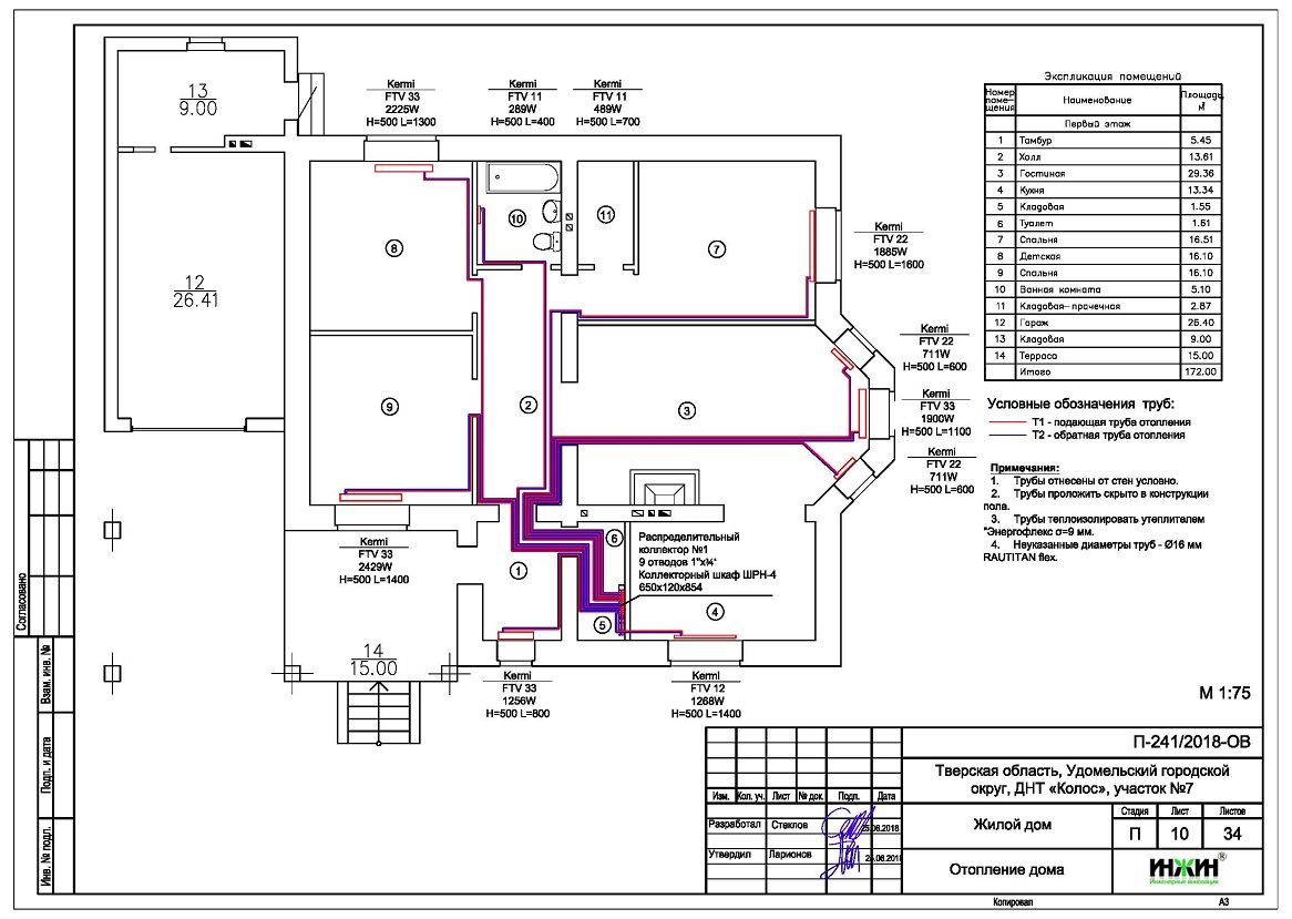
3. Комплект поэтажных чертежей радиаторного отопления дома.
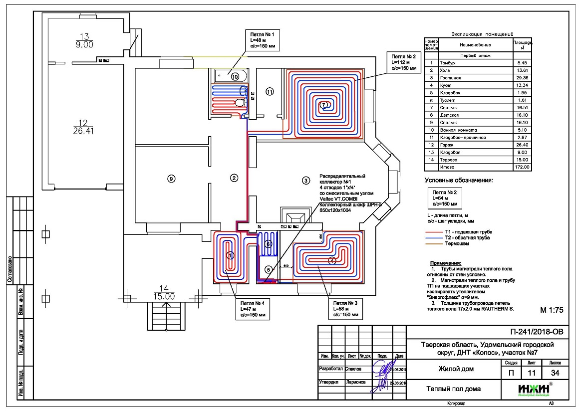
4. Комплект чертежей водяного теплого пола.
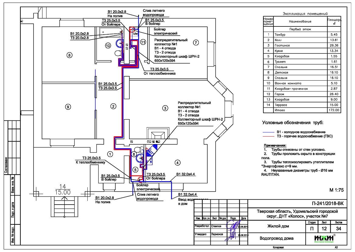
5. Комплект чертежей внутреннего водопровода и канализации.
6. Теплотехнический расчет отопления дома.
7. Спецификация материалов и оборудования по тепловому пункту, отоплению, теплому полу, водоснабжению и канализации дома.
Объем проекта: 34 листа.
Описание проекта отопления, теплового пункта, водоснабжения и канализации загородного дома в ДНТ «Колос» Тверской области.
Тепловой пункт (проект бесплатно).
o Размещен в доме, источником теплоснабжения является центральная магистраль с температурным графиком +130°/70°С и давлением сети 6-10 кгс/см2;
o Контуры теплоснабжения дома – радиаторное отопление, водяной теплый пол и горячее водоснабжение;
o В качестве распределителя теплоносителя от центральной магистрали использована квартирная станция Meibes Logotherm LogoComfort RUS с функцией приготовления горячей воды через теплообменник.
Автоматика отопления встроена в квартирную станцию и обеспечивает поддержание требуемого температурного режима системы отопления.
Система отопления дома (проект отопления).
o Выполнен теплотехнический расчет отопления, с учетом теплопотерь через ограждающие конструкции при наружной температуре -29°С для Тверской области (по СП 131.13330.2012), теплоотдачи отопительных приборов и теплого пола, расчетный расход тепла на отопление дома составил 15,19 кВт;
o Подобраны приборы для системы отопления: панельные стальные радиаторы Kermi, подключение снизу из стены;
o Схема радиаторного отопления двухтрубная, коллекторно-лучевая;
o Температурный график системы отопления 80/60°С;
o Трубы отопления из сшитого полиэтилена Rehau RAUTITAN flex, в теплоизоляции Энергофлекс толщиной 9мм;
o Коллектор отопления – Valtec на 9 отводов;
o Шкаф коллекторный Valtec – пристраиваемый, размещен в тепловом пункте;
o Теплоноситель в системе отопления и теплых полов – подготовленная вода из центральной магистрали;
o Регулирование отопления ручное, при помощи термоголовок на радиаторах.
Водяной теплый пол дома (проект теплого пола).
o Водяной теплый пол в доме предусмотрен на площади 34 м.кв., 4 петли;
o Контур теплого пола организован от контура отопления при помощи насосно-смесительного узла Valtec VT.COMBI с термоголовкой и функционирует в сезонном режиме (когда работает центральное отопление);
o Коллектор теплого пола Valtec с расходомерами на 4 отвода;
o Основание теплого пола – маты из ламинированного пенополистирола Elsen ElM01.50;
o Регулирование температуры теплого пола общее, автоматикой смесительного узла.
Водоснабжение дома.
o Схема внутреннего водопровода – коллекторная, без рециркуляции горячей воды;
o Для приготовления горячей воды используется теплообменник квартирной станции (в отопительный сезон), а также два электрических накопительных бойлера Gorenje, объемом 100 и 50 литров;
o Коллекторы водопровода – сборные, Valtec VTc.560, с запорными вентилями;
o Выполнен расчет 14-ти точек водопровода;
o Трубы системы водоснабжения – из сшитого полиэтилена Rehau в теплоизоляции Энергофлекс толщиной 9мм.
Внутренняя канализация.
o Предусмотрен безнапорный отвод стоков от санитарно-технических приборов;
o Количество точек канализации – 10 шт.;
o Теплоизоляция трубопроводов Энергофлекс, толщиной 13мм.
Для этого дома в Тверской области выполнен проект электрики.



















