Выполненные проекты
Проект электрики дома площадью 154 м.кв. в ДНТ «Колос»
Объект: загородный дом из керамзитобетонных блоков площадью 154 м.кв., расположенный в ДНТ «Колос» Тверской области
Цена (стоимость) проекта электрики: 12 345 руб. со скидкой 15% за комплексный проект электрики и отопления (проект слаботочной кабельной сети – бесплатно).
Проект электрики выполнен: 26.07.2018
Состав проекта электрики:
1. Пояснительная записка. Общие данные по электроснабжению, освещению и резервному электропитанию дома в Тверской области.
2. Однолинейные схемы вводного распределительного устройства и распределительного щита.
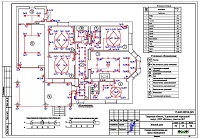
3. Чертежи кабельных трасс силовых электрических сетей (электропроводка).
4. Чертежи групповых осветительных сетей (освещения).
5. Чертежи линий охранно-пожарной сигнализации.
6. Спецификация материалов и оборудования по системе электроснабжения и освещения.
Объем проекта: 15 листов.
Описание проекта электрики загородного дома в ДНТ «Колос» Тверской области.
Расчетные показатели по электроснабжению.
o Расчетная электрическая мощность дома в ДНТ «Колос» составила 17,61 кВт, с учетом коэффициента спроса 0,45, принятого согласно СП 256.1325800.2016;
o При расчете учтено силовое оборудование: духовой шкаф, электроплита, электрические водонагреватели;
o Мощность потребителей резервного электропитания составила 10 кВт.
Распределительный электрический щит.
o Проектом предусмотрен распределительный щит, размещенный на 1 этаже размещенный в корпусе ABB и оснащенный 36 автоматами;
o Автоматические выключатели, дифференциальные автоматы и УЗО в щитах - ABB;
o В щите предусмотрен ограничитель перенапряжения.
Силовая кабельная сеть (проект электропроводки) и слаботочные трассы.
o Электропроводка предусмотрена с использованием кабелей ВВГ нг -LS с медными жилами в ПВХ-оболочке (ГОСТ);
o Общая протяженность кабельных трасс электроснабжения и освещения – 1 165 метров;
o Электропроводка предусмотрена скрытым способом, в защитной гофрированной ПВХ-трубе;
o Выполнен расчет 117 точек подключения розеток и выключателей освещения;
o Для системы телевидения предусмотрены кабельные трассы с использованием кабеля Cavel SAT 703, в количестве 75 метров;
o Линии локальной сети и сигнализации предусмотрены с использованием провода UTP 4х2х0,51cat 5e, 50 метров.
Резервное электропитание.
Предусмотрено резервное электроснабжение дома, источник – дизельный генератор мощностью 10 кВт (модель по выбору Заказчика).
Заземление.
Предусмотрен контур заземления на базе комплекта Ezetek EZ 6.
Для этого дома в Тверской области выполнен проект отопления, водоснабжения и канализации.
















