Выполненные проекты
Проект электрики деревянного дома с баней в КП «Ивушкино»
Объект: деревянный частный дом с баней, гаражом и летним бассейном, общей площадью 198 м.кв., расположенный в КП «Ивушкино» Домодедовского района Московской области
Цена (стоимость) проекта электрики: 15 988 руб. со скидкой 15% за комплексный проект электрики и отопления (проект слаботочки бесплатно).
Проект электрики деревянного дома выполнен: 24.09.2018
Состав проекта электрики деревянного дома с баней и летним бассейном:
1. Пояснительная записка. Общие данные по электроснабжению и освещению деревянного дома с баней в КП «Ивушкино»
2. Однолинейные схемы вводного распределительного устройства и распределительных щитов для каждого из строений.
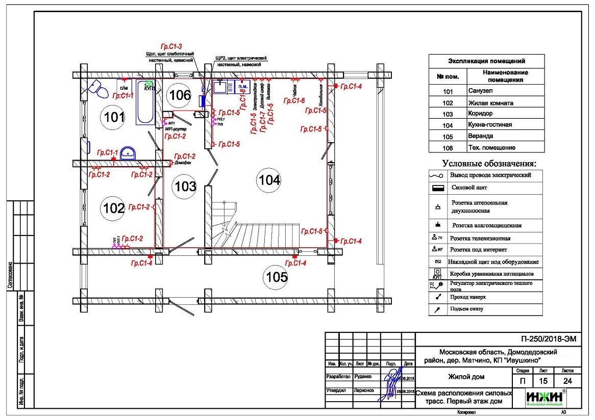
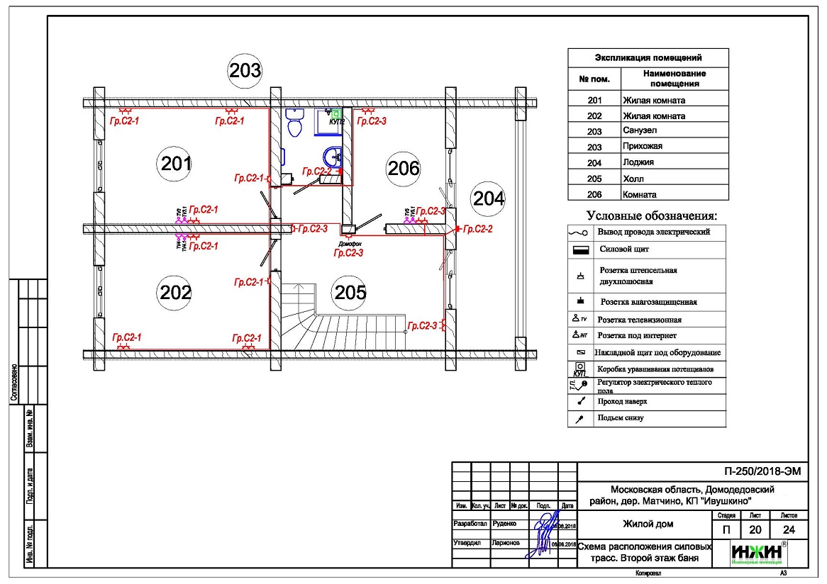
3. Чертежи кабельных трасс силовых электрических сетей дома, бани и гаража.
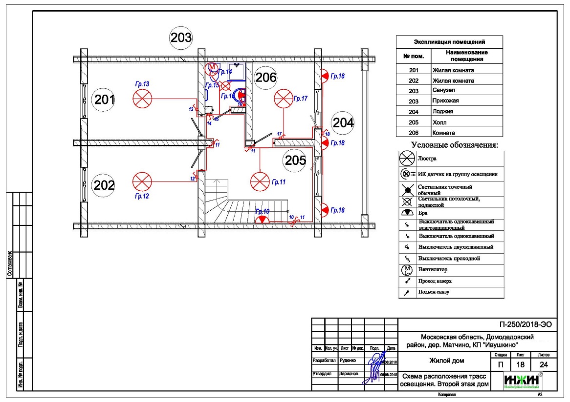
4. Чертежи групповых осветительных сетей трех строений.
5. Чертежи линий слаботочных кабельных сетей.
6. Спецификация материалов и оборудования по электрике дома из бревна с баней и гаражом.
Объем проекта электрики дома в в КП «Ивушкино»: 26 листов.
Описание проекта электрики загородного деревянного дома с баней в КП «Ивушкино».
Расчетные показатели по электроснабжению дома с баней и гаражом КП «Ивушкино».
o Расчетная электрическая мощность дома, бани и гаража составила 15,27 кВт, с учетом коэффициента спроса 0,65, принятого согласно СП 256.1325800.2016;
o При расчете учтено силовое оборудование: котельная, духовой шкаф, привод ворот, оборудование летнего бассейна.
o Мощность потребителей стабилизированного питания 10 кВт, резервного электропитания – 15 кВт.
Распределительные электрические щиты дома, гаража и бани.
o Проектом предусмотрено 3 распределительных щита, размещенных в каждом из строений, вводной щит (ВРУ) – в гараже, по одному щиту в доме и бане;
o Все щиты оснащены 48 автоматами (автоматические выключатели, дифференциальные автоматы и УЗО) производства ABB;
o Щитовое оборудование размещено в навесных корпусах ABB.
Силовая и слаботочная кабельная сеть дома, бани и гаража (электропроводка).
o Электропроводка предусмотрена с использованием кабелей ВВГ нг -LS с медными жилами в ПВХ-оболочке (не поддерживает горение), в бане и доме также с ретро-кабелем Bironi;
o Общая протяженность линий электроснабжения и освещения – 2005 метров;
o Электропроводка предусмотрена комбинированным способом скрытым и открытым, в металлорукаве в виниловой изоляции и витым ретро-проводом;
o Запроектировано 194 точки подключения розеток и выключателей освещения;
o Для системы телевидения и локальной сети предусмотрены кабельные трассы с использованием кабеля Bironi, в количестве 250 метров.
Резервное и стабилизированное электропитание.
Предусмотрено резервное электроснабжение трех строений, источником резервного питания по проекту является дизельный генератор мощностью 15 кВт, расположенный в гараже.
Стабилизированное электропитание обеспечивается стабилизатором «Штиль».
Заземление.
Предусмотрен контур заземления на базе комплекта Ezetek EZ 8.























