Выполненные проекты
Проект отопления дома 1163 м.кв. с гаражом и баней
Объект: частный дом из Поротерма (Porotherm), с гаражом и баней, общей площадью 1 163 м.кв., расположенный в КП «Пушкино», г.Москва
Вариант отопления: «Комфортный+»
Цена проекта отопления, водоснабжения и канализации: 138 222 руб. со скидкой 15% за комплексный проект отопления и электрики (проект котельной, теплотрассы и тепловых пунктов бесплатно).
Проект котельной, тепловых пунктов, теплотрассы, отопления, водоснабжения и канализации выполнен: 03.09.2018
Состав проекта котельной отопления, водоснабжения и канализации трех строений –дома, гаража и бани:
1. Пояснительная записка проекта. Общие данные по системам отопления, водоснабжения и канализации частного дома с баней и гаражом.
2. Тепломеханическая схема котельной с размещением оборудования в помещении гаража.
3. Тепломеханическая схема теплового пункта дома с размещением оборудования в помещении цокольного этажа дома.
4. Тепломеханическая схема теплового пункта бани с размещением оборудования в помещении цокольного этажа бани.
5. Комплекты поэтажных чертежей радиаторного отопления дома, гаража и бани.
6. Комплекты чертежей водяного теплого пола дома и бани.
7. Комплекты чертежей внутреннего водопровода и канализации дома, гаража и бани.
8. Теплотехнический расчет отопления каждого из трех строений.
9. Спецификация материалов и оборудования по котельной, тепловым пунктам, теплотрассе, отоплению, теплому полу, водоснабжению и канализации дома, бани и гаража.
Объем проекта: 141 лист.
Описание проекта отопления, котельной, тепловых пунктов, водоснабжения и канализации частного дома, гаража и бани в КП «Пушкино».
Котельная для трех строений (проект котельной бесплатно).
o Размещена в помещении котельной гаража;
o Предусмотрен каскад из двух напольных газовых котлов с чугунным теплообменником Vaillant atmoCRAFT мощностью 65 кВт каждый;
o Контуры теплоснабжения котельной – отопление гаража, бойлер гаража, теплоснабжение дома и бани;
o Для приготовления горячей воды гаража предусмотрен накопительный бойлер Vaillant uniSTOR, объемом 150 литров;
o Расширительные баки отопления и водоснабжения Flamco, объемом 35 и 12 литров соответственно;
o Циркуляционные насосы отопления и теплого пола Grundfos, использованы энергоэффективные насосы UPM3 Hybrid (в составе насосных групп), аналог насосов серии Alpha и MAGNA1;
o Дымоудаление естественное, использованы дымоходные трубы из нержавеющей стали Rosinox, диаметром 180 мм, раздельно для каждого котла, размещение в строительной в шахте;
o Распределительный коллектор напольный - Meibes Victaulic с гидравлической стрелкой и насосными группами;
o Предусмотрена автоматическая подпитка отопления при помощи клапана Watts ALOMD;
o Автоматика котельной – блок Vaillant calorMATIC 630/3 с тремя дополнительными смесительными модулями VR 60.
Автоматизация котельной, отопления и теплого пола (вариант «Комфортный+»).
o Автоматическое регулирование отопления по наружной температуре (погодное регулирование);
o Автоматическое поддержание заданной температуры в контурах отопления, теплого пола и горячего водоснабжения каждого из трех строений;
o Электронное регулирование температуры отопления и теплого пола по помещениям;
o Дистанционный контроль за работой котла по мобильному Интернету при помощи GSM-модуля ZONT H-1V.
Тепловой пункт дома (проект бесплатно).
o Размещен в помещении цокольного этажа дома;
o Коллектор теплоснабжения Meibes «Поколение 8» с гидравлической стрелкой и насосными группами на 4 контура - радиаторное отопление цокольного и первого этажа, отопления второго и третьего этажей дома, водяной теплый пол и горячее водоснабжение (бойлер косвенного нагрева);
o Для приготовления горячей воды предусмотрен накопительный бойлер Vaillant uniSTOR, объемом 300 литров;
o Расширительные баки отопления и водоснабжения Flamco, объемом 50 и 25 литров соответственно;
o Насосы отопления и теплого пола Grundfos, энергоэффективные модели.
Тепловой пункт бани (проект бесплатно).
o Размещен в помещении цокольного этажа бани;
o Коллектор теплоснабжения Meibes «Поколение 8» с гидравлической стрелкой и насосными группами на 3 контура - радиаторное отопление, водяной теплый пол и бойлер;
o Для приготовления горячей воды предусмотрен накопительный бойлер Vaillant uniSTOR, объемом 200 литров;
o Расширительные баки отопления и водоснабжения Flamco, объемом 25 и 18 литров соответственно;
o Насосы отопления и теплого пола Grundfos, модели с частотным регулированием.
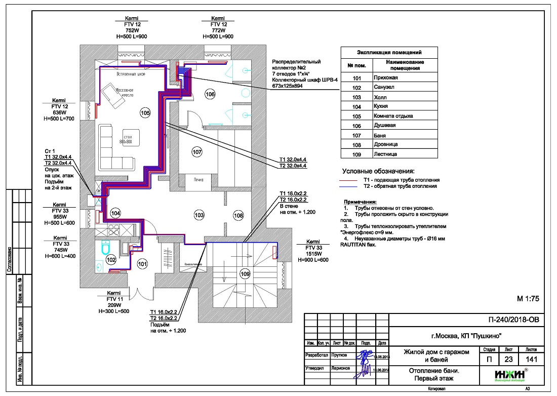
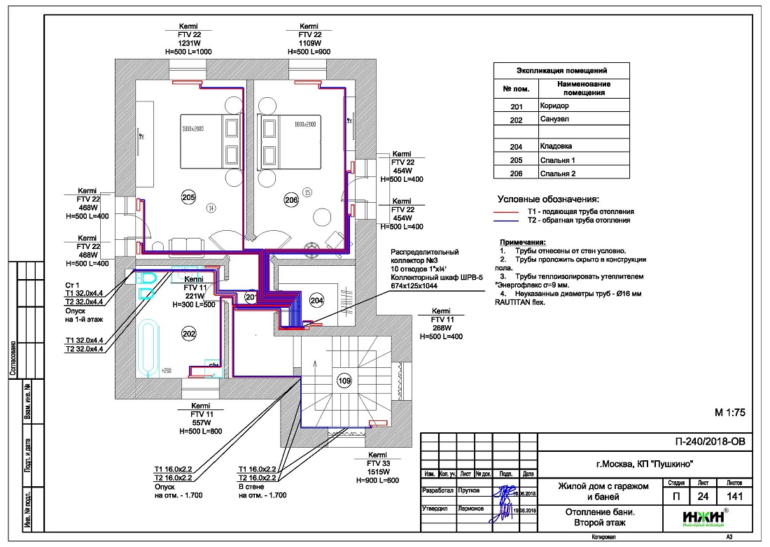
Система отопления бани, гаража и дома (проект отопления).
o Выполнен теплотехнический расчет отопления дома, гаража и бани из керамических блоков Поротерм (Porotherm), с учетом теплопотерь через ограждающие конструкции при наружной температуре -28°С для Московской области (по СП 131.13330.2012), теплоотдачи отопительных приборов, теплого пола, полотенцесушителей (в санузлах) и оборудования в котельной и тепловых пунктах, расчетный расход тепла на отопление дома составил 61,99 кВт, на отопление бани - 16,67 кВт, на отопление гаража - 20,74 кВт;
o Подобраны приборы для систем отопления дома, гаража и бани: панельные стальные радиаторы Kermi с нижним подключением;
o Схема радиаторного отопления всех трех строений двухтрубная, коллекторно-лучевая, с принудительной циркуляцией теплоносителя и температурным графиком 80/60°С;
o Трубы отопления из сшитого полиэтилена Rehau RAUTITAN flex;
o Коллекторы отопления – Rehau HKV, 12 шт.;
o Шкафы коллекторные Valtec встраиваемые и пристраиваемые;
o Теплоизоляция трубопроводов отопления Энергофлекс, толщиной 9мм;
o Теплоноситель в системе отопления и теплых полов всех строений– подготовленная вода;
o Регулирование отопления электронное, при помощи комнатных термостатов с дисплеем Rehau Nea Smart D и сервоприводов.
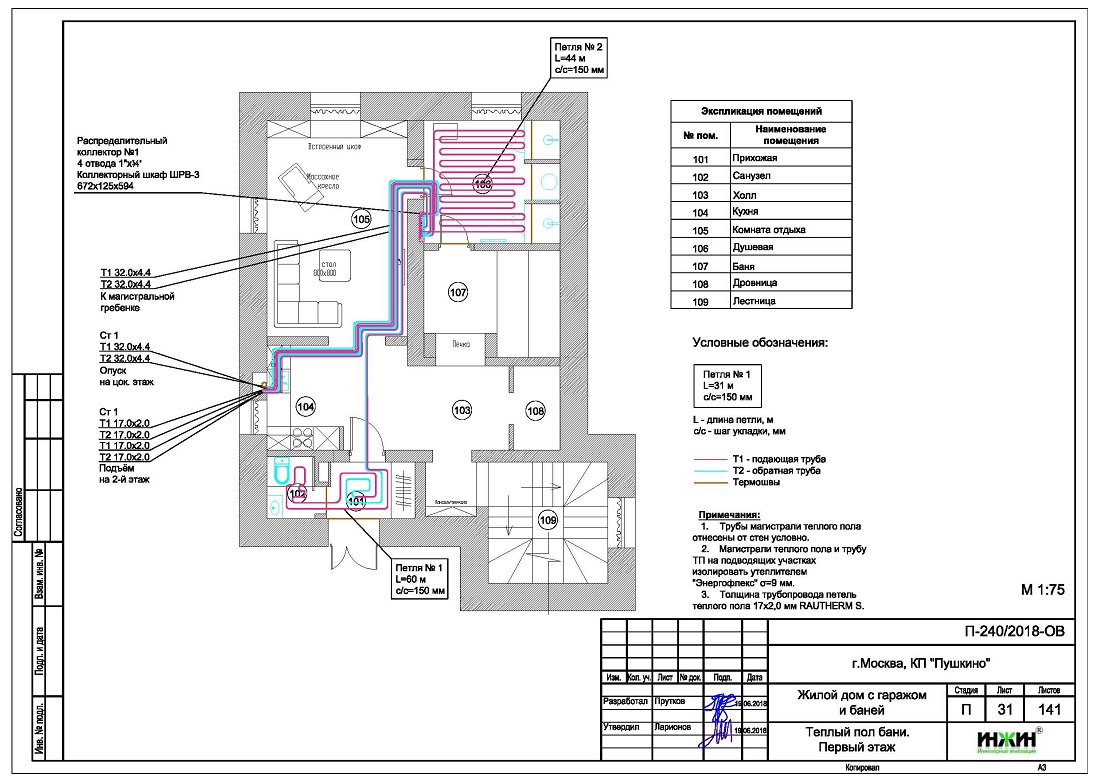
Водяной теплый пол дома и бани (проект теплого пола).
o Водяной теплый пол в доме предусмотрен на площади 86 м.кв., 13 петель;
o Водяной теплый пол в бане предусмотрен на площади 28 м.кв., 4 петли;
o Предусмотрено отдельные контуры для теплоснабжения водяного теплого пола в тепловых пунктах каждого из строений;
o Трубопроводы теплого пола - сшитый полиэтилен Rehau RAUTHERM S;
o Коллекторы теплого пола Rehau, 3 шт.;
o Основание теплого пола – маты из ламинированного пенополистирола Elsen ElM01.50;
o Регулирование температуры теплого пола двухуровневое – общее, автоматикой котельной и зональное, при помощи комнатных термостатов Rehau NEA HT и сервоприводов Uni.
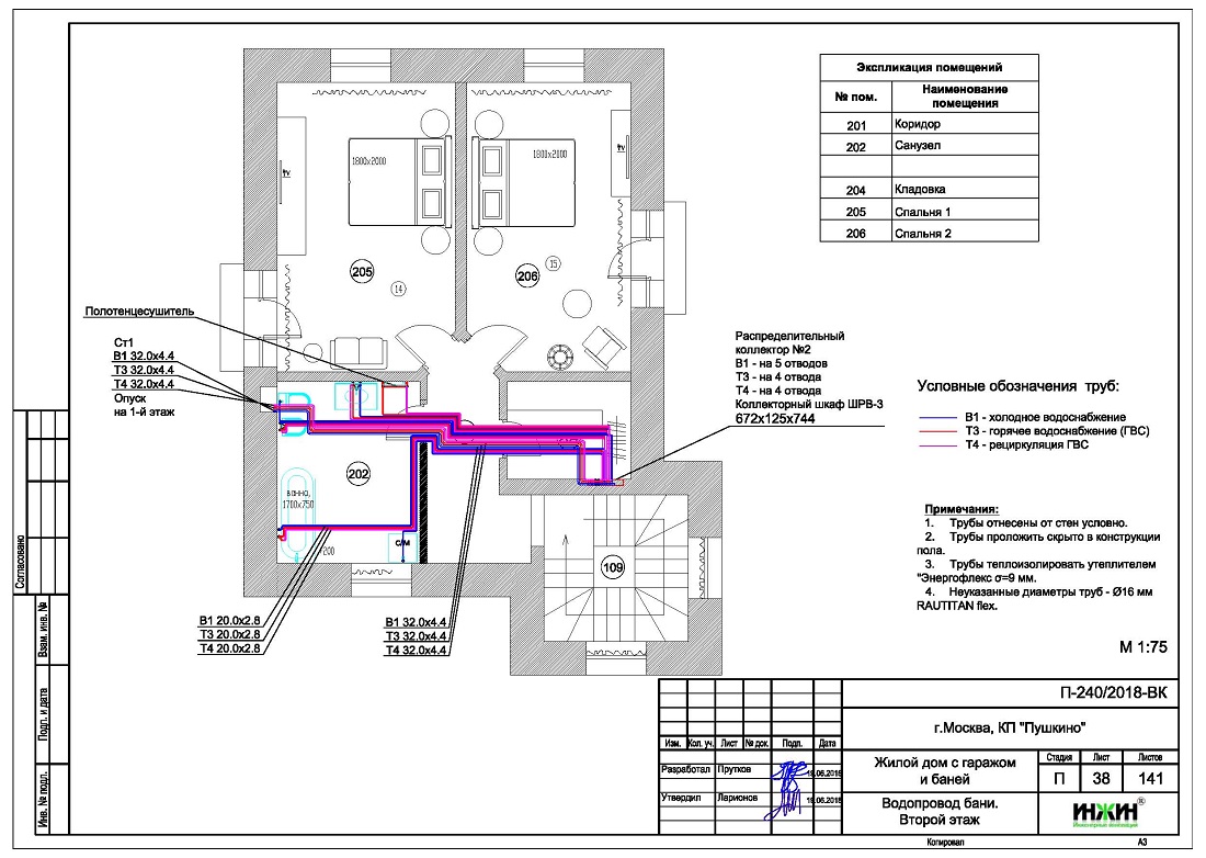
Водоснабжение дома , бани и гаража.
o Схема внутреннего водопровода всех строений – коллекторная, с рециркуляцией горячей воды через проходные водорозетки;
o Коллекторы водопровода всех строений – сборные, Valtec VTc.560, с запорными вентилями;
o Выполнен расчет 84-х точек водопровода и полотенцесушителей для всех строений;
o Трубы системы водоснабжения – из сшитого полиэтилена Rehau RAUTITAN;
o Для летнего водопровода предусмотрено три наружных крана Meibes SEPP-Eis с защитой от замерзания;
o Теплоизоляция трубопроводов водопровода Энергофлекс, толщиной 9мм.
Внутренняя канализация дома, бани и гаража в КП «Пушкино».
o В доме предусмотрен комбинированный отвод стоков от санитарно-технических приборов – безнапорный, с напорным участком в цокольном этаже, для остальных строений отвод стоков безнапорным способом;
o Общее количество точек системы канализации – 57 шт.;
o Трубопроводы безнапорной канализации – раструбные, СИНИКОН, диаметром 50 и 110мм;
o Для напорных участков (в доме) используются трубы из армированного полипропилена Valtec диаметром 40мм;
o Теплоизоляция трубопроводов канализации Энергофлекс, толщиной 13мм;
o На напорных участках предусмотрено использование канализационно-насосных станций (КНС) Grundfos Sololift2 CWС-3 и Sololift2 С-3 (3 шт).
o В помещениях душевых (баня) предусмотрены дренажные каналы (душевые лотки) Viega Advantix Vario, в количестве 3 шт.




























