Выполненные проекты
Проект отопления дома из бревна 198 м.кв. с баней
Объект: частный дом из бревна с баней, гаражом и летним бассейном, общей площадью 198 м.кв., расположенный в КП «Ивушкино» Московской области
Вариант отопления: «Комфортный»
Цена проекта отопления, водоснабжения и канализации: 32 300 руб. со скидкой 15% за комплексный проект отопления и электрики дома и бани (проект котельной бесплатно).
Проект котельной отопления, водоснабжения и канализации выполнен: 26.09.2018
Состав проекта котельной отопления, водоснабжения и канализации дома с гаражом и баней:
1. Пояснительная записка проекта. Общие данные по системам отопления, водоснабжения и канализации частного деревянного дома с гаражом и баней.
2. Тепломеханическая схема котельной с размещением оборудования в помещении гаража.
3. Чертеж трассы тепло- и водоснабжения между гаражом, домом и баней.
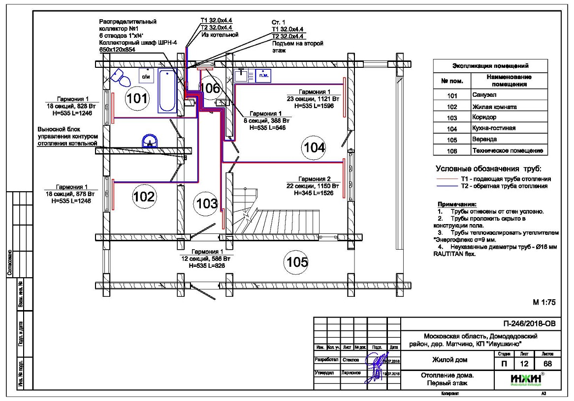
4. Комплект поэтажных чертежей радиаторного отопления дома.
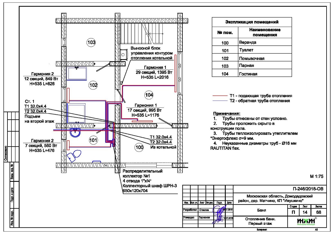
5. Комплект поэтажных чертежей радиаторного отопления бани.
6. Комплект чертежей водяного теплого пола дома и бани.
7. Комплект чертежей внутреннего водопровода и канализации дома.
8. Комплект чертежей внутреннего водопровода и канализации бани.
9. Теплотехнический расчет отопления дома, бани и помещения котельной.
10. Спецификация материалов и оборудования по котельной, отоплению, теплому полу, водоснабжению и канализации дома, бани и гаража.
Объем проекта отопления дома с баней: 68 листов.
Описание проекта отопления, котельной, канализации и водоснабжения деревянного дома в КП «Ивушкино».
Котельная для дома и бани (проект котельной бесплатно).
o Размещена в помещении котельной гаража;
o Предусмотрен напольный газовый конденсационный котел Vaillant ecoVIT/5 мощностью 34 кВт;
o Контуры теплоснабжения котельной – радиаторное отопление дома, радиаторное отопление бани, водяной теплый дома, теплый бани, горячее водоснабжение всех строений, теплоснабжение летнего бассейна, всего шесть контуров;
o Для приготовления горячей воды всех строений предусмотрен накопительный бойлер Vaillant uniSTOR, объемом 200 литров;
o Расширительные баки отопления и водоснабжения Flamco, объемом 50 и 18 литров соответственно;
o Циркуляционные насосы отопления и теплого пола Grundfos, использованы энергоэффективные насосы UPM3 Hybrid (в составе насосных групп), аналог насосов серии Alpha;
o o Дымоудаление принудительное, использован базовый набор коаксиального дымохода 80/125 мм для прохода через кровлю, размещение дымохода в строительной шахте гаража;
o Распределительный коллектор настенный - Meibes «Поколение 8» с насосными группами, для теплоснабжения летнего бассейна предусмотрена группа с раздельным теплообменником, наружная линия на антифризе;
o Предусмотрена автоматическая подпитка отопления при помощи клапана Watts ALOMD;
o Автоматика котельной – блок Vaillant calorMATIC 630/3 с тремя дополнительными смесительными модулями VR 60, а также GSM-термостат ZONT H-1V.
Автоматизация котельной, отопления и теплого пола (вариант «Комфортный+»).
o Автоматическое регулирование отопления по наружной температуре (погодное регулирование) и температуре в помещениях дома и бани;
o Автоматическое поддержание заданной температуры в контурах отопления, теплого пола всех строений;
o Электронное регулирование контуров отопления при помощи программируемых выносных пультов VR 90/3 (по одному на дом и баню);
o Дистанционный контроль за работой котла по мобильному Интернету;
o Дистанционное переключение котла на один из двух режимов работы «Комфортный» и «Экономный».
Система отопления бани, гаража и дома (проект отопления).
o Выполнен теплотехнический расчет отопления дома, бани и помещения котельной, с учетом теплопотерь через ограждающие конструкции при наружной температуре -28°С для Московской области (по СП 131.13330.2012), расчетный расход тепла на отопление дома составил 15,09 кВт, на отопление бани 10,29 кВт, на отопление помещения котельной – 3,29 кВт. Общий расход тепла на отопление трех строений – 28,67 кВт;
o Подобраны приборы для системы отопления: стальные трубчатые радиаторы «Гармония» (КЗТО) и стальные панельные радиаторы Kermi (для помещения котельной);
o Схема радиаторного отопления всех строений двухтрубная, коллекторно-лучевая, с принудительной циркуляцией теплоносителя и температурным графиком 80/60°С;
o Трубы отопления из сшитого полиэтилена Rehau RAUTITAN flex – для всех строений и теплотрассы;
o Коллекторы отопления дома и бани – Rehau HKV, 4 шт.;
o Шкафы коллекторные Valtec пристраиваемые, для всех строений;
o Теплоизоляция трубопроводов отопления и теплотрассы Энергофлекс, толщиной 9мм и 13мм соответственно;
o Теплоноситель в системе отопления и теплых полов дома и бани – подготовленная вода, в контуре теплоснабжения летнего бассейна – антифриз «Твой дом», на основе пропиленгликоля;
o Регулирование отопления в комнатах дома и бани при помощи терморегуляторов на радиаторах отопления.
Водяной теплый пол дома и бани (проект теплого пола).
o Водяной теплый пол в доме и бане предусмотрен только на первых этажах;
o Площадь водяного теплого пола в доме - 59 м.кв., 7 петель;
o Площадь водяного теплого пола в бане - 38 м.кв., 5 петель
o Предусмотрено два отдельных контура для теплоснабжения водяного теплого пола – один для дома, один для бани;
o Трубопроводы теплого пола - сшитый полиэтилен Rehau RAUTHERM S;
o Коллекторы теплого пола Rehau с расходомерами – на 7 и 5 отводов;
o Основание теплого пола – теплораспределительные пластины Valtec (сухая укладка);
o Регулирование температуры теплого пола общее, автоматикой котельной.
Водоснабжение дома, бани (проект водопровода).
o Горячее и холодное водоснабжение дома и бани предусмотрено из помещения котельной посредством трассы водоснабжения;
o Схема внутреннего водопровода дома и бани – коллекторная, с рециркуляцией горячей воды через полотенцесушители;
o Коллекторы водопровода – сборные, Valtec VTc.560, с запорными вентилями;
o Выполнен расчет 18-ти точек водопровода и полотенцесушителей дома и 9-ти точек водопровода бани;
o Трубы системы водоснабжения – из сшитого полиэтилена Rehau RAUTITAN;
o Для летнего водопровода предусмотрен один наружный кран Meibes SEPP-Eis с защитой от замерзания (из бани);
o Теплоизоляция трубопроводов водопровода Энергофлекс, толщиной 9мм.
Внутренняя канализация дома и бани в КП «Ивушкино».
o Предусмотрен безнапорный отвод стоков от санитарно-технических приборов всех строений;
o Количество точек системы канализации – 9 шт. в доме и 4 шт. – в бане;
o Трубопроводы безнапорной канализации – раструбные, СИНИКОН, диаметром 50 и 110мм;
o Для напорных участков (в доме) используются трубы из армированного полипропилена Valtec диаметром 40мм;
o Теплоизоляция трубопроводов канализации Энергофлекс, толщиной 13мм;
o В бане предусмотрен трап Viega, с сухим затвором (максимальная нагрузка 300 кг, рамка из пластмассы).
Для этого дома из бревна с баней и летним бассейном выполнен проект электрики.
По этому проекту выполнен монтаж отопления, водоснабжения и канализации для дома с баней из бревна в КП "Ивушкино".






















