Выполненные проекты
Проект электрики частного дома с баней и гаражом
Объект: трехэтажный загородный дом с гаражом и баней, общей площадью 1 163 м.кв., расположенный в КП «Пушкино», г.Москва
Цена (стоимость) проекта электрики: 93 912 руб. со скидкой 15% за комплексный проект электрики и отопления (проект слаботочки и резервного электроснабжения – бесплатно).
Проект электрики выполнен: 21.11.2018
Состав проекта электрики дома с баней и гаражом в г. Москва:
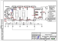
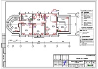
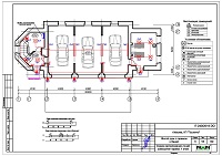
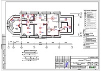
1. Пояснительная записка. Общие данные по электроснабжению и освещению всех трех строений.
2. Однолинейные схемы вводного распределительного устройства и распределительных щитов дома, гаража и бани.
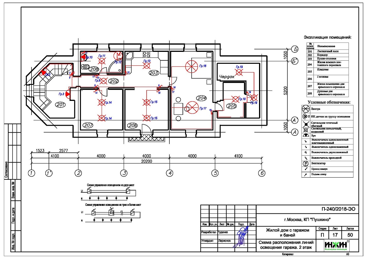
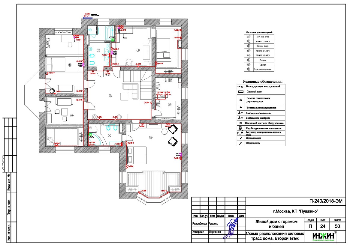
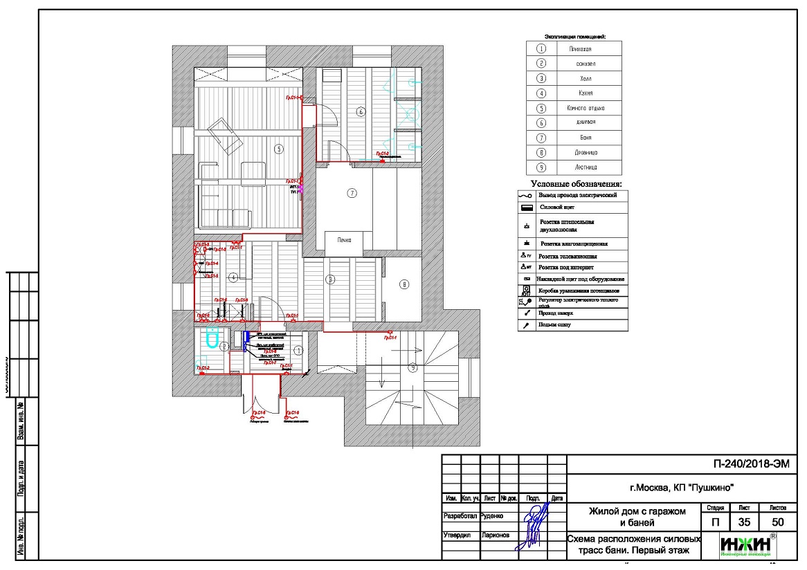
3. Чертежи электропроводки цокольного, первого и второго этажей дома, а также гаража и бани.
4. Чертежи групповых осветительных сетей дома, бани и гаража.
5. Чертежи линий слаботочных кабельных сетей (сигнализации и телевидения) гаража. бани и дома.
6. Спецификация материалов и оборудования по электрике и электропроводке дома с гаражом и баней в г. Москва.
Объем проекта электрики дома 1 163 м.кв.: 51 лист.
Описание проекта электрики частного дома с баней и гаражом в Москве.
Расчетные показатели по электроснабжению и освещению частного дома с баней и гаражом.
o Расчетная электрическая мощность дома, гаража и бани составила 67,62 кВт, с учетом коэффициента спроса 0,45, принятого согласно СП 256.1325800.2016;
o При расчете учтено силовое оборудование: вентустановка, оборудование котельной, обогрев крыльца, духовой шкаф, скважинный насос, канализационно-насосные станции;
o Мощность потребителей резервного электропитания 25,00 кВт.
Распределительные электрические щиты.
o Проектом предусмотрено 3 распределительных щита, размещенных в каждом из строений и оснащенных 82-мя автоматами;
o Автоматические выключатели, дифференциальные автоматы и УЗО в щитах – ABB, размещены во встроенных и пристроенных корпусах ABB.
Силовая кабельная сеть (электропроводка).
o Электропроводка всех строений предусмотрена с использованием кабелей ВВГ нг -LS с медными жилами в ПВХ-оболочке (не поддерживает горение);
o Общая протяженность линий электроснабжения и освещения – 5 800 метров;
o Электропроводка предусмотрена скрытым способом, в защитной гофрированной ПВХ-трубе (усиленной конструкции);
o Запроектировано 476 точек подключения розеток и выключателей освещения в доме, гараже и бане;
o Для системы телевидения предусмотрены кабельные трассы с использованием кабеля Cavel SAT 703, в количестве 380 метров.
Резервное и стабилизированное электропитание.
Предусмотрено резервное электроснабжение дома, источник - дизельный генератор Cummins C28D5 мощностью 25 кВт (трехфазный).
Стабилизированное электропитание обеспечивается стабилизатором РусЭлт СДТ-М-48/3.
Заземление.
Предусмотрен контур заземления на базе комплекта Ezetek EZ 8.
Для этого дома 1 163 м.кв. выполнен проект отопления, водоснабжения и канализации.






























