Выполненные проекты
Проект электрики таунхауса площадью 148 м.кв.
Объект: трехэтажный таунхаус площадью 148 м.кв., расположенный в г. Подольск, ЖК "Каскад-Парк"
Цена (стоимость) проекта электрики: 14 060 руб.
Проект электрики таунхауса выполнен: 13.12.2018
Состав проекта электрики таунхауса в ЖК "Каскад-Парк":
1. Пояснительная записка. Общие данные по электроснабжению и освещению таунхауса в г.Подольск.
2. Однолинейная схема вводного распределительного устройства и распределительного щита таунхауса.
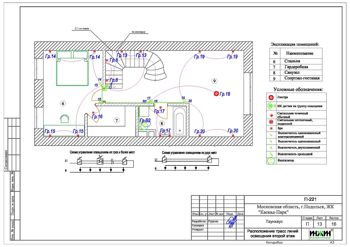
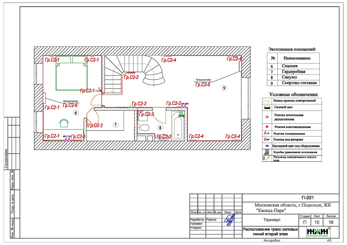
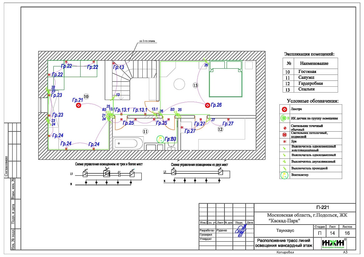
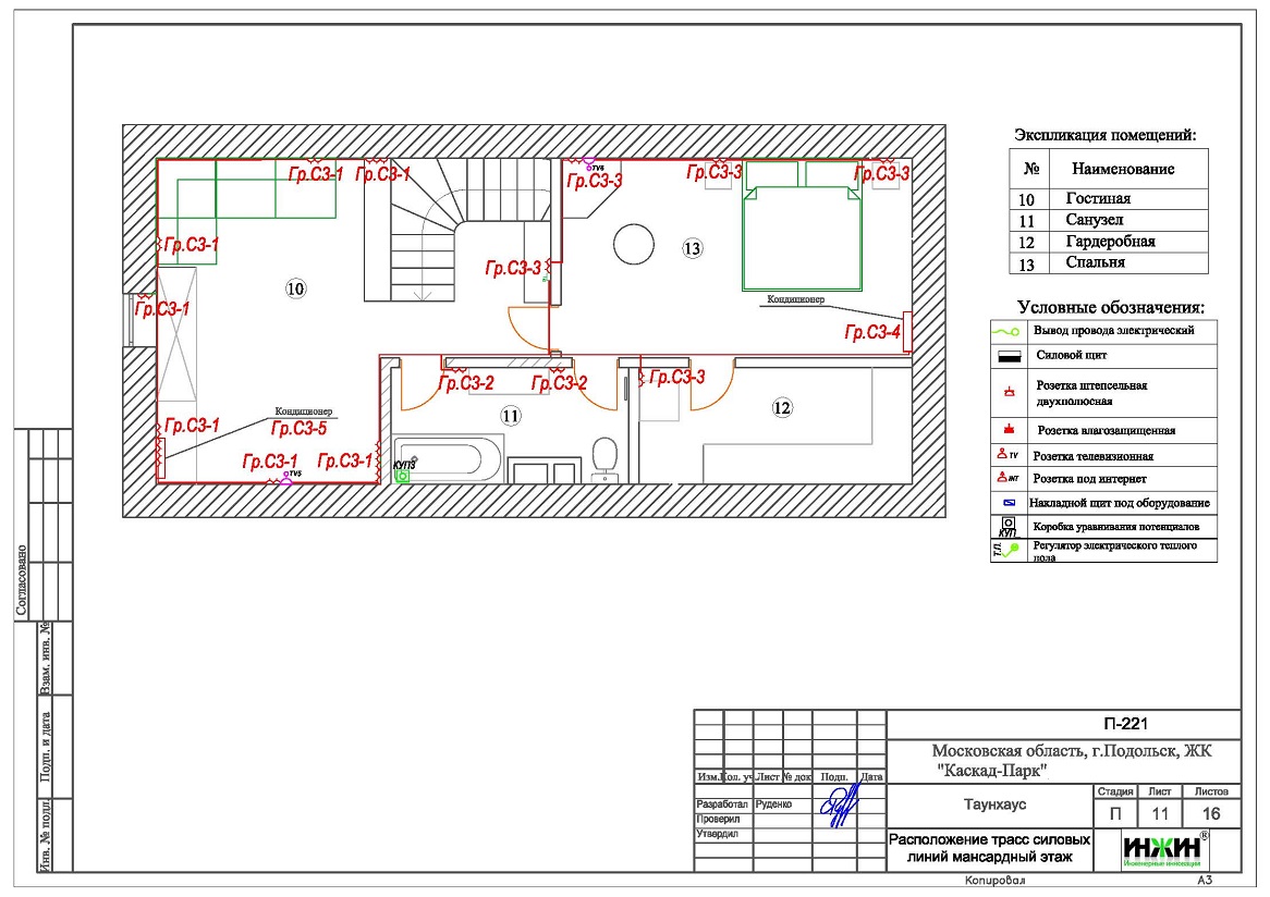
3. Чертежи электропроводки первого, второго и мансардного этажей таунхауса в ЖК "Каскад-Парк".
4. Чертежи групповых осветительных сетей таунхауса.
5. Чертежи линий слаботочных кабельных сетей.
6. Спецификация материалов и оборудования по электрике таунхауса в Подольске.
Объем проекта электрики таунхауса в г.Подольск: 16 листов.
Описание проекта электрики таунхауса в ЖК "Каскад-Парк".
Расчетные показатели по электроснабжению таунхауса в г. Подольск.
o Расчетная электрическая мощность таунхауса составила 10,2 кВт, с учетом коэффициента спроса 0,5, принятого согласно СП 256.1325800.2016;
o При расчете учтено силовое оборудование: оборудование котельной, кухонная техника, кондиционер.
Распределительный электрический щит таунхауса.
o Проектом предусмотрен электрический распределительный щит, размещенных на первом этаже и оснащенный 26-ю автоматами;
o Автоматические выключатели, дифференциальные автоматы и УЗО в щитах – Hager, размещены во встроенном корпусе Hager на 48 модулей с непрозрачной дверцей.
Силовая кабельная сеть (проект электропроводки) таунхауса в ЖК "Каскад-Парк".
o Электропроводка предусмотрена с использованием кабелей ВВГ нг -LS с медными жилами в ПВХ-оболочке (не поддерживает горение);
o Общая протяженность линий электроснабжения и освещения таунхауса – 920 метров;
o Электропроводка предусмотрена скрытым способом, в защитной гофрированной ПВХ-трубе (усиленной конструкции);
o Запроектировано 165 точек подключения розеток и выключателей освещения;
o Для системы телевидения предусмотрены кабельные трассы с использованием кабеля Cavel SAT 703, в количестве 200 метров.
Резервное электроснабжение таунхауса проектом не предусмотрено.



















