Выполненные проекты
Отопление и водоснабжение дома 173 м.кв. в д. Юрлово
Объект: частный дом из газобетонных блоков, площадью 173 м.кв., расположенный в дер. Юрлово Можайского района Московской области
Вариант отопления: «Комфортный»
Цена проекта отопления и водоснабжения: 19 030 руб.
Проект котельной отопления и водоснабжения выполнен: 26.12.2018
Состав проекта котельной отопления и водоснабжения дома в дер. Юрлово:
1. Пояснительная записка проекта, общие данные по системам отопления и водоснабжения частного дома 173 м.кв.
2. Тепломеханическая схема котельной с размещением оборудования в помещении 1-го этажа дома в дер. Юрлово.
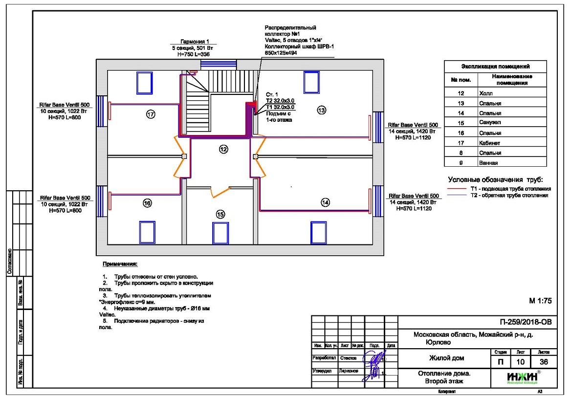
3. Комплект поэтажных чертежей радиаторного отопления дома в дер. Юрлово.
4. Комплект чертежей водяного теплого пола на 2 этаже частного дома из газобетонных блоков.
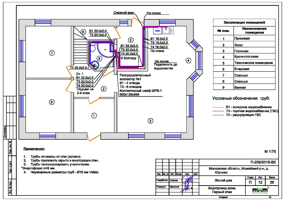
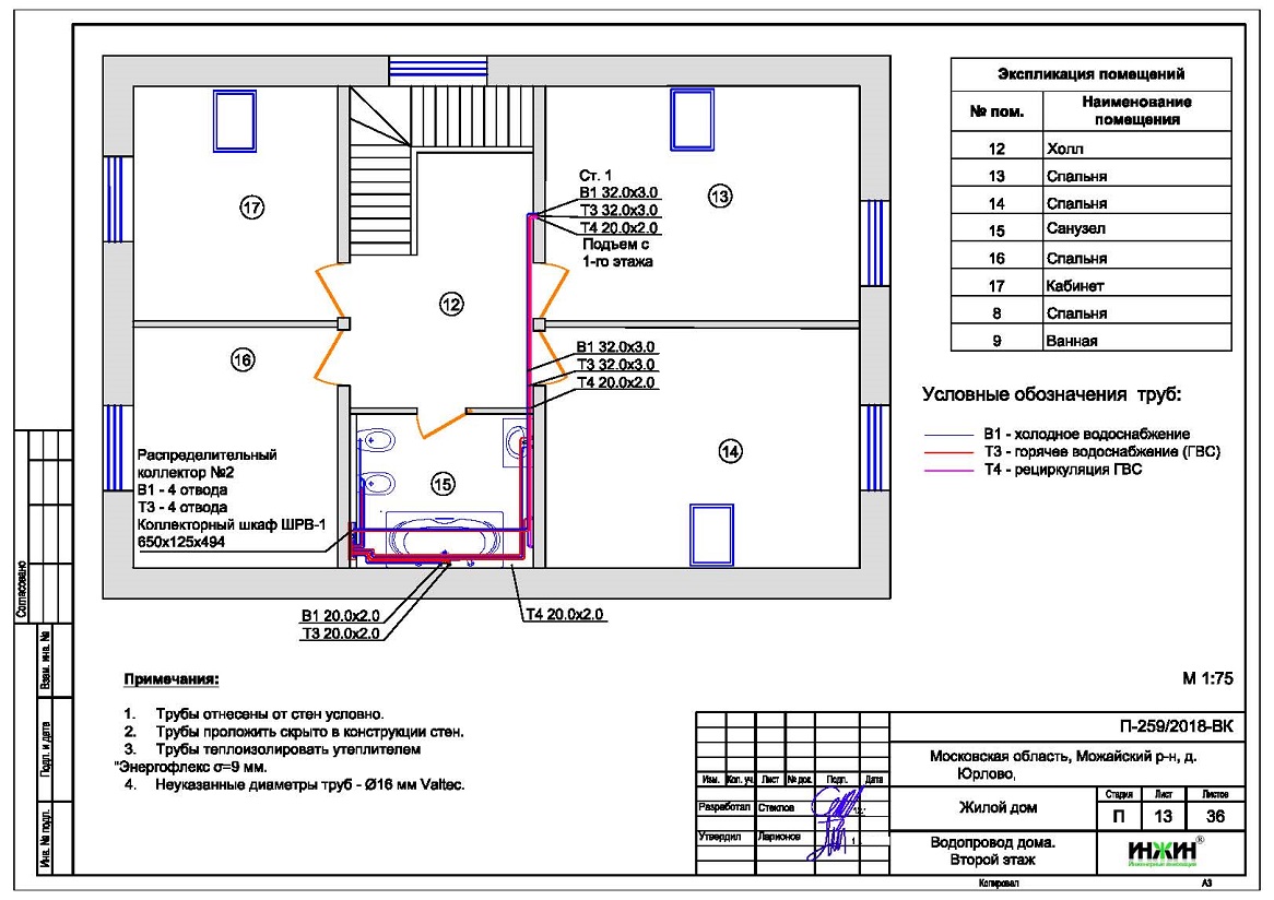
5. Комплект чертежей внутреннего водопровода.
6. Теплотехнический расчет отопления дома из газобетонных блоков.
7. Спецификация материалов и оборудования по котельной, отоплению, теплому полу водоснабжению дома в дер. Юрлово.
Объем проекта отопления и водопровода: 36 листов.
Описание проекта отопления, котельной и водоснабжения частного дома 173 м.кв.
Котельная частного дома в дер. Юрлово (проект котельной бесплатно).
o Размещена в помещении котельной 1-го этажа дома 173 м.кв.;
o Котел настенный газовый конденсационный Baxi LUNA-3 мощностью 31 кВт;
o Контуры теплоснабжения котельной – радиаторное отопление дома, водяной теплый пол и горячее водоснабжение (бойлер косвенного нагрева);
o Для приготовления горячей воды дома предусмотрен накопительный бойлер Baxi UBT, объемом 200 литров;
o Расширительные баки отопления и водоснабжения Flamco, объемом 18 литров каждый;
o Циркуляционные насосы отопления и теплого пола Grundfos, использованы энергоэффективные насосы UPM3 Hybrid (в составе насосных групп), аналог насосов серии Alpha;
o Дымоудаление принудительное, дымоход коаксиальный, 60/100, вывод через стену;
o Распределительный коллектор - настенный - модуль Meibes Combimix, с группой загрузки бойлера;
o Автоматика котельной – встроена в котел.
Автоматизация котельной, отопления и теплого пола (вариант «Комфортный»).
o Автоматическое регулирование отопления по наружной температуре (погодное регулирование);
o Автоматическое поддержание заданной температуры в контурах отопления, теплого пола и горячего водоснабжения.
Отопление дома из газобетонных блоков (проект отопления).
o Выполнен теплотехнический расчет отопления дома из газобетонных блоков, с учетом теплопотерь через ограждающие конструкции при наружной температуре -28°С для Московской области (по СП 131.13330.2012), теплоотдачи отопительных приборов, теплого пола, полотенцесушителей (в санузлах) и оборудования в котельной, расчетный расход тепла на отопление дома составил 13,22 кВт, удельные теплопотери 76 Вт/м.кв.;
o Подобраны приборы для отопления дома: секционные биметаллические радиаторы Rifar Base Ventil в вентильном исполнении и трубчатый радиатор КЗТО «Гармония 1»;
o Схема радиаторного отопления дома двухтрубная, коллекторно-лучевая, с принудительной циркуляцией теплоносителя и температурным графиком 80/60°С;
o Трубы отопления из металлопластика Valtec;
o Коллекторы отопления – Valtec, на 5 и 8 отводов, размещены на каждом этаже;
o Шкафы коллекторные Valtec, встраиваемый и пристраиваемый;
o Теплоизоляция трубопроводов отопления Энергофлекс, толщиной 9мм;
o Теплоноситель в системе радиаторного отопления и теплых полов – подготовленная вода.
Водяной теплый пол дома (проект теплого пола).
o Водяной теплый пол в доме предусмотрен в санузле 2 этажа на площади 5 м.кв., 1 петля;
o Предусмотрен отдельный контур для теплоснабжения водяного теплого пола;
o Основание теплого пола – маты из ламинированного пенополистирола Elsen ElM01.50;
o Регулирование температуры теплого пола общее, автоматикой котельной.
Водоснабжение дома 173 м.кв. (проект водопровода).
o Схема внутреннего водопровода дома – коллекторная, с рециркуляцией горячей воды через полотенцесушители;
o Коллекторы водопровода – сборные, Valtec VTc.560, с запорными вентилями;
o Выполнен расчет 20-ти точек водопровода и полотенцесушителей;
o Трубы системы водоснабжения – из металлопластика Valtec;
o Теплоизоляция трубопроводов водопровода Энергофлекс, толщиной 9мм.
Заказать в нашей компании проект отопления со скидкой.



















