Выполненные проекты
Отопление дома 171 м.кв. в Орловской области, проект
Объект: частный дом из пенобетонных блоков площадью 171 м.кв., расположенный в п. Белоберезовский Орловской области
Цена проекта отопления и водоснабжения: 16 653 руб.
Проект котельной отопления и теплого пола выполнен: 20.01.2019
Состав проекта котельной отопления и водоснабжения дома в Орловской области:
1. Пояснительная записка проекта, общие данные по системам отопления и теплого пола дома 171 м.кв. в Орловской области.
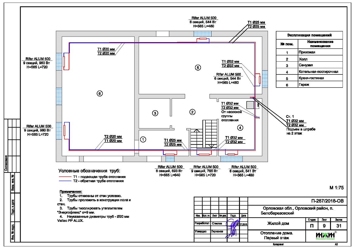
2. Тепломеханическая схема котельной с размещением оборудования в помещении 1-го этажа дома в Орловской области.
3. Комплект поэтажных чертежей радиаторного отопления дома 171 м.кв.
4. Комплект чертежей водяного теплого пола на 2 этаже частного дома из пенобетонных блоков.
5. Типовые схемы системы отопления и теплого пола.
6. Теплотехнический расчет отопления дома из пенобетонных блоков.
7. Спецификация материалов и оборудования по котельной, отоплению, теплому полу водоснабжению дома в Орловской области.
Объем проекта отопления и теплого пола: 31 лист.
Описание проекта отопления, котельной и водоснабжения частного дома 171 м.кв. в Орловской области
Котельная частного дома в п. Белоберезовский (проект котельной бесплатно).
o Размещена в помещении котельной 1-го этажа дома 171 м.кв.;
o Котел напольный газовый Лемакс Лидер-25 мощностью 25 кВт;
o Контуры теплоснабжения котельной – радиаторное отопление дома и водяной теплый пол;
o Расширительный бак отопления Flamco, объемом 18 литров;
o Циркуляционные насосы отопления и теплого пола Grundfos, использованы энергоэффективные насосы UPM3 Hybrid (в составе насосных групп), аналог насосов серии Alpha;
o Дымоудаление естественное, выполнено на объекте;
o Распределительный коллектор - настенный - модуль Meibes Combimix;
o Автоматика котельной – встроена в котел.
Автоматизация котельной, отопления и теплого пола (вариант «Базовый») - автоматика встроена в котел и насосную группу теплого пола.
Отопление дома из пенобетонных блоков (проект отопления дома в Орловской области).
o Выполнен теплотехнический расчет отопления дома из пенобетонных блоков, с учетом теплопотерь через ограждающие конструкции при наружной температуре -26°С для Орловской области (по СП 131.13330.2012), теплоотдачи отопительных приборов и теплого пола, расчетный расход тепла на отопление дома составил 14,77 кВт, удельные теплопотери 84 Вт/м.кв.;
o Подобраны приборы для отопления дома: секционные алюминиевые радиаторы Rifar ALUM с боковым подключением;
o Схема радиаторного отопления дома двухтрубная, с принудительной циркуляцией теплоносителя и температурным графиком 80/60°С;
o Трубы отопления из полипропилена Valtec;
o Теплоизоляция трубопроводов отопления Энергофлекс, толщиной 9мм;
o Теплоноситель в системе радиаторного отопления и теплых полов – подготовленная вода.
Водяной теплый пол дома (проект теплого пола дома в Орловской области).
o Водяной теплый пол в доме предусмотрен на первом этаже и в санузле 2 этажа на площади 114 м.кв., 11 петель, коллектор теплого пола Valtec;
o Предусмотрен отдельный контур котельной для теплоснабжения водяного теплого пола;
o Основание теплого пола – маты из ламинированного пенополистирола Elsen ElM01.50, а также теплораспределительные пластины Valtec для укладки "сухим" способом на 2-м этаже;
o Регулирование температуры теплого пола общее, регулятором насосной группы котельной.



















