Выполненные проекты
Проект электрики дома 160 м.кв. в КП "Калина Красная"
Объект: дом из газобетонных блоков площадью 160 м.кв. в КП "Калина Красная" Щелковского района Московской области
Цена (стоимость) проекта электрики: 13 690 руб. со скидкой 10%.
Проект электрики выполнен: 23.04.2019
Состав проекта электрики дома в КП "Калина Красная":
1. Пояснительная записка. Общие данные по электроснабжению и освещению дома.
2. Однолинейные схемы вводного распределительного устройства и распределительного щита.
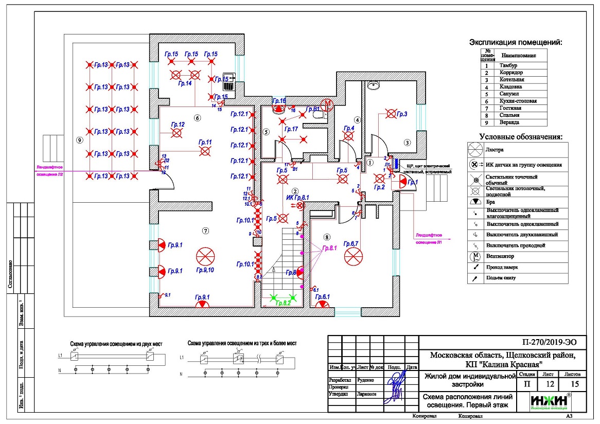
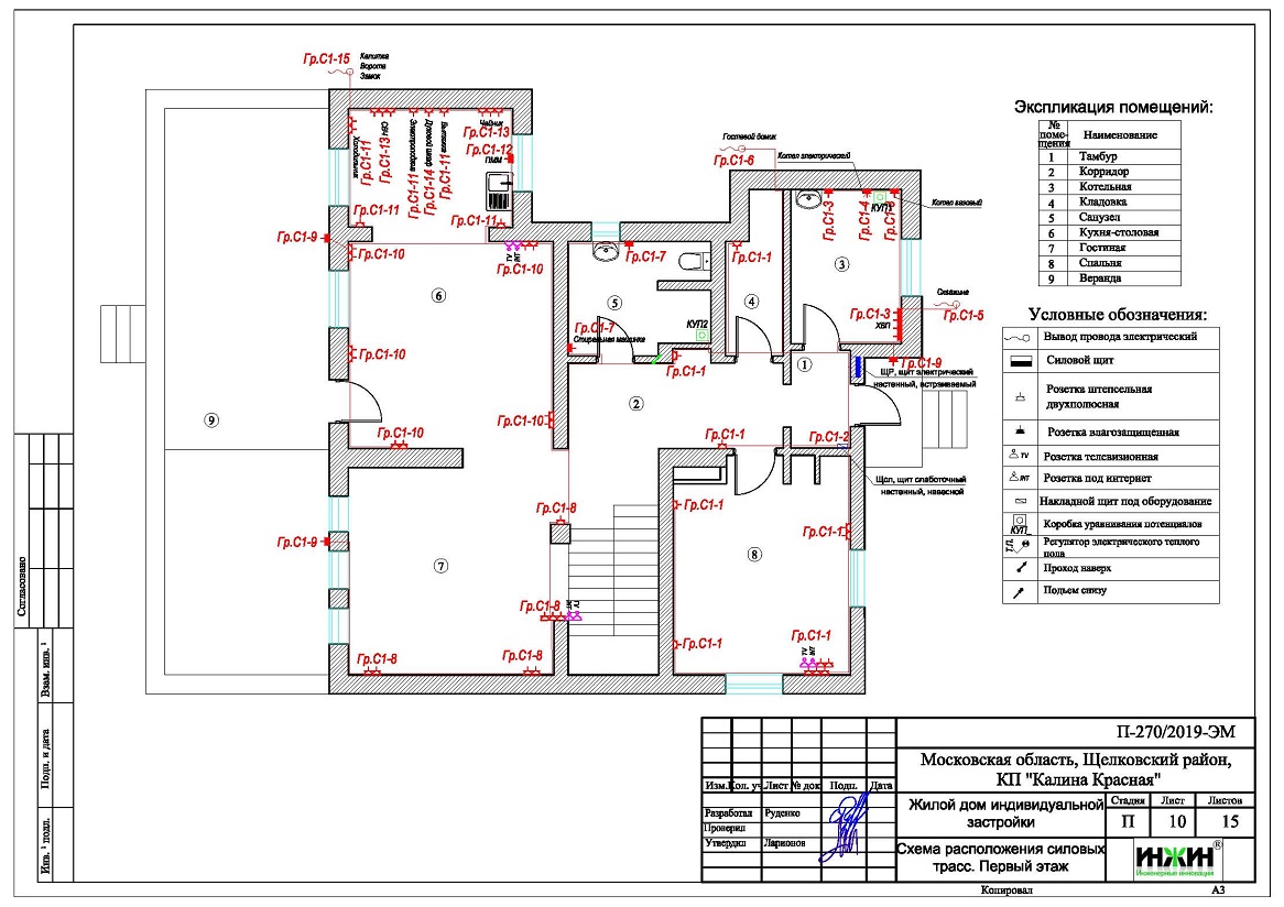
3. Чертежи электропроводки 1 и 2 этажей дома в КП "Калина Красная".
4. Чертежи групповых осветительных сетей дома в КП "Калина Красная".
5. Спецификация материалов и оборудования по электрике и электропроводке дома в КП "Калина Красная".
Объем проекта электрики дома 160 м.кв.: 15 листов.
Описание проекта электрики частного дома площадью 160 м.кв.
Расчетные показатели по электроснабжению и освещению частного дома в КП "Калина Красная".
o Расчетная электрическая мощность дома составила 15,88 кВт, с учетом коэффициента спроса 0,65, принятого согласно СП 256.1325800.2016;
o При расчете учтено силовое оборудование: газовый котел, электрический котел, насосы котельной, скважинный насос, духовой шкаф.
Распределительные электрические щиты дома в КП "Калина Красная".
o Проектом предусмотрен один распределительный щит, размещенный в кладовой 1-го этажа;
o Автоматические выключатели, дифференциальные автоматы, рубильники и УЗО в щитах – ABB, в количестве 27 шт. размещены во встроенном корпусе ABB на 60 модулей.
Силовая кабельная сеть (электропроводка) дома в КП "Калина Красная".
o Электропроводка дома предусмотрена с использованием кабелей ВВГ нг -LS с медными жилами в ПВХ-оболочке (не поддерживает горение);
o Общая протяженность линий электроснабжения и освещения – 890 метров;
o Электропроводка предусмотрена скрытым способом, в защитной гофрированной ПВХ-трубе (усиленной конструкции);
o Запроектировано 140 точек подключения розеток и выключателей освещения в доме;
o Для системы телевидения предусмотрены кабельные трассы с использованием кабеля Cavel SAT 703, в количестве 100 метров
o Для компьютерной сети предусмотрен кабель NEXANS UTP 4х24AWG - 100 метров;.



















