Выполненные проекты
Проект электрики дома в пос. Летний Отдых
Объект: дом из керамических блоков площадью 201 м.кв. в пос. Летний Отдых Одинцовского района Московской области
Цена (стоимость) проекта электрики: 17 185 руб. со скидкой 10%.
Проект электрики выполнен: 05.06.2019
Состав проекта электрики дома в пос. Летний Отдых:
1. Пояснительная записка. Общие данные по электроснабжению и освещению дома в пос. Летний Отдых.
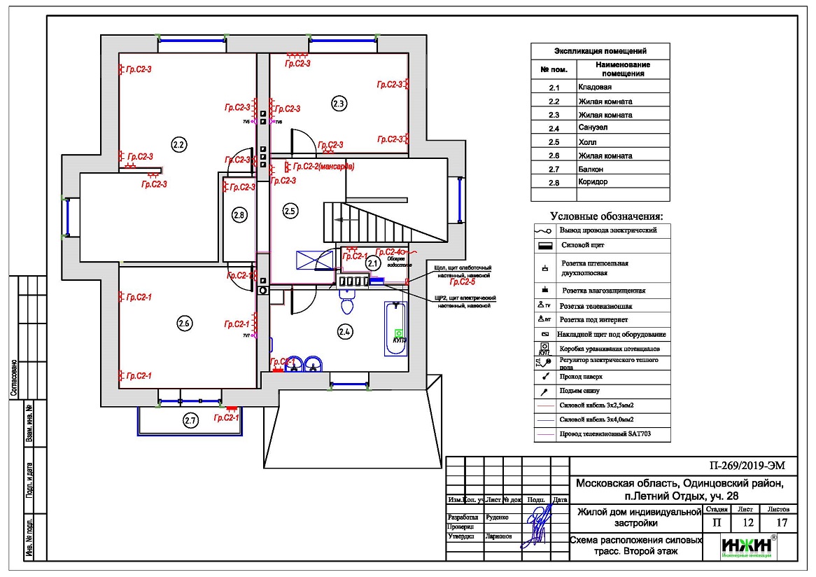
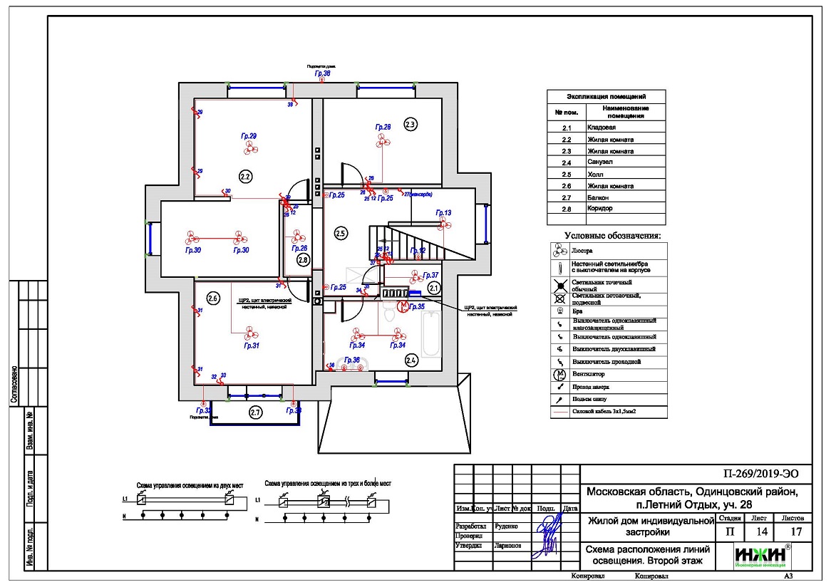
2. Однолинейные схемы вводного распределительного устройства и электрических распределительных щитов дома 201 м.кв..
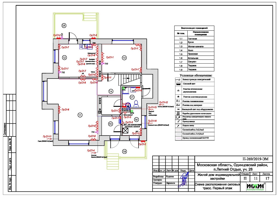
3. Чертежи электропроводки 1 и 2 этажей дома в пос. Летний Отдых.
4. Чертежи групповых осветительных сетей дома в пос. Летний Отдых.
5. Спецификация материалов и оборудования по электрике и электропроводке дома в пос. Летний Отдых.
Объем проекта электрики дома 201 м.кв.: 17 листов.
Описание проекта электрики частного дома площадью 201 м.кв.
Расчетные показатели по электроснабжению и освещению частного дома в пос. Летний Отдых.
o Расчетная электрическая мощность дома составила 13,89 кВт, с учетом коэффициента спроса 0,65, принятого согласно СП 256.1325800.2016;
o При расчете учтено силовое оборудование: газовый котел, кондиционер, духовой шкаф.
Распределительные электрические щиты дома в пос. Летний Отдых.
o Проектом предусмотрено два распределительных щита, размещенных на каждом этаже доме;
o Автоматические выключатели, дифференциальные автоматы, рубильники и УЗО в щитах – ABB, в количестве 30 шт. размещены в электрических распределительных щитах.
Силовая кабельная сеть (электропроводка) дома в пос. Летний Отдых.
o Электропроводка дома предусмотрена с использованием кабелей ВВГ нг -LS с медными жилами в ПВХ-оболочке (не поддерживает горение);
o Общая протяженность линий электроснабжения и освещения – 930 метров;
o Электропроводка предусмотрена скрытым способом, в защитной гофрированной ПВХ-трубе (усиленной конструкции);
o Запроектировано 155 точек подключения розеток и выключателей освещения в доме.
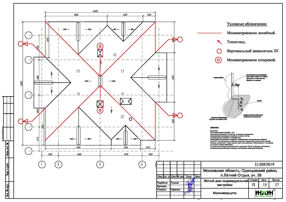
Предусмотрен контур повторного заземления и система молниезащиты.
Заказать проект электрики дома.
Для этого дома площадью 201 м.кв. выполнен проект отопления, водоснабжения и канализации.



















