Выполненные проекты
Проект отопления дома площадью 201 м.кв.
Объект: двухэтажный частный дом из керамических блоков Porotherm, площадью 201 м.кв., расположенный в пос. Летний Отдых Одинцовского района Московской области
Вариант отопления: «Комфортный»
Цена проекта отопления, канализации и водоснабжения: 28 989 руб. со скидкой 10%, проект котельной - бесплатно.
Проект котельной, отопления, водоснабжения и канализации выполнен: 04.06.2019
Состав проекта котельной, отопления, канализации и водоснабжения дома в пос. Летний Отдых:
1. Пояснительная записка проекта, общие данные по системам отопления, канализации и водоснабжения дома 201 м.кв. в Московской области.
2. Тепломеханическая схема котельной с размещением оборудования в помещении 1-го этажа дома из керамических блоков.
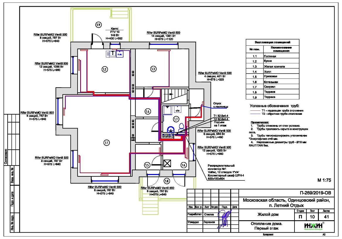
3. Комплект поэтажных чертежей радиаторного отопления дома в пос. Летний Отдых.
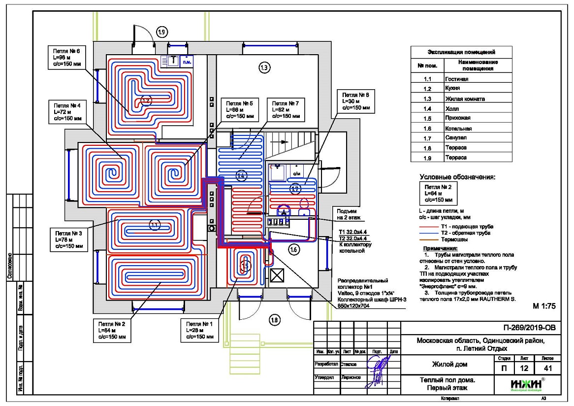
4. Комплект чертежей теплого пола на площади 67 м.кв.
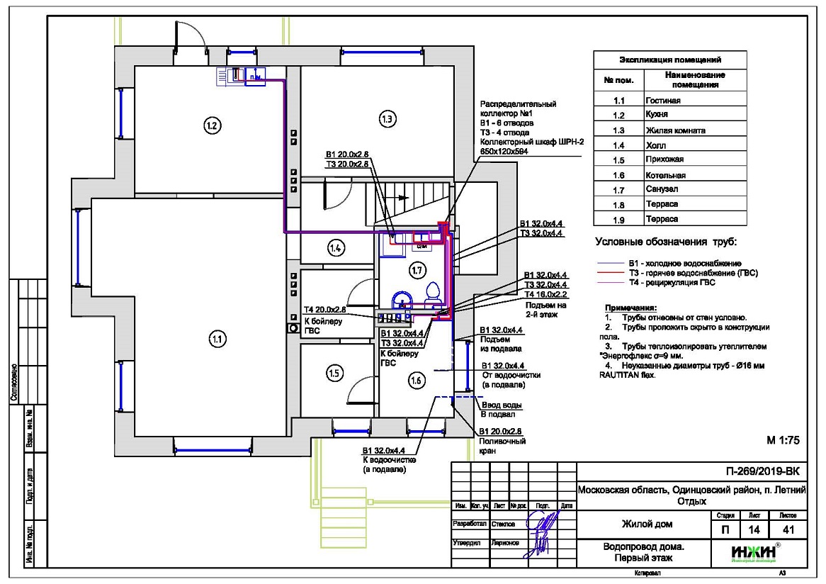
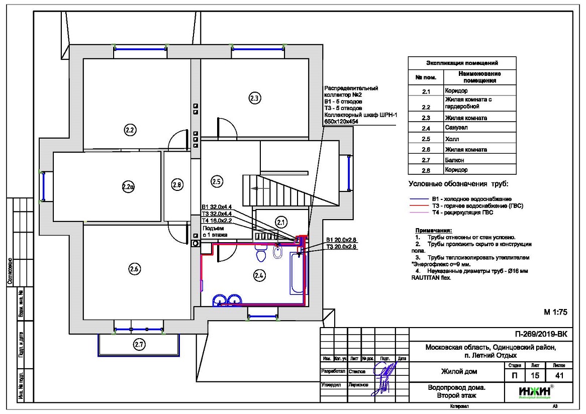
5. Комплект чертежей водоснабжения и канализации частного дома из керамических блоков.
6. Типовые схемы системы отопления канализации и водоснабжения дома 201 м.кв.
7. Теплотехнический расчет отопления дома из керамических блоков.
8. Спецификация материалов и оборудования по котельной, отоплению, канализации и водоснабжению дома в пос. Летний Отдых.
Объем проекта отопления, канализации и водоснабжения кирпичного дома: 41 лист.
Описание проекта отопления, котельной, канализации и водоснабжения частного дома 201 м.кв. в пос. Летний Отдых.
Котельная частного дома в пос. Летний Отдых(проект котельной бесплатно).
o Размещена в помещении 1-го этажа дома 201 м.кв.;
o Теплогенератор - настенный газовый котел Vaillant, мощностью 36 кВт;
o Контуры теплоснабжения котельной – радиаторное отопление дома, теплый пол и горячее водоснабжение, для которого предусмотрен накопительный бойлер Vaillant, объемом 200 литров;
o Расширительные баки отопления и бойлера Flamco, объемом 18 и 25 литров;
o Циркуляционные насосы отопления и бойлера Grundfos, использованы энергоэффективные насосы UPM3 Hybrid (в составе модуля Kombimix), аналог насосов серии Alpha;
o Дымоудаление принудительное, дымоход коаксиальный, комплект Vaillant для прохода через стену, диаметр 60/100 мм;
o Распределительный коллектор - настенный компактный модуль Meibes Kombimix;
o Автоматика котельной – встроена в котел, с дополнительным GSM-термостатом ZONT H-1V.
Автоматизация котельной, отопления и теплого пола (вариант «Комфортный»).
o Автоматическое регулирование отопления по наружной температуре (погодное регулирование, встроено в котел);
o Дистанционный контроль работы газового котла отопления при помощи GSM-модуля и мобильного приложения ZONT.
Отопление дома в пос. Летний Отдых (проект отопления дома).
o Выполнен теплотехнический расчет отопления дома из керамических блоков (утеплитель стен и пола - плиты из пенополистирола 140мм, кровли - минеральная вата 200мм) с учетом теплопотерь через ограждающие конструкции при наружной температуре -28°С для Московской области (по СП 131.13330.2012), а также теплоотдачи помещений с теплым полом, расчетный расход тепла на отопление дома составил 15,68 кВт, удельные теплопотери 87,3 Вт/м.кв.;
o Подобраны приборы для отопления дома: биметаллические секционные радиаторы Rifar SUPREMO Ventil с нижним подключением;
o Схема радиаторного отопления дома двухтрубная, коллекторно-лучевая, с принудительной циркуляцией теплоносителя и температурным графиком 80/60°С;
o Трубы отопления из сшитого полиэтилена Rehau;
o Теплоизоляция трубопроводов отопления Энергофлекс, толщиной 9мм;
o Теплоноситель в системе радиаторного отопления дома – подготовленная вода, предусмотрены средства защиты от образования накипи.
Водяной теплый пол дома в пос. Летний Отдых (проект теплого пола).
o Водяной теплый пол в доме предусмотрен на площади 67 м.кв., коллектор теплого пола Valtec на 9 петель;
o Предусмотрен отдельный контур котельной для теплоснабжения водяного теплого пола дома;
o Трубопроводы теплого пола – сшитый полиэтилен Rehau;
o Регулирование температуры теплого пола - общее, контуром котельной.
Внутренний водопровод дома в пос. Летний Отдых (проект водоснабжения).
o Схема внутреннего водоснабжения дома – коллекторно-лучевая с рециркуляцией горячей воды через водяные полотенцесушители, выполнен расчет 22-х точек водоснабжения и полотенцесушителей;
o Трубопроводы системы водоснабжения – из сшитого полиэтилена Rehau;
o Теплоизоляция трубопроводов Энергофлекс Супер, толщиной 9мм;
o Для летнего водопровода предусмотрен наружный кран Meibes SEPP-Eis с защитой от замерзания.
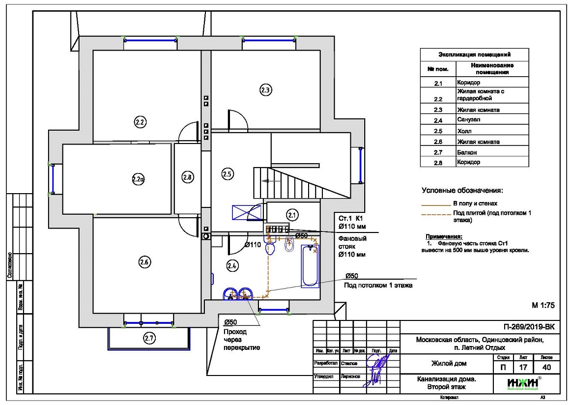
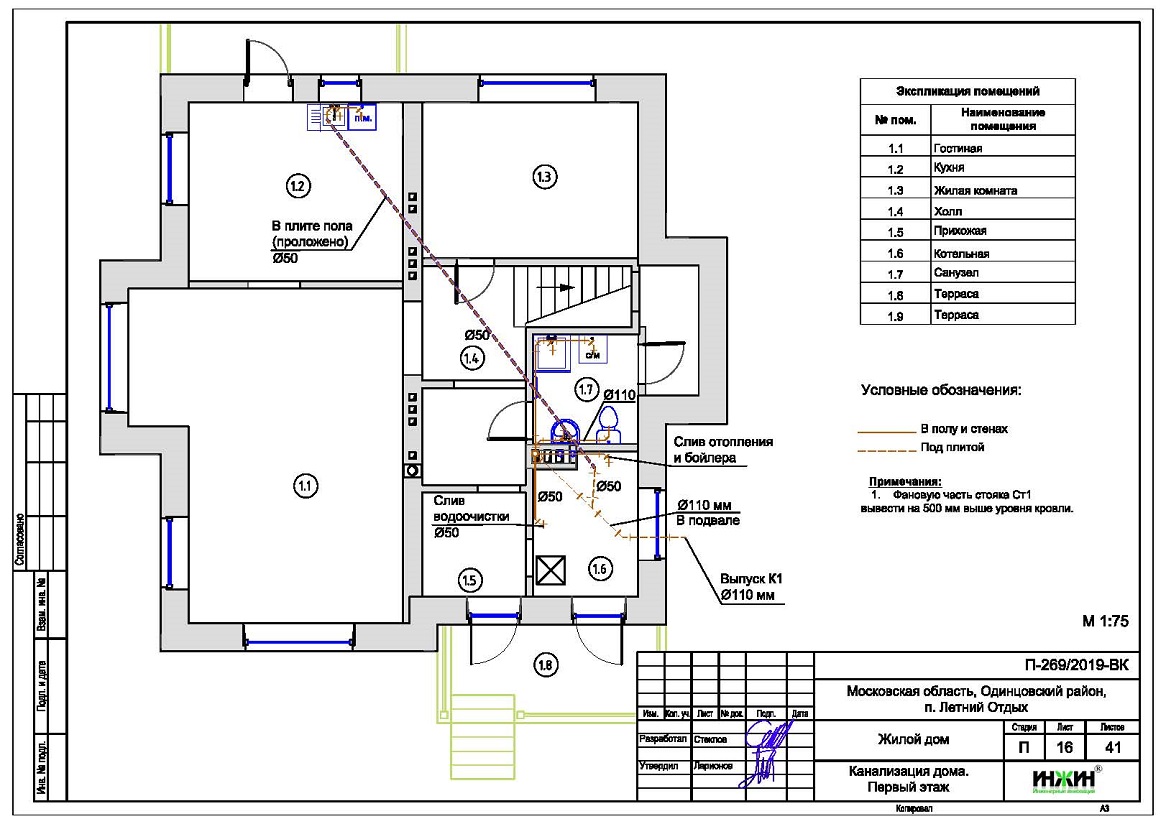
Внутренняя канализация (проект канализации) дома в пос. Летний Отдых.
o Безнапорная, отвод стоков от санитарно-технических приборов предусмотрен в септик;
o Произведен расчет 13-ти точек бытовой канализации;
o Канализационные трубы Синикон, раструбные, из полипропилена.
Заказать в нашей компании проект отопления, водоснабжения и канализации загородного дома в Московской области со скидкой.
Для этого дома площадью 201 м.кв. выполнен проект электрики.






















