Выполненные проекты
Проект электрики дома в пос. Кстинино
Объект: загородный дом площадью 161 м.кв. в в НП Кстинино Пушкинского района Московской области.
Цена (стоимость) проекта электрики (электропроводки): 13 765 руб. со скидкой 10%, проект слаботочных кабельных линий - бесплатно.
Проект электрики выполнен: 05.08.2019
Состав проекта электрики дома в НП Кстинино:
1. Пояснительная записка. Общие данные по электроснабжению и освещению дома в НП Кстинино.
2. Однолинейные схемы вводного распределительного устройства и электрических распределительных щитов дома 161 м.кв.
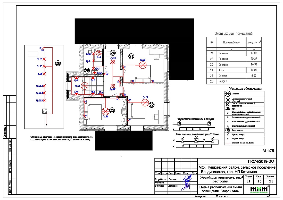
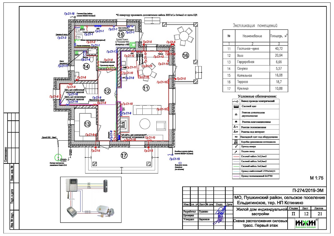
3. Чертежи электропроводки 1 и 2 этажей дома в НП Кстинино.
4. Чертежи групповых осветительных сетей дома в НП Кстинино.
5. Спецификация материалов и оборудования по электрике и электропроводке дома в НП Кстинино.
Объем проекта электрики дома 161 м.кв.: 21 лист.
Описание проекта электрики частного дома площадью 161 м.кв.
Расчетные показатели по электроснабжению и освещению частного дома в НП Кстинино.
o Расчетная электрическая мощность дома составила 13,86 кВт, с учетом коэффициента спроса 0,65, принятого согласно СП 256.1325800.2016;
o При расчете учтено силовое оборудование: газовый котел, электрический котел, скважинный насос, духовой шкаф.
Распределительный электрический щит дома площадью 161 м.кв.
o Проектом предусмотрен один распределительный электрический щит, расположенный на первом этаже доме;
o Автоматические выключатели, дифференциальные автоматы, рубильники и УЗО в щитах – ABB, в количестве 33 шт. размещены в электрическом распределительном щите.
Силовая кабельная сеть (электропроводка) дома в НП Кстинино.
o Электропроводка дома предусмотрена с использованием кабелей ВВГ нг -LS с медными жилами в ПВХ-оболочке (не поддерживает горение);
o Общая протяженность линий электроснабжения и освещения – 1 305 метров;
o Электропроводка предусмотрена скрытым способом, в защитной гофрированной ПВХ-трубе (усиленной конструкции) и металлорукаве в виниловой оболочке (в стропильной системе кровли);
o Запроектировано 140 точек подключения розеток и выключателей освещения в доме из газобетонных блоков.
Предусмотрен контур повторного заземления.




















