Выполненные проекты
Отопление загородного дома 161 м.кв., проект
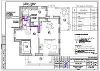
Объект: двухэтажный загородный дом из газобетонных блоков Aerostone, площадью 161 м.кв., расположенный в НП Кстинино Пушкинского района Московской области
Вариант отопления: «Комфортный»
Цена проекта отопления, канализации и водоснабжения: 27 027 руб. со скидкой 10%, проект котельной - бесплатно.
Проект котельной, отопления, водоснабжения и канализации выполнен: 07.08.2019
Состав проекта котельной, отопления, канализации и водоснабжения дома в НП Кстинино:
1. Пояснительная записка проекта, общие данные по системам отопления, канализации и водоснабжения дома 161 м.кв. в Московской области.
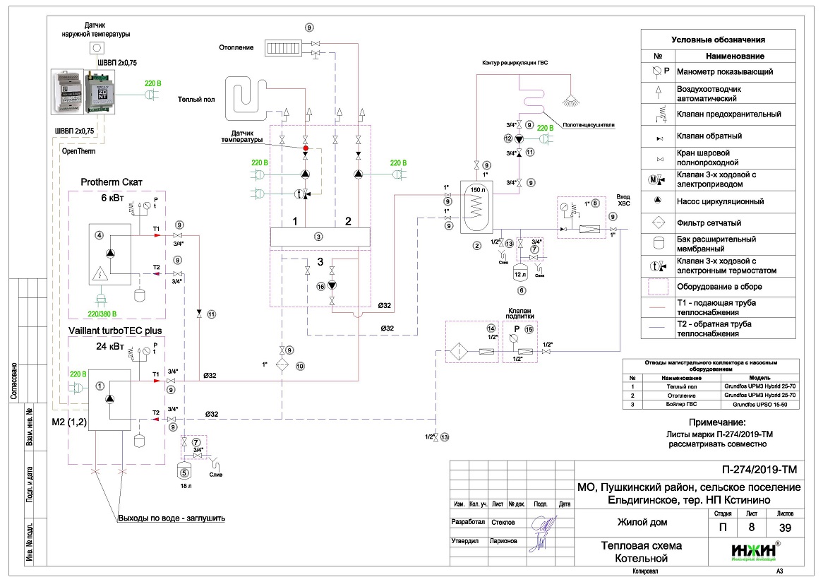
2. Тепломеханическая схема котельной с размещением оборудования в помещении 1-го этажа дома из газобетонных блоков.
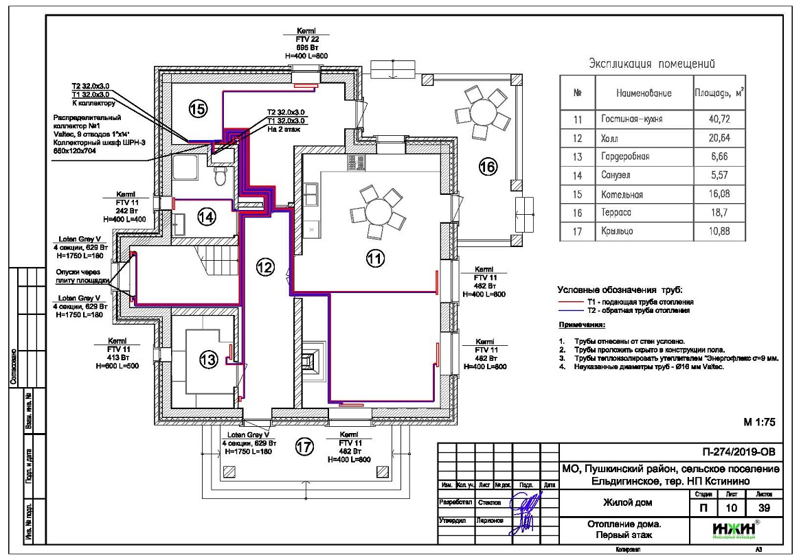
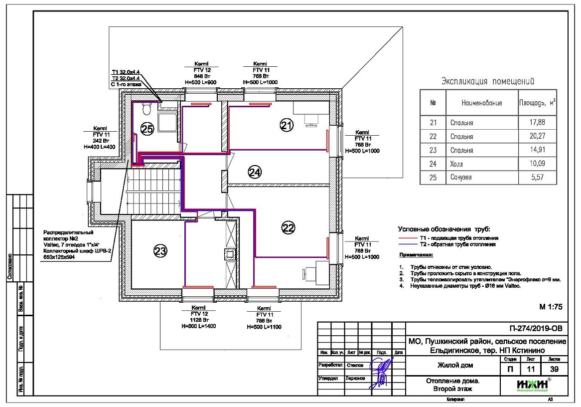
3. Комплект поэтажных чертежей радиаторного отопления дома в НП Кстинино.
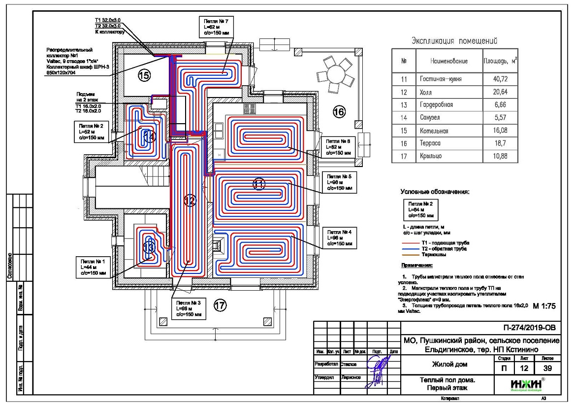
4. Комплект чертежей теплого пола на площади 86 м.кв.
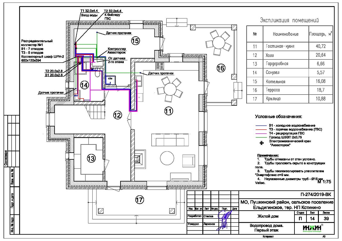
5. Комплект чертежей водоснабжения и канализации частного дома из газобетонных блоков.
6. Типовые схемы системы отопления канализации и водоснабжения дома 161 м.кв.
7. Теплотехнический расчет отопления дома из газобетонных блоков.
8. Спецификация материалов и оборудования по котельной, отоплению, канализации и водоснабжению дома в НП Кстинино.
Объем проекта отопления, канализации и водоснабжения дома: 39 листов.
Описание проекта отопления, котельной, канализации и водоснабжения частного дома 161 м.кв. в НП Кстинино.
Котельная частного дома в НП Кстинино(проект котельной бесплатно).
o Размещена в помещении 1-го этажа дома 161 м.кв.;
o Теплогенераторы - основной, настенный газовый котел Vaillant, мощностью 28 кВт, резервный- электрический котел Protherm Скат, мощностью 14 кВт;
o Контуры теплоснабжения котельной – радиаторное отопление дома, теплый пол и горячее водоснабжение, для которого предусмотрен накопительный бойлер Baxi, объемом 160 литров (подключение к основному котлу);
o Расширительные баки отопления и бойлера Flamco, объемом 18 и 12 литров;
o Циркуляционные насосы отопления и бойлера Grundfos, использованы энергоэффективные насосы UPM3 Hybrid (в составе модуля Kombimix), аналог насосов серии Alpha;
o Дымоудаление принудительное, дымоход коаксиальный, комплект Vaillant для прохода через стену, диаметр 60/100 мм;
o Распределительный коллектор - настенный компактный модуль Meibes Kombimix;
o Автоматика котельной – встроена в котел, с дополнительным GSM-термостатом ZONT H-1V eBus.
Автоматизация котельной, отопления и теплого пола (вариант «Комфортный»).
o Автоматическое регулирование отопления по наружной температуре (погодное регулирование, встроено в котел);
o Дистанционный контроль работы газового котла отопления при помощи GSM-модуля и мобильного приложения ZONT.
Отопление дома в НП Кстинино (проект отопления дома).
o Выполнен теплотехнический расчет отопления дома из газобетонных блоков Aerostone (утеплитель стен и кровли - минеральная вата Rockwool, 100 и 200мм соответственно) с учетом теплопотерь через ограждающие конструкции при наружной температуре -28°С для Московской области (по СП 131.13330.2012), а также теплоотдачи помещений с теплым полом, расчетный расход тепла на отопление дома составил 11,33 кВт, удельные теплопотери 71,5 Вт/м.кв.;
o Подобраны приборы для отопления дома: стальные панельные радиаторы KERMI с нижним подключением;
o Схема радиаторного отопления дома двухтрубная, коллекторно-лучевая, с принудительной циркуляцией теплоносителя и температурным графиком 80/60°С;
o Трубы отопления из сшитого полиэтилена Rehau;
o Теплоизоляция трубопроводов отопления Энергофлекс, толщиной 9мм;
o Теплоноситель в системе радиаторного отопления дома – подготовленная вода, предусмотрены средства защиты от образования накипи.
Водяной теплый пол дома в НП Кстинино (проект теплого пола).
o Водяной теплый пол в доме предусмотрен на площади 86 м.кв., коллектор теплого пола Valtec на 8 петель;
o Предусмотрен отдельный контур котельной для теплоснабжения водяного теплого пола дома (насосная группа в составе модуля Kombimix);
o Трубопроводы теплого пола – сшитый полиэтилен Rehau;
o Регулирование температуры теплого пола - общее, контуром котельной.
Внутренний водопровод дома в НП Кстинино (проект водоснабжения).
o Схема внутреннего водоснабжения дома – коллекторно-лучевая с рециркуляцией горячей воды через водяные полотенцесушители, выполнен расчет 23-х точек водоснабжения и полотенцесушителей;
o Трубопроводы системы водоснабжения – из сшитого полиэтилена Rehau;
o Теплоизоляция трубопроводов Энергофлекс Супер, толщиной 9мм;
o Для летнего водопровода предусмотрен наружный кран Meibes SEPP-Eis с защитой от замерзания.
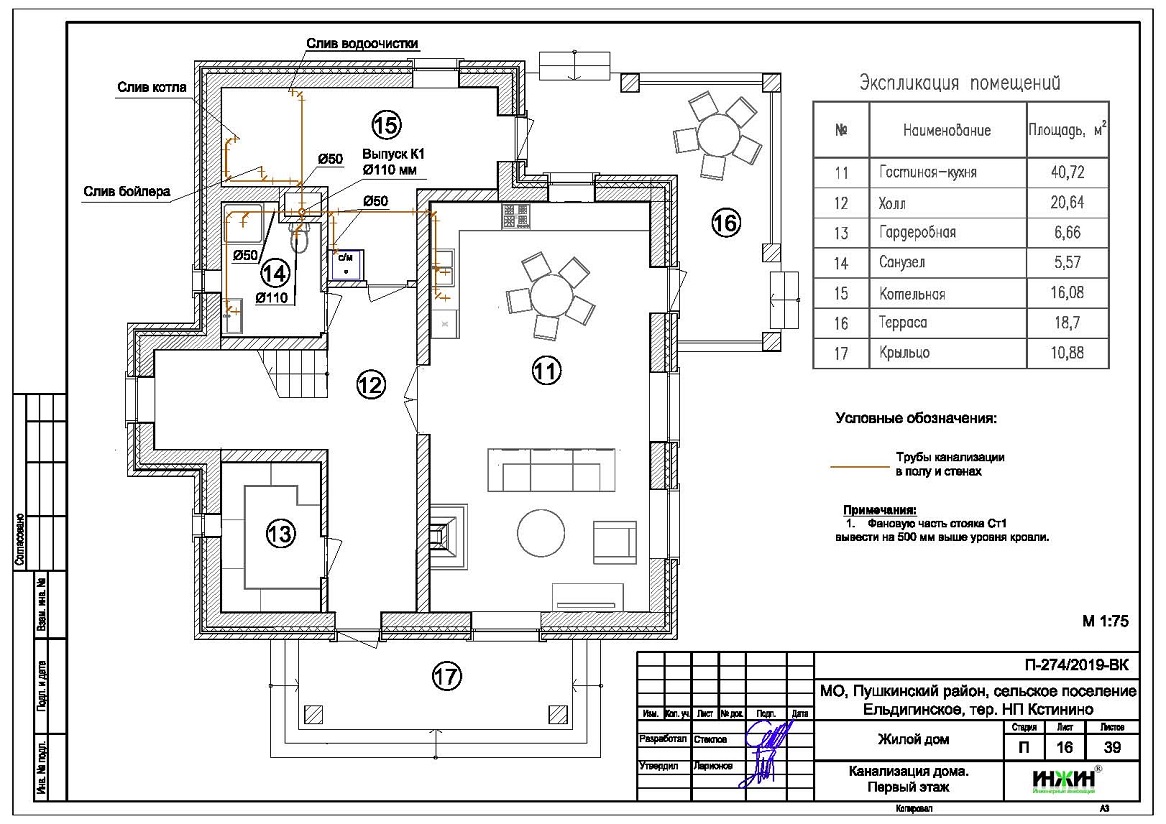
Внутренняя канализация (проект канализации) дома в НП Кстинино.
o Безнапорная, отвод стоков от санитарно-технических приборов предусмотрен в септик;
o Произведен расчет 14-ти точек бытовой канализации;
o Канализационные трубы Синикон, раструбные, из полипропилена.
Заказать в нашей компании проект отопления, водоснабжения и канализации загородного дома в Московской области со скидкой.

Для этого дома площадью 161 м.кв. выполнен проект электрики.
По этому проекту выполнен монтаж отопления, водоснабжения и канализации для дома из газобетонных блоков.






















