Выполненные проекты
Проект электрики дома площадью 196 м.кв.
Объект: двухэтажный частный дом площадью 196 м.кв. в с. Жаворонки Одинцовского района Московской области
Цена (стоимость) проекта электрики (электропроводки): 16 758 руб. со скидкой 10%, проект слаботочных кабельных линий - бесплатно.
Проект электрики выполнен: 11.09.2019
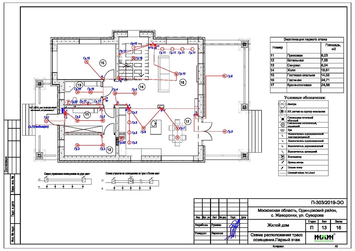
Состав проекта электрики дома в с. Жаворонки:
1. Пояснительная записка. Общие данные по электроснабжению и освещению дома в с. Жаворонки.
2. Однолинейные схемы вводного распределительного устройства и электрического распределительного щита дома 196 м.кв.
3. Чертежи электропроводки 1 и 2 этажей дома в с. Жаворонки.
4. Чертежи групповых осветительных сетей дома в с. Жаворонки.
5. Спецификация материалов и оборудования по электрике и электропроводке дома в с. Жаворонки.
Объем проекта электрики дома 196 м.кв.: 16 листов.
Описание проекта электрики частного дома площадью 196 м.кв.
Расчетные показатели по электроснабжению и освещению частного дома в с. Жаворонки.
o Расчетная электрическая мощность дома составила 15,7 кВт, с учетом коэффициента спроса 0,8, принятого согласно СП 256.1325800.2016;
o При расчете учтено силовое оборудование: газовый котел, центральный увлажнитель, привод ворот, скважинный насос, электрический теплый пол.
Распределительные электрические щиты дома площадью 196 м.кв.
o Проектом предусмотрено два распределительных электрических щита, по одному на каждый этаж дома;
o Автоматические выключатели, дифференциальные автоматы, рубильники и УЗО в щитах – ABB, в количестве 28 шт. размещены в навесных корпусах.
Силовая кабельная сеть (электропроводка) дома в с. Жаворонки.
o Электропроводка дома предусмотрена с использованием кабелей ВВГ нг -LS с медными жилами в ПВХ-оболочке (не поддерживает горение);
o Общая протяженность линий электроснабжения и освещения – 1235 метров;
o Электропроводка предусмотрена скрытым способом, в защитной гофрированной ПВХ-трубе (усиленной конструкции) и металлорукаве в виниловой оболочке (в стропильной системе кровли);
o Запроектировано 116 точек подключения розеток и выключателей освещения в газосиликатном доме;
o Предусмотрены слаботочные линии локальной вычислительной сети и телевидения, общая протяженность - 390 метров..
Предусмотрен контур повторного заземления.




















