Выполненные проекты
Проект отопления дома 600 м.кв. в Баку
Объект: трехэтажный частный дом из известнякового камня, площадью 600 м.кв., расположенный в г.Баку, республика Азербайджан
Вариант отопления: «Комфортный»
Цена проекта отопления, канализации и водоснабжения: 95 400 руб. со скидкой 10%, проект котельной - бесплатно (дистанционное проектирование).
Проект котельной, отопления, водоснабжения и канализации дома в Баку выполнен: 09.09.2019
Состав проекта котельной, отопления, канализации и водоснабжения дома в г. Баку:
1. Пояснительная записка проекта, общие данные по системам отопления, канализации и водоснабжения дома 600 м.кв. в Азербайджане.
2. Тепломеханическая схема котельной с размещением оборудования в помещении подвального этажа дома из известнякового камня.
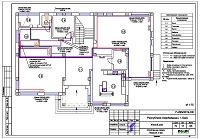
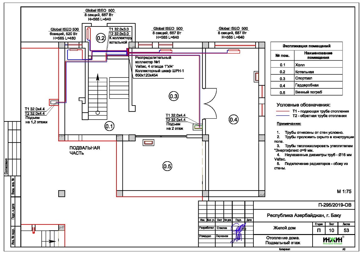
3. Комплект поэтажных чертежей радиаторного отопления дома в г. Баку.
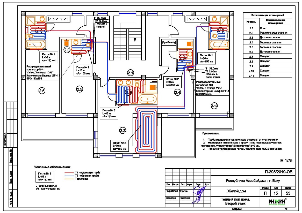
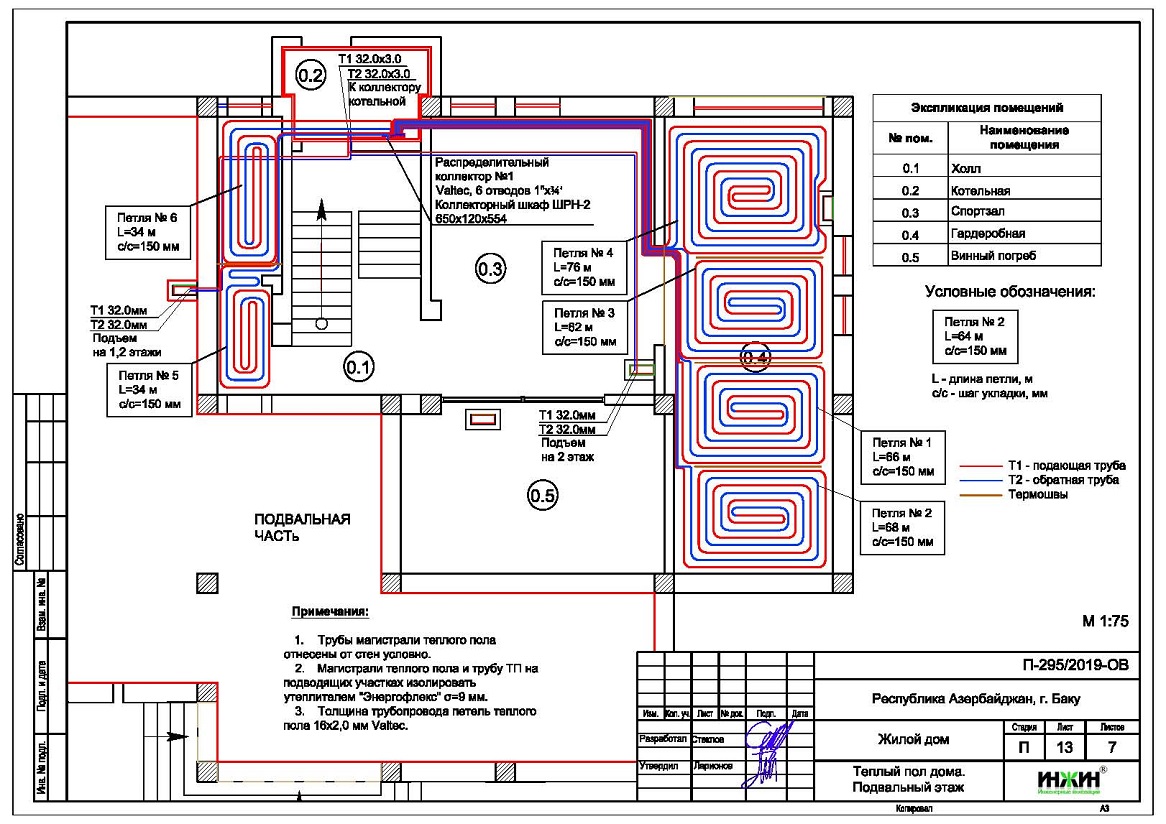
4. Комплект чертежей теплого пола на площади 200 м.кв.
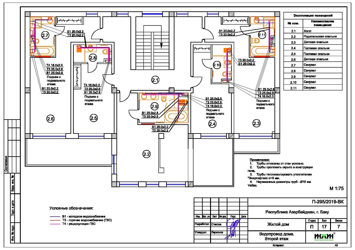
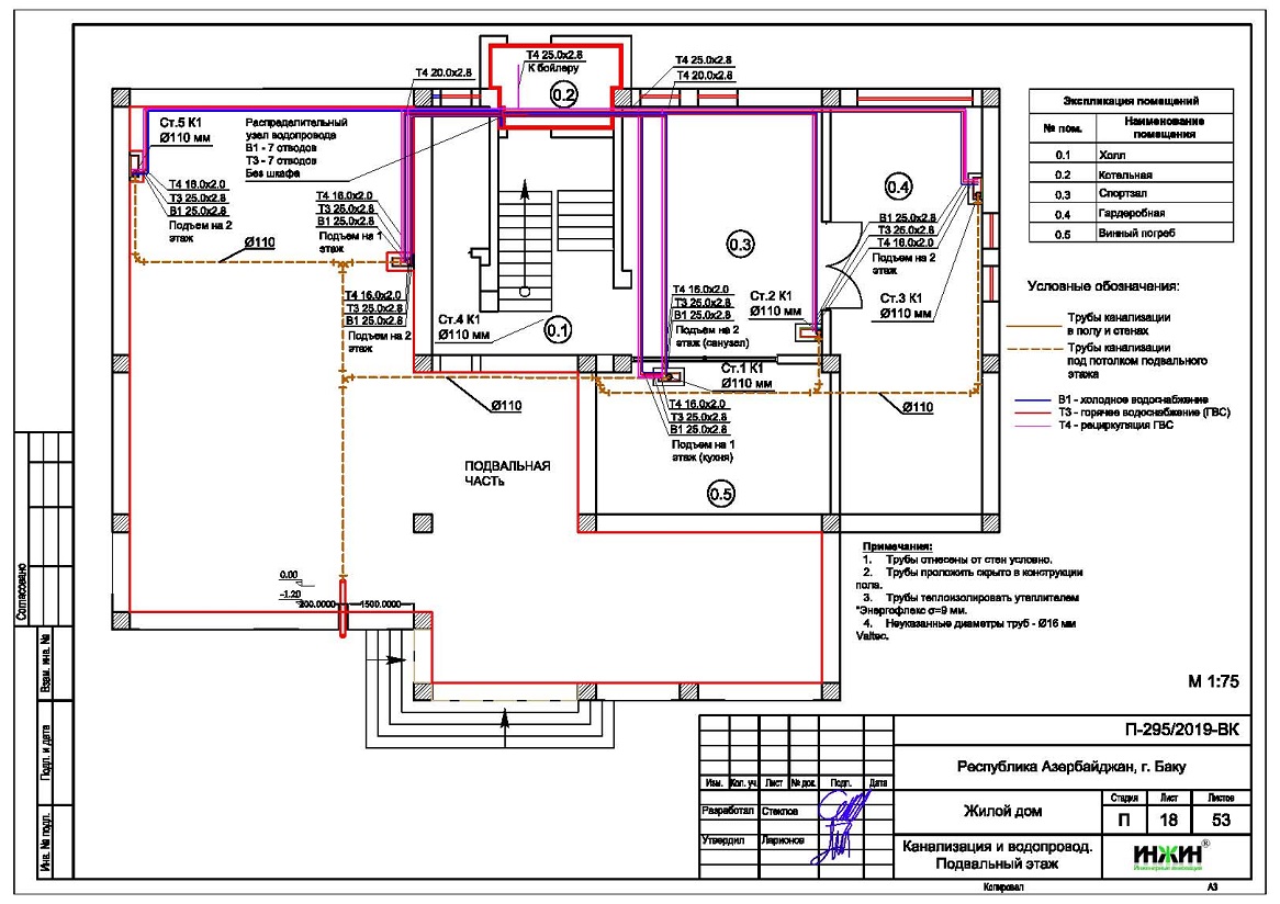
5. Комплект чертежей водоснабжения и канализации частного дома из известнякового камня.
6. Типовые схемы системы отопления канализации и водоснабжения дома 600 м.кв.
7. Теплотехнический расчет отопления дома из известнякового камня.
8. Спецификация материалов и оборудования по котельной, отоплению, канализации и водоснабжению дома в г. Баку.
Объем проекта отопления, канализации и водоснабжения дома в Баку: 53 листа.
Описание проекта отопления, котельной, канализации и водоснабжения частного дома 600 м.кв. в г. Баку.
Котельная частного дома в г. Баку(проект котельной бесплатно).
o Размещена в помещении подвального этажа дома 600 м.кв.;
o Теплогенератор - два настенных газовых котла Ariston Genus One System, мощностью 35 кВт каждый;
o Контуры теплоснабжения котельной – радиаторное отопление дома, теплый пол и горячее водоснабжение, для которого предусмотрен накопительный бойлер BAXI, объемом 300 литров;
o Расширительные баки отопления и бойлера Flamco, объемом 50 и 35 литров;
o Циркуляционные насосы отопления и бойлера Grundfos, использованы энергоэффективные насосы UPM3 Hybrid (в составе насосных групп), аналог насосов серии Alpha;
o Дымоудаление принудительное, дымоход коаксиальный, комплект Ariston для прохода через стену;
o Распределительный коллектор - настенный, с насосными группами Meibes;
o Автоматика котельной – встроена в котлы.
Автоматизация котельной, отопления и теплого пола (вариант «Комфортный»): автоматическое регулирование отопления по наружной температуре (погодное регулирование, встроено в котлы)
Отопление дома в г. Баку (проект отопления дома).
o Выполнен теплотехнический расчет отопления дома из известнякового камня (утеплитель кровли - плиты из пенопласта 30мм) с учетом теплопотерь через ограждающие конструкции при наружной температуре -4°С для города Баку (по СП 131.13330.2012), а также теплоотдачи помещений с теплым полом, расчетный расход тепла на отопление дома составил 34,62 кВт, удельные теплопотери 71,6 Вт/м.кв.;
o Подобраны приборы для отопления дома: секционные радиаторы Global OSCAR с боковым подключением, к системе отопления подключены водяные полотенцесушители;
o Схема радиаторного отопления дома двухтрубная, коллекторно-лучевая, с принудительной циркуляцией теплоносителя и температурным графиком 80/60°С;
o Трубы отопления из металлопластика Valtec;
o Теплоизоляция трубопроводов отопления Энергофлекс, толщиной 9мм;
o Теплоноситель в системе радиаторного отопления дома – подготовленная вода, предусмотрены средства защиты от образования накипи.
Водяной теплый пол дома в г. Баку (проект теплого пола).
o Водяной теплый пол в доме предусмотрен на площади 200 м.кв., коллекторы теплого пола Valtec на 3, 4 и 5 отводов, всего 20 петель;
o Предусмотрен отдельный контур котельной для теплоснабжения водяного теплого пола дома в Баку;
o Трубопроводы теплого пола – сшитый полиэтилен Valtec;
o Регулирование температуры теплого пола - общее, контуром котельной.
Внутренний водопровод дома в г. Баку (проект водоснабжения).
o Схема внутреннего водоснабжения дома – тройниковая, с поэтажным распределительным узлом в котельной, с рециркуляцией горячей воды через тройники, выполнен расчет 52-х точек водоснабжения;
o Трубопроводы системы водоснабжения – из металлопластика Valtec;
o Теплоизоляция трубопроводов Энергофлекс Супер, толщиной 9мм.
Внутренняя канализация (проект канализации) дома в г. Баку.
o Безнапорная, отвод стоков от санитарно-технических приборов предусмотрен в септик;
o Произведен расчет 29-ти точек бытовой канализации, предусмотрено 6 трапов Viega Advantix с «сухим» затвором;
o Канализационные трубы Синикон, раструбные, из полипропилена.






















