Выполненные проекты
Электрика, проект для дома площадью 390 м.кв.
Объект: двухэтажный частный дом с бассейном, общей площадью 390 м.кв. в дер. Савельево Ярославской области
Цена (стоимость) проекта электрики (электропроводки): 33 375 руб. со скидкой 10%, проект слаботочных кабельных линий - бесплатно.
Проект электрики дома в дер. Савельево Ярославской области выполнен: 05.10.2019
Состав проекта электрики дома в дер. Савельево Ярославской области:
1. Пояснительная записка. Общие данные по электроснабжению и освещению дома в дер. Савельево Ярославской области.
2. Однолинейные схемы вводного распределительного устройства и электрического распределительного щита дома 390 м.кв..
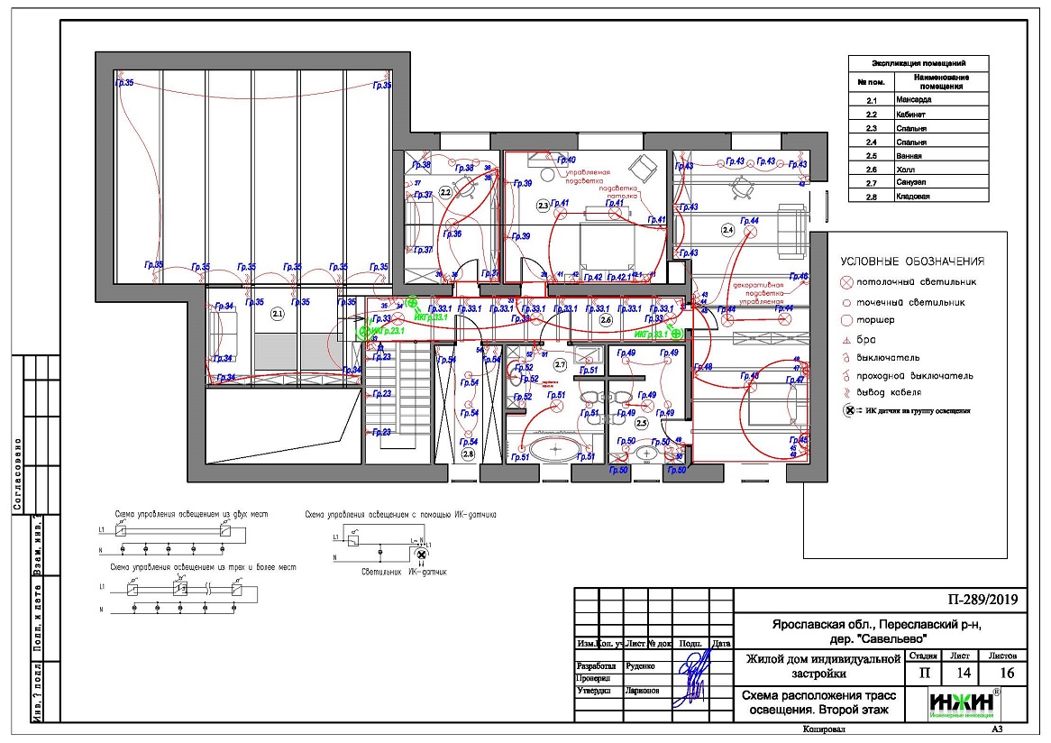
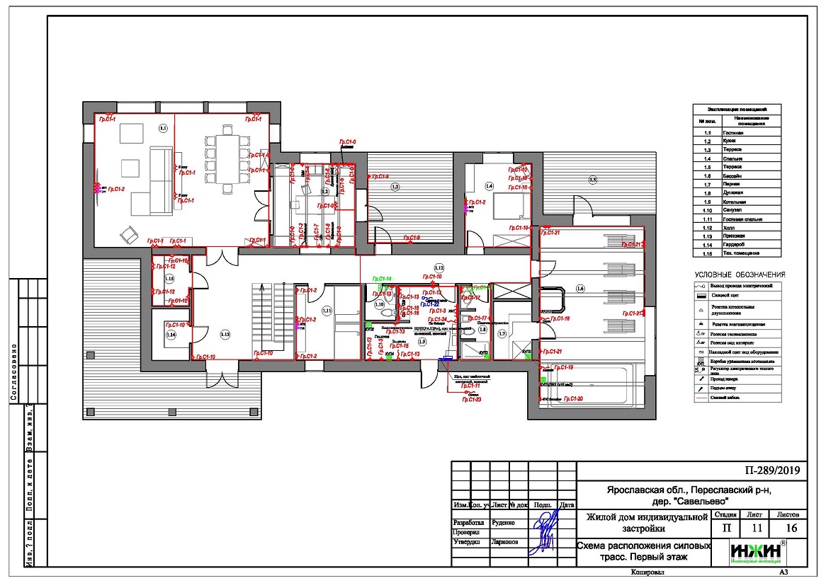
3. Чертежи электропроводки 1 и 2 этажей дома в дер. Савельево Ярославской области.
4. Чертежи групповых осветительных сетей дома в дер. Савельево Ярославской области.
5. Спецификация материалов и оборудования по электрике и электропроводке дома в дер. Савельево Ярославской области.
Объем проекта электрики дома 390 м.кв.: 16 листов.
Описание проекта электрики частного дома площадью 390 м.кв.
Расчетные показатели по электроснабжению и освещению частного дома в дер. Савельево Ярославской области.
o Расчетная электрическая мощность дома составила 48,76 кВт, с учетом коэффициента спроса 0,55, принятого согласно СП 256.1325800.2016;
o При расчете учтено силовое оборудование: газовый котел, электрический котел, сауна, привод ворот, противоток и подогрев бассейна, скважинный насос, электрические полотенцесушители.
Распределительные электрические щиты дома площадью 390 м.кв.
o Проектом предусмотрено два распределительных электрических щита, расположенных на каждом этаже дома;
o Автоматические выключатели, дифференциальные автоматы, рубильники и УЗО в щите – ABB, в количестве 55 шт. размещены в электрических распределительных щитах.
Силовая кабельная сеть (электропроводка) дома в дер. Савельево Ярославской области.
o Электропроводка дома предусмотрена с использованием кабелей ВВГ нг -LS с медными жилами в ПВХ-оболочке (не поддерживает горение);
o Общая протяженность линий электроснабжения и освещения – 2911 метров;
o Электропроводка предусмотрена скрытым способом, в защитной гофрированной ПВХ-трубе (усиленной конструкции) и металлорукаве в виниловой оболочке (в стропильной системе кровли);
o Запроектировано 223 точки подключения розеток и выключателей освещения в доме.
Предусмотрен источник резервного электропитания - трехфазный дизельный генератор FG Wilson P11-6S.
Предусмотрен контур повторного заземления.




















