Выполненные проекты
Отопление дома с баней 209 м.кв., проект
Объект: двухэтажный загородный дом из керамических блоков и бревна, с баней из бревна, общей площадью 209 м.кв., расположенный в ДНП "Топаз" Одинцовского района Московской области
Вариант отопления: «Комфортный»
Цена проекта отопления, канализации и водоснабжения: 32 103 руб. со скидкой 10%, проект котельной - бесплатно.
Проект котельной, отопления, водоснабжения и канализации выполнен: 24.09.2019
Состав проекта котельной, отопления, канализации и водоснабжения дома в ДНП "Топаз":
1. Пояснительная записка проекта, общие данные по системам отопления, канализации и водоснабжения дома с баней 209 м.кв. в Московской области.
2. Тепломеханическая схема котельной с размещением оборудования в помещении 1-го этажа дома из газобетонных блоков.
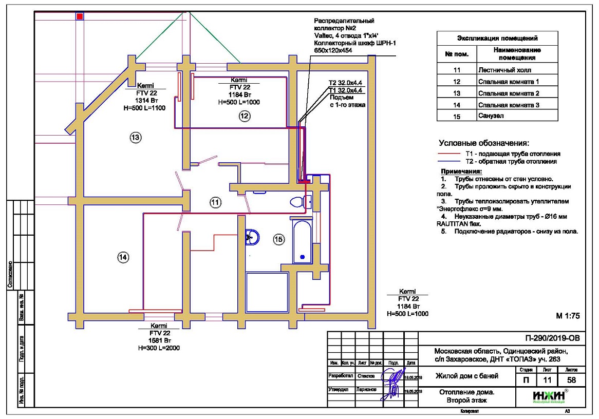
3. Комплект поэтажных чертежей радиаторного отопления дома и бани в ДНП "Топаз".
4. Комплект чертежей теплого пола дома и бани на площади 56 м.кв.
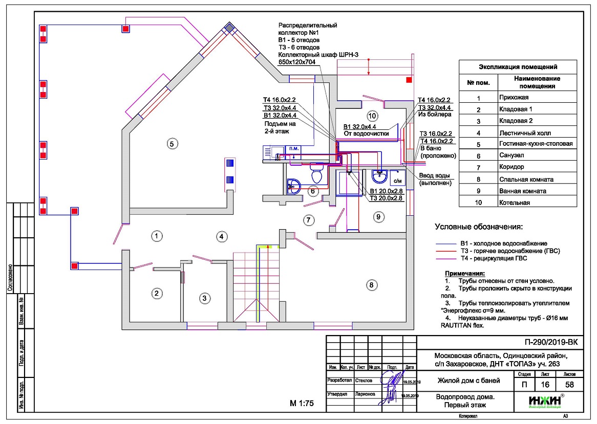
5. Комплект чертежей водоснабжения и канализации частного дома с баней 209 м.кв.
6. Типовые схемы системы отопления канализации и водоснабжения дома с баней 209 м.кв.
7. Теплотехнический расчет отопления дома с баней 209 м.кв.
8. Спецификация материалов и оборудования по котельной, отоплению, канализации и водоснабжению дома и бани в ДНП "Топаз".
Объем проекта отопления, канализации и водоснабжения дома с баней: 58 листов.
Описание проекта отопления, котельной, канализации и водоснабжения частного дома с баней 209 м.кв. в ДНП "Топаз".
Котельная частного дома в ДНП "Топаз"(проект котельной бесплатно).
o Размещена в помещении 1-го этажа дома;
o Теплогенератор - настенный газовый котел Vaillant, мощностью 28 кВт;
o Контуры теплоснабжения котельной – радиаторное отопление дома, отопление бани, теплый пол дома и бани, горячее водоснабжение, для которого предусмотрен накопительный бойлер ACV, объемом 160 литров (подключение к котлу);
o Расширительные баки отопления и бойлера Flamco, объемом 25 и 18 литров;
o Циркуляционные насосы отопления, теплого пола и бойлера Grundfos, использованы энергоэффективные насосы UPM3 Hybrid (в составе насосных групп), аналог насосов серии Alpha;
o Дымоудаление принудительное, дымоход коаксиальный, комплект Vaillant для прохода через кровлю, диаметр 80/125 мм;
o Распределительный коллектор - настенный Meibes;
o Автоматика котельной – контроллер управления отоплением ZONT H-2000 со встроенным GSM-модулем.
Автоматизация котельной, отопления и теплого пола (вариант «Комфортный»).
o Автоматическое регулирование отопления по наружной температуре (погодное регулирование, встроено в котел);
o Дистанционный контроль работы газового котла отопления при помощи GSM-модуля и мобильного приложения ZONT.
Отопление дома в ДНП "Топаз" (проект отопления дома).
o Выполнен теплотехнический расчет отопления дома и бани (утеплитель кровли - минвата URSA PUREONE 200мм) с учетом теплопотерь через ограждающие конструкции при наружной температуре -28°С для Московской области (по СП 131.13330.2012), а также теплоотдачи теплого пола (в помещениях, где он предусмотрен), расчетный расход тепла на отопление дома составил 14,17 кВт, удельные теплопотери 89 Вт/м.кв., на отопление бани - 4,9 кВт, удельные теплопотери 133 Вт/м.кв. (общий расход тепла - 19,7 кВт);
o Подобраны приборы для отопления дома: стальные панельные радиаторы KERMI с нижним подключением;
o Схема радиаторного отопления дома двухтрубная, коллекторно-лучевая, с принудительной циркуляцией теплоносителя и температурным графиком 80/60°С;
o Трубы отопления из сшитого полиэтилена Rehau;
o Теплоизоляция трубопроводов отопления Энергофлекс, толщиной 9мм;
o Теплоноситель в системе радиаторного отопления дома – подготовленная вода, предусмотрены средства защиты от образования накипи.
Водяной теплый пол дома в ДНП "Топаз" (проект теплого пола).
o Водяной теплый пол в доме и бане предусмотрен на площади 56 м.кв., коллекторы теплого пола Valtec - для дома на 7 петель, для бани - на 3 отвода;
o Предусмотрен отдельный контур котельной для теплоснабжения водяного теплого пола дома (насосная группа);
o Трубопроводы теплого пола – сшитый полиэтилен Rehau;
o Регулирование температуры теплого пола - общее, контуром котельной.
Внутренний водопровод дома в ДНП "Топаз" (проект водоснабжения).
o Схема внутреннего водоснабжения дома – коллекторно-лучевая с рециркуляцией горячей воды через водяные полотенцесушители, выполнен расчет 23-х точек водоснабжения и полотенцесушителей для дома и 10-ти для бани;
o Трубопроводы системы водоснабжения – из сшитого полиэтилена Rehau;
o Теплоизоляция трубопроводов Энергофлекс Супер, толщиной 9мм;
o Для летнего водопровода предусмотрен наружный кран Meibes SEPP-Eis с защитой от замерзания.
Внутренняя канализация (проект канализации) дома в ДНП "Топаз".
o Безнапорная, отвод стоков от санитарно-технических приборов предусмотрен в септик;
o Произведен расчет 15-ти точек бытовой канализации для дома и 5-ти для бани;
o Канализационные трубы Синикон, раструбные, из полипропилена.






















