Выполненные проекты
Проект отопления дома 390 м.кв. в Ярославской области
Объект: двухэтажный загородный дом из керамических блоков (Поротерм), с бассейном, общей площадью 390 м.кв., расположенный в дер. Савельево Переславского района Ярославской области
Вариант отопления: «Комфортный»
Цена проекта отопления, канализации и водоснабжения: 60 570 руб. со скидкой 10%, проект котельной - бесплатно.
Проект котельной, отопления, водоснабжения и канализации дома в Ярославской области выполнен: 07.10.2019
Состав проекта котельной, отопления, канализации и водоснабжения дома в дер. Савельево Ярославской области:
1. Пояснительная записка проекта, общие данные по системам отопления, канализации и водоснабжения дома с бассейном 390 м.кв. в Ярославской области.
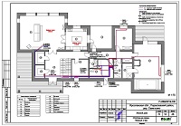
2. Тепломеханическая схема котельной с размещением оборудования в помещении 1-го этажа дома с бассейном.
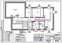
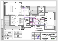
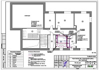
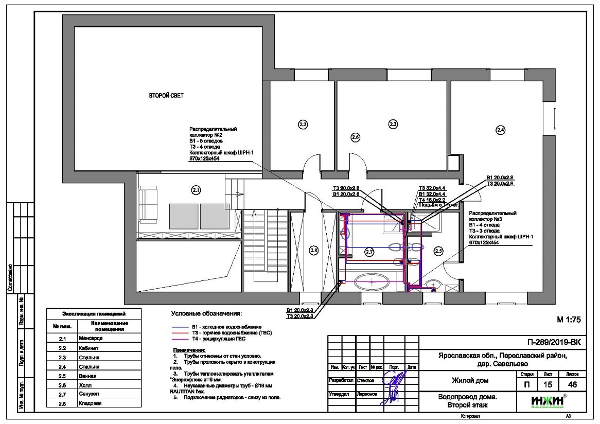
3. Комплект поэтажных чертежей радиаторного отопления дома в дер. Савельево Ярославской области.
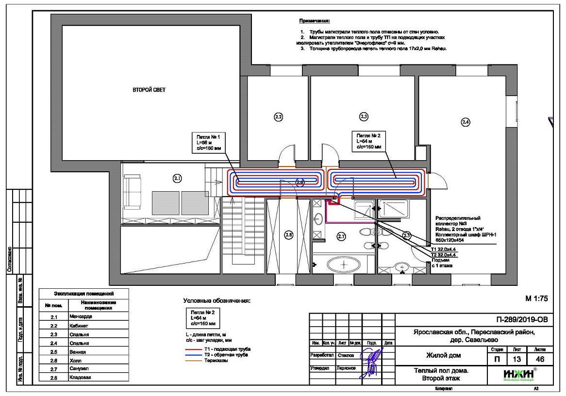
4. Комплект чертежей теплого пола дома и бассейна на площади 110 м.кв.
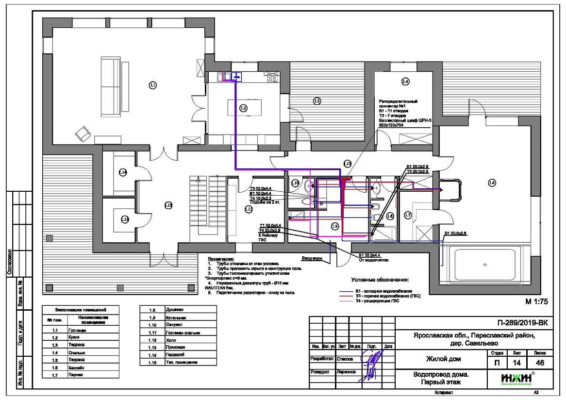
5. Комплект чертежей водоснабжения и канализации частного дома с бассейном 390 м.кв.
6. Типовые схемы системы отопления канализации и водоснабжения дома с бассейном 390 м.кв.
7. Теплотехнический расчет отопления дома с бассейном 390 м.кв.
8. Спецификация материалов и оборудования по котельной, отоплению, канализации и водоснабжению дома в дер. Савельево Ярославской области.
Объем проекта отопления, канализации и водоснабжения дома с бассейном: 46 листов.
Описание проекта отопления, котельной, канализации и водоснабжения частного дома с бассейном в дер. Савельево Ярославской области.
Котельная частного дома в дер. Савельево Ярославской области(проект котельной бесплатно).
o Размещена в помещении 1-го этажа дома;
o Теплогенераторы: основной - настенный электрический котел Vaillant eloBLOCK VE6, мощностью 28 кВт, резервный - настенный газовый котел Vaillant, мощностью 28 кВт (работа на сжиженном газе);
o Контуры теплоснабжения котельной – радиаторное отопление дома, теплый пол, горячее водоснабжение, для которого предусмотрен накопительный бойлер Vaillant, объемом 300 литров (подключение к коллектору) с дополнительным ТЭНом;
o Расширительные баки отопления и бойлера Flamco, объемом 35 и 25 литров;
o Циркуляционные насосы отопления, теплого пола и бойлера Grundfos, использованы энергоэффективные насосы UPM3 Hybrid (в составе насосных групп), аналог насосов серии Alpha;
o Дымоудаление резервного котла принудительное, дымоход коаксиальный, комплект Vaillant для прохода через стену, диаметр 60/100 мм;
o Распределительный коллектор - настенный Meibes с насосными группами;
o Автоматика котельной – погодозависимый регулятор Vaillant calorMATIC 630/3 с дополнительным GSM-модулем ZONT.
Автоматизация котельной, отопления и теплого пола (вариант «Комфортный»).
o Автоматическое регулирование отопления по наружной температуре (погодное регулирование, при помощи настенного блока calorMATIC 630/3);
o Дистанционный контроль работы газового котла отопления при помощи GSM-модуля и мобильного приложения ZONT.
Отопление дома в дер. Савельево Ярославской области (проект отопления дома).
o Выполнен теплотехнический расчет отопления дома из керамических блоков с бассейном (утеплитель кровли и стен - базальтовая вата 100мм и 300мм) с учетом теплопотерь через ограждающие конструкции при наружной температуре -31°С для Ярославской области (по СП 131.13330.2012), а также теплоотдачи теплого пола (в помещениях, где он предусмотрен), расчетный расход тепла на отопление составил 27,21 кВт, удельные теплопотери 72,2 Вт/м.кв.;
o Подобраны приборы для отопления дома: стальные панельные радиаторы KERMI с нижним подключением (из пола);
o Схема радиаторного отопления дома двухтрубная, коллекторно-лучевая, с принудительной циркуляцией теплоносителя и температурным графиком 80/60°С, коллекторы отопления Rehau, на 6 и 7 оводов, по одному на этаж;
o Трубы отопления из сшитого полиэтилена Rehau;
o Теплоизоляция трубопроводов отопления Энергофлекс, толщиной 9мм;
o Теплоноситель в системе радиаторного отопления дома – подготовленная вода, предусмотрены средства защиты от образования накипи.
Водяной теплый пол дома в дер. Савельево Ярославской области (проект теплого пола).
o Водяной теплый пол в доме предусмотрен на площади 110 м.кв., коллекторы теплого пола Rehau - на 2 и 8 отводов;
o Предусмотрен отдельный контур котельной для теплоснабжения водяного теплого пола (насосная группа);
o Трубопроводы теплого пола – сшитый полиэтилен Rehau, основание для укладки - плиты ENERGOFLOOR PIPELOCK;
o Регулирование температуры теплого пола - общее, контуром котельной.
Внутренний водопровод дома в дер. Савельево Ярославской области (проект водоснабжения).
o Схема внутреннего водоснабжения дома – коллекторно-лучевая с рециркуляцией горячей воды через тройники, выполнен расчет 35-и точек водоснабжения;
o Трубопроводы системы водоснабжения – из сшитого полиэтилена Rehau;
o Теплоизоляция трубопроводов Энергофлекс Супер, толщиной 9мм;
o Летний водопровод не предусмотрен.
Внутренняя канализация (проект канализации) дома в дер. Савельево Ярославской области.
o Безнапорная, отвод стоков от санитарно-технических приборов предусмотрен в септик;
o Произведен расчет 24-х точек бытовой канализации для дома, предусмотрен трап Viega с сухим затвором в сауне;
o Канализационные трубы Синикон, раструбные, из полипропилена.
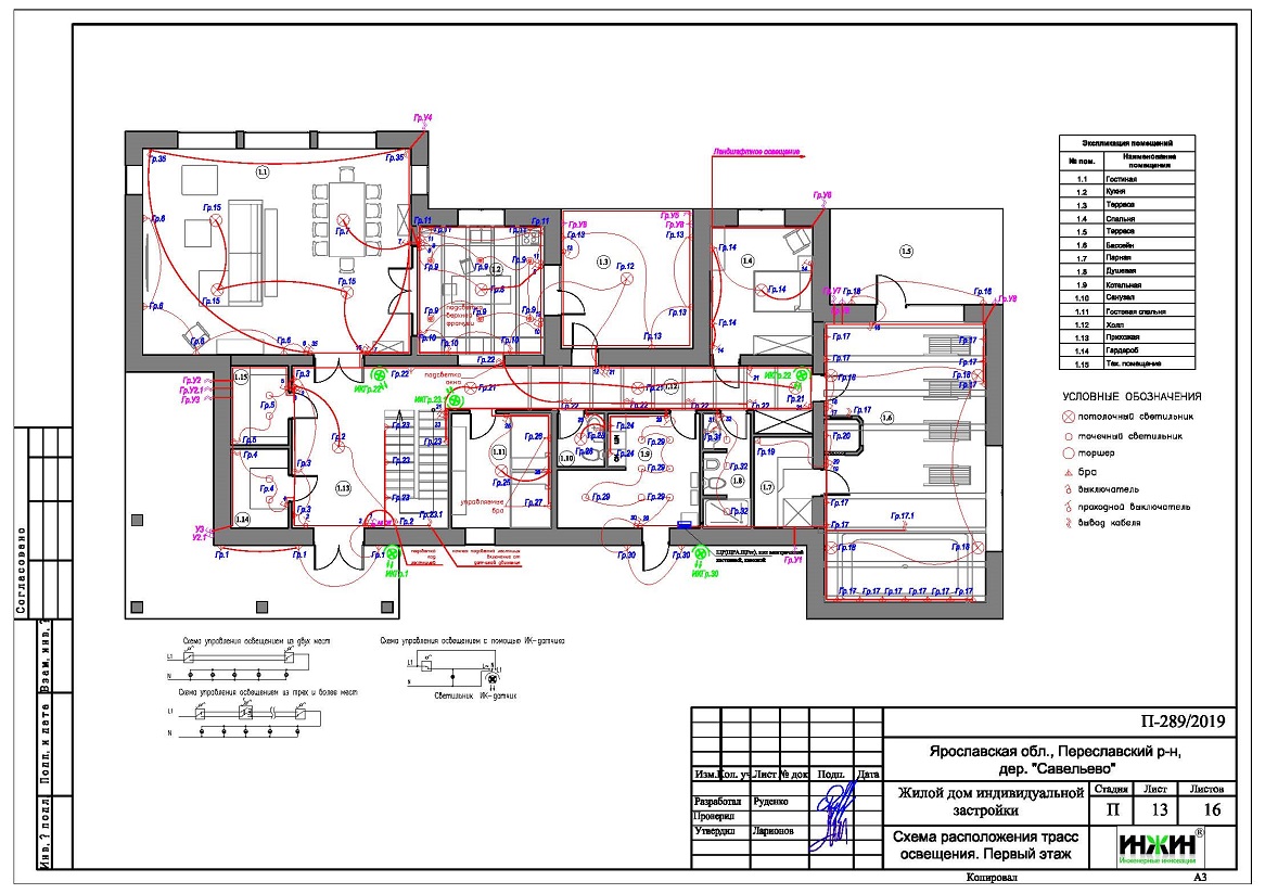
Для этого дома с бассейном выполнен проект электрики.






















