Выполненные проекты
Проект электрики дома в дер. Назарьево
Объект: деревянный дом площадью 250 м.кв. в дер. Назарьево Московской области
Цена (стоимость) проекта электрики (электропроводки): 21 375 руб. со скидкой 10%, проект слаботочных кабельных линий - бесплатно.
Проект электрики выполнен: 21.02.2020
Состав проекта электрики дома в дер. Назарьево:
1. Пояснительная записка. Общие данные по электроснабжению и освещению частного дома в дер. Назарьево.
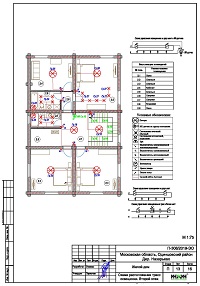
2. Однолинейная схема вводного распределительного устройства и электрического распределительного щита дома 250 м.кв.
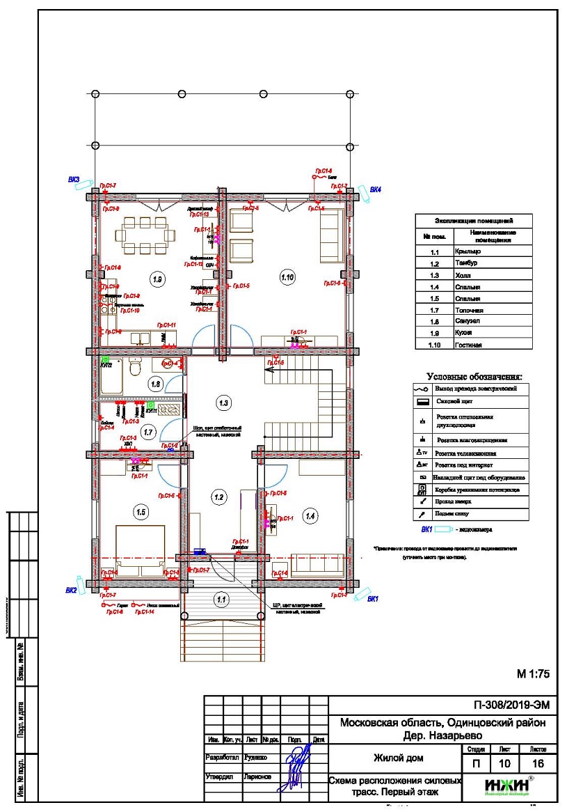
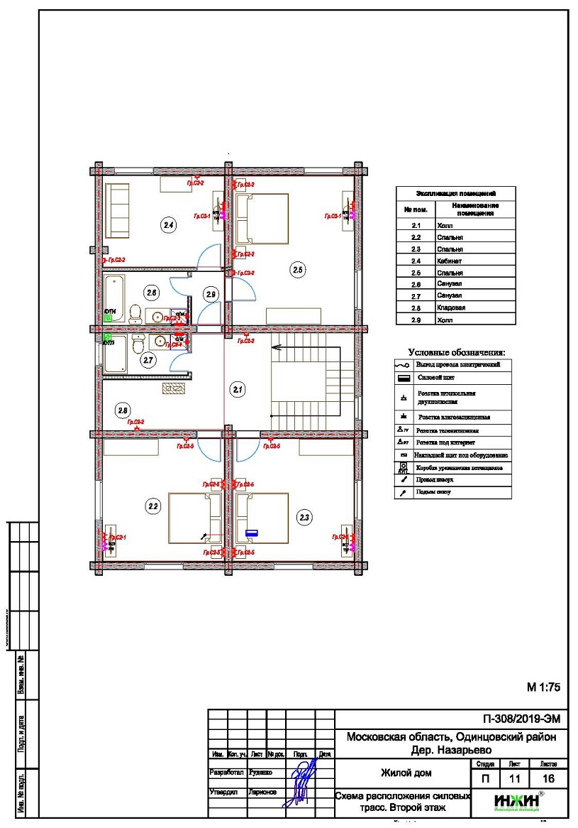
3. Чертежи электропроводки дома в дер. Назарьево.
4. Чертежи групповых осветительных сетей дома в дер. Назарьево.
5. Спецификация материалов и оборудования по электрике и электропроводке дома в дер. Назарьево.
Объем проекта электрики дома 250 м.кв.: 16 листов.
Проект электрики дома площадью 250 м.кв. в дер. Назарьево- подробное описание.
Расчетные показатели по электроснабжению и освещению дома в дер. Назарьево.
o Расчетная электрическая мощность дома составила 22,88 кВт, с учетом коэффициента спроса 0,6, принятого согласно СП 256.1325800.2016;
o При расчете учтено силовое оборудование: пеллетный котел, электрический нагреватель бойлера (2,2 кВт), скважинный насос, приводы ворот и рольставен, электроплита с духовкой.
Распределительные электрические щиты дома площадью 250 м.кв.
o Проектом предусмотрено один распределительный электрический щит, расположенный в прихожей 1 этажа;
o Автоматические выключатели, дифференциальные автоматы, рубильники и УЗО в щитах – ABB, в количестве 36 шт. размещены в накладном корпусе.
Силовая кабельная сеть (электропроводка) дома в дер. Назарьево.
o Электропроводка дома предусмотрена с использованием кабелей ВВГ нг -LS с медными жилами в ПВХ-оболочке (не поддерживает горение);
o Общая протяженность линий электроснабжения и освещения – 1 273 метра;
o Электропроводка предусмотрена скрытым способом, в защитном металлорукаве в ПВХ изоляции;
o Запроектировано 133 точки подключения розеток и выключателей освещения в доме;
o Предусмотрены слаботочные линии локальной вычислительной сети и телевидения, общая протяженность - 520 метров, а также системы видеонаблюдения - 150 метров.
Предусмотрено стабилизированное электропитание дома при помощи стабилизатора напряжения однофазного Lider.
Предусмотрена система молниезащиты здания.
Для этого дома в дер. Назарьево выполнен проект отопления, водоснабжения и канализации.



















