Выполненные проекты
Отопление дома из бревна 250 м.кв., проект
Объект: двухэтажный загородный дом из бревна, общей площадью 250 м.кв. в дер. Назарьево Московской области
Цена проекта отопления, канализации и водоснабжения: 33 750 руб. со скидкой 10%, проект котельной - бесплатно.
Проект котельной, отопления, водоснабжения и канализации дома в дер. Назарьево выполнен: 19.02.2020
Состав проекта котельной, отопления, канализации и водоснабжения дома в дер. Назарьево:
1. Пояснительная записка проекта, общие данные по системам отопления, канализации и водоснабжения дома 250 м.кв. в Московской области.
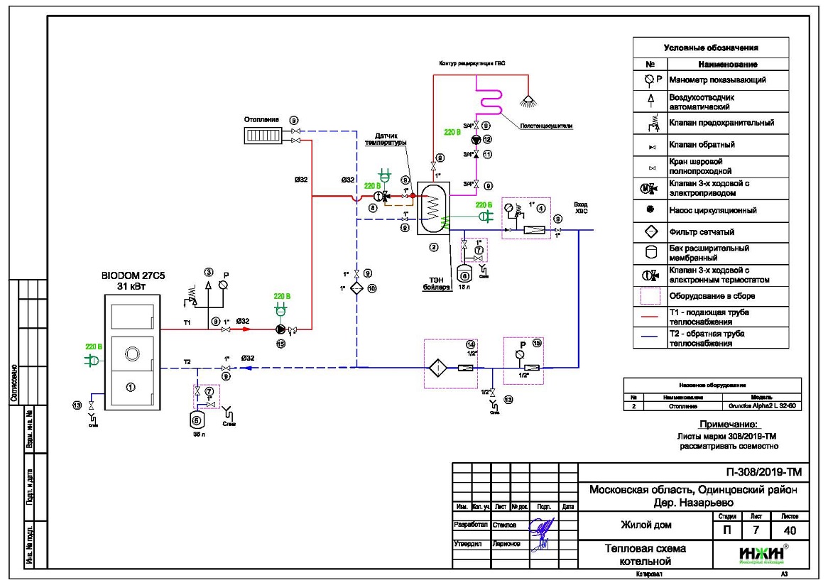
2. Тепломеханическая схема котельной с размещением оборудования в помещении 1-го этажа дома в дер. Назарьево.
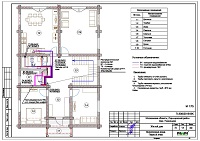
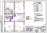
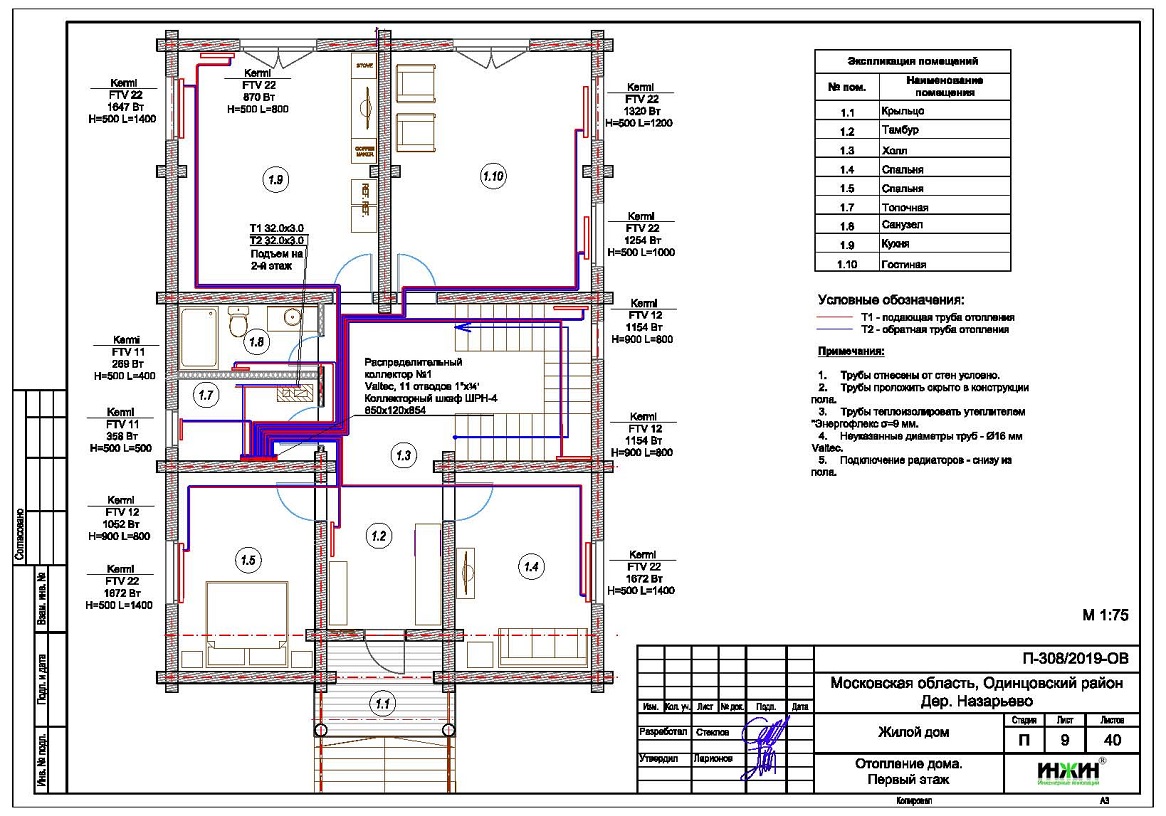
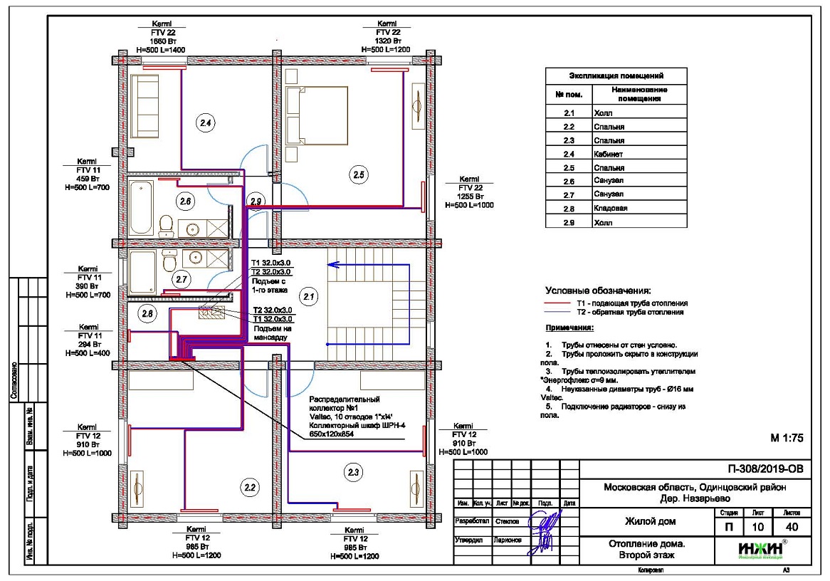
3. Комплект поэтажных чертежей радиаторного отопления дома в дер. Назарьево.
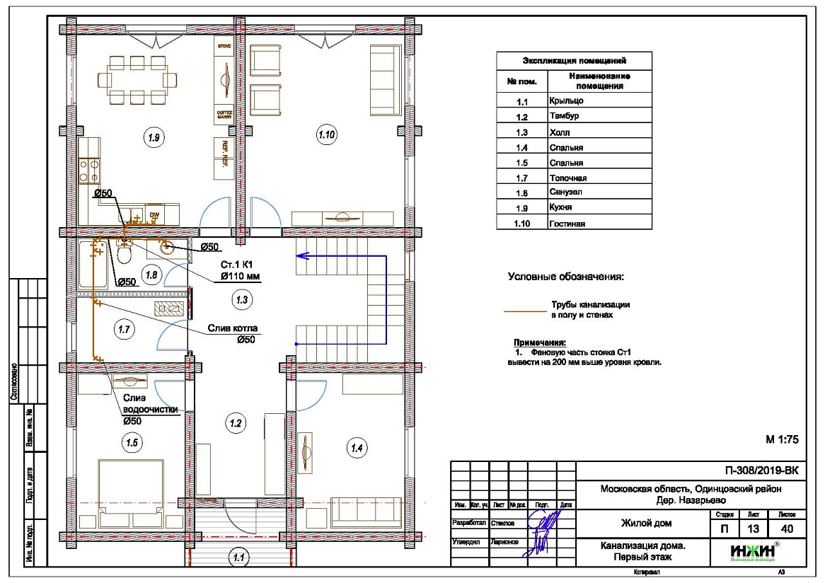
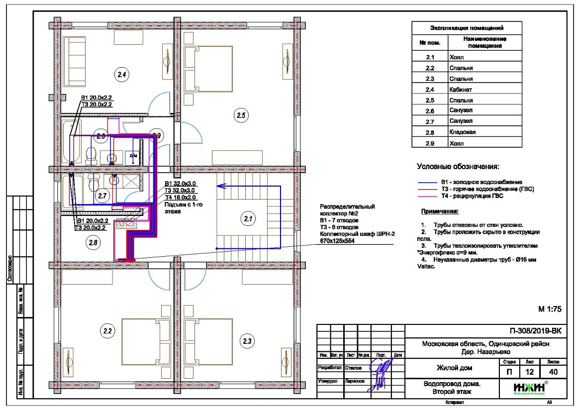
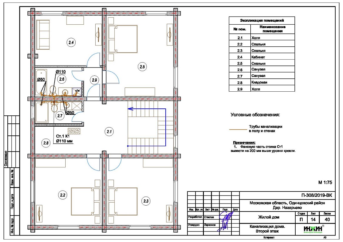
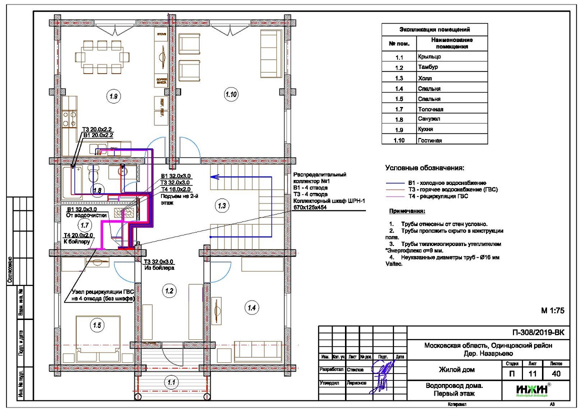
4. Комплект чертежей водоснабжения и канализации частного дома 250 м.кв.
5. Типовые схемы системы отопления канализации и водоснабжения дома из бревна 250 м.кв.
6. Теплотехнический расчет отопления деревянного дома 250 м.кв.
7. Спецификация материалов и оборудования по котельной, отоплению, канализации и водоснабжению дома в дер. Назарьево.
Объем проекта отопления, канализации и водоснабжения деревянного дома: 40 листов.
Описание проекта отопления, котельной, канализации и водоснабжения частного дома из бревна в дер. Назарьево.
Котельная частного дома в дер. Назарьево (проект котельной бесплатно).
o Размещена в помещении 1-го этажа дома;
o Теплогенератор котельной - напольный пеллетный котел BIODOM, мощностью 30 кВт;
o Контуры теплоснабжения котельной – радиаторное отопление дома и горячее водоснабжение, для которого предусмотрен накопительный бойлер Drazice, объемом 200 литров, со встроенным электронагревательным элементом (подключение к котлу);
o Расширительные баки отопления и бойлера Flamco, объемом 35 и 18 литров;
o Циркуляционный насос отопления Grundfos, использован энергоэффективный насос серии Alpha;
o Дымоудаление пеллетного котла естественное, дымоход из нержавеющей стали Rosinox, диаметр 130 мм;
o Автоматика котельной – встроена в котел.
Отопление дома в дер. Назарьево (проект отопления деревянного дома).
o Выполнен теплотехнический расчет отопления дома из бревна(утеплитель кровли - минеральная вата 200мм, пола - пенополистирол 100мм) с учетом теплопотерь через ограждающие конструкции при наружной температуре -28°С для Московской области (по СП 131.13330.2012), расчетный расход тепла на отопление составил 21,74 кВт, удельные теплопотери 91,7 Вт/м.кв.;
o Подобраны приборы для отопления дома: стальные панельные радиаторы KERMI с нижним подключением (из пола);
o Схема радиаторного отопления дома двухтрубная, коллекторно-лучевая, с принудительной циркуляцией теплоносителя и температурным графиком 80/60°С, коллекторы отопления Valtec, на 10 и 11 отводов;
o Трубы отопления из металлопластика Valtec;
o Теплоизоляция трубопроводов отопления Энергофлекс, толщиной 9мм;
o Теплоноситель в системе радиаторного отопления дома – подготовленная вода, предусмотрены средства защиты от образования накипи.
Водяной теплый пол проектом не предусмотрен.
Внутренний водопровод дома в дер. Назарьево (проект водоснабжения).
o Схема внутреннего водоснабжения дома – коллекторно-лучевая с рециркуляцией горячей воды через полотенцесушители, выполнен расчет 23-х точек водоснабжения;
o Трубопроводы системы водоснабжения – из металлопластика Valtec;
o Теплоизоляция трубопроводов Энергофлекс Супер, толщиной 9мм.
Внутренняя канализация (проект канализации) дома в дер. Назарьево.
o Безнапорная, отвод стоков от санитарно-технических приборов предусмотрен в септик;
o Произведен расчет 13-ти точек бытовой канализации для дома;
o Канализационные трубы Синикон, раструбные, из полипропилена, диаметром 50 и 110мм.
Для этого дома в дер. Назарьево выполнен проект электрики.
Заказать в нашей компании проект отопления, водоснабжения и канализации загородного дома из бревна со скидкой.






















