Выполненные проекты
Проект электрики дома 179 м.кв. в КП "Марсель"
Объект: двухэтажный дом площадью 179 м.кв. в КП "Марсель" Московской области
Цена (стоимость) проекта электрики (электропроводки): 15 305 руб. со скидкой 10%, проект слаботочных кабельных линий - бесплатно.
Проект электрики выполнен: 18.04.2020
Состав проекта электрики дома в КП "Марсель":
1. Пояснительная записка. Общие данные по электроснабжению и освещению частного дома в КП "Марсель".
2. Однолинейные схемы вводного распределительного устройства и электрического распределительного щита дома 179 м.кв.
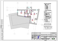
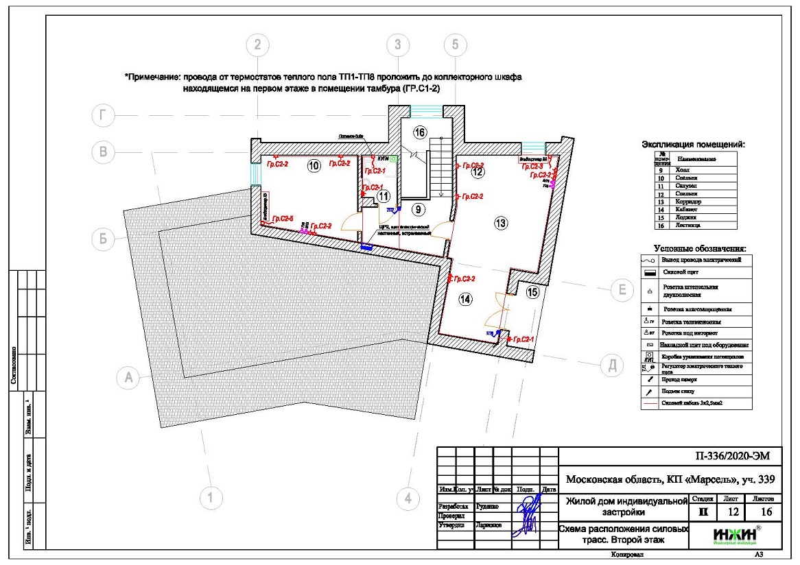
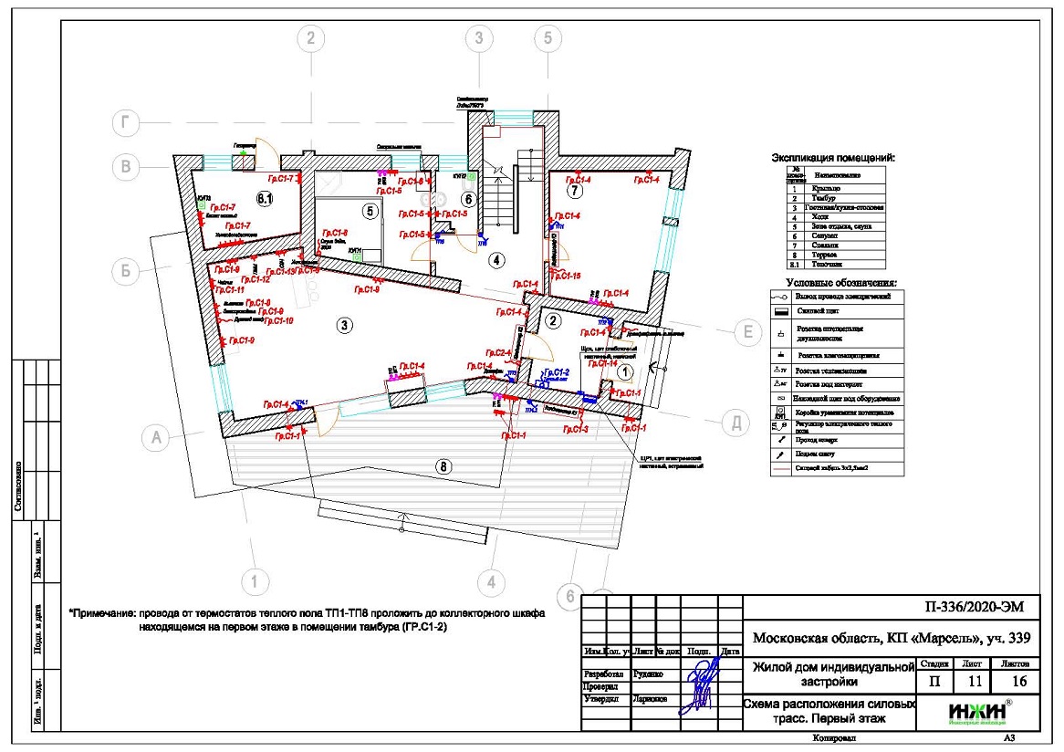
3. Чертежи электропроводки 1 и 2 этажей дома в КП "Марсель".
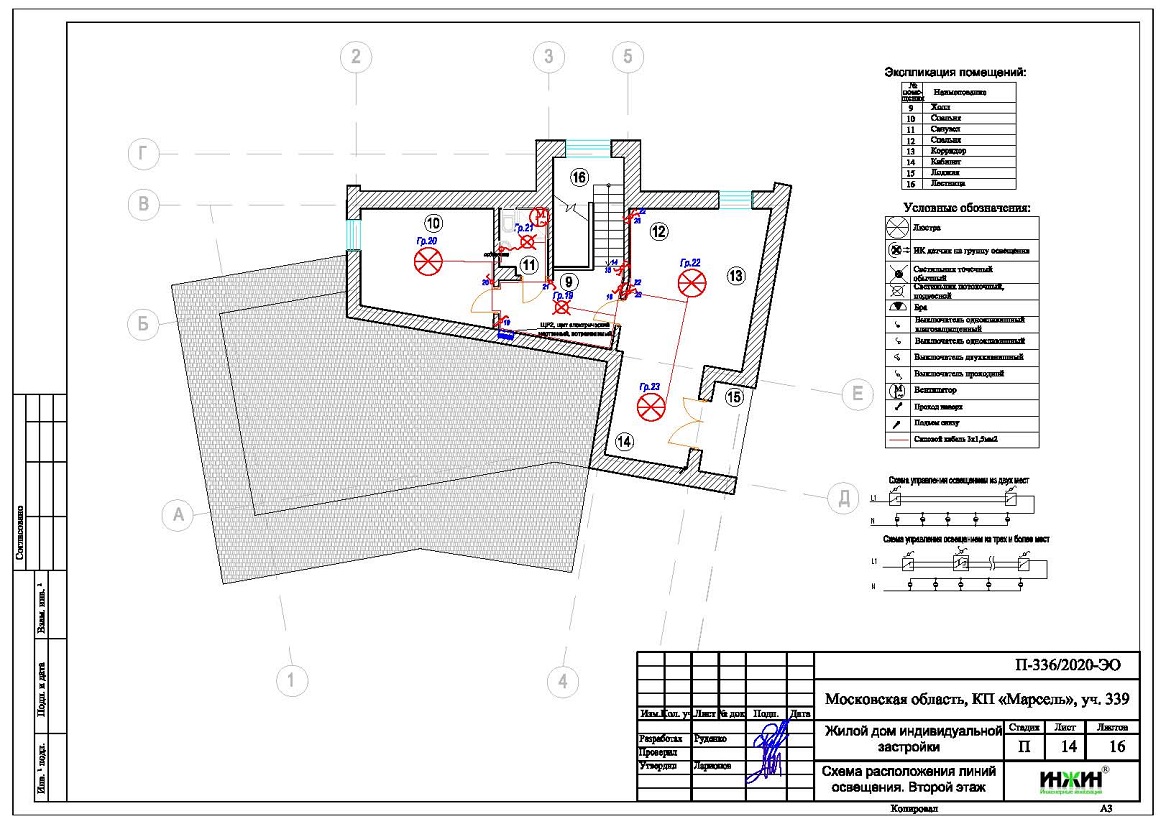
4. Чертежи групповых осветительных сетей дома в КП "Марсель".
5. Спецификация материалов и оборудования по электрике и электропроводке дома в КП "Марсель".
Объем проекта электрики дома179 м.кв.: 16 листов.
Проект электрики дома площадью 179 м.кв. в КП "Марсель"- подробное описание.
Расчетные показатели по электроснабжению и освещению дома в КП "Марсель".
o Расчетная электрическая мощность дома составила 16,99 кВт, с учетом коэффициента спроса 0,65, принятого согласно СП 256.1325800.2016;
o При расчете учтено силовое оборудование: электрический теплый пол, газовый котел, кондиционеры (5 шт.).
Распределительные электрические щиты дома площадью 179 м.кв.
o Проектом предусмотрено два распределительных электрических щита, по одному на этаж;
o Автоматические выключатели, дифференциальные автоматы, рубильники и УЗО в щитах – ABB, в количестве 36 шт. размещены во встраиваемых корпусах.
Силовая кабельная сеть (электропроводка) дома в КП "Марсель".
o Электропроводка дома предусмотрена с использованием кабелей ВВГ нг -LS с медными жилами в ПВХ-оболочке (не поддерживает горение);
o Общая протяженность линий электроснабжения и освещения – 1425 метров;
o Электропроводка предусмотрена скрытым способом, в защитной гофрированной ПВХ-трубе (усиленной конструкции) и металлорукаве в виниловой оболочке (в стропильной системе кровли);
o Запроектировано 148 точек подключения розеток и выключателей освещения в доме;
o Предусмотрены слаботочные линии локальной вычислительной сети и телевидения, общая протяженность - 400 метров..
Предусмотрено резервное электропитание однофазный бензиновый генератор мощностью 9 кВт (по выбору Заказчика).



















