Выполненные проекты
Отопление дома в дер. Березенки, проект
Объект: двухэтажный загородный дом из керамических блоков, площадью 155 м.кв., расположенный в дер. Березенки Чеховского района Московской области
Вариант отопления: «Комфортный»
Цена проекта отопления, канализации и водоснабжения: 28 341 руб. со скидкой 10%, проект котельной - бесплатно.
Проект котельной, отопления, водоснабжения и канализации выполнен: 28.04.2020
Состав проекта котельной, отопления, канализации и водоснабжения дома в дер. Березенки:
1. Пояснительная записка проекта, общие данные по системам отопления, канализации и водоснабжения дома 155 м.кв. в Московской области.
2. Тепломеханическая схема котельной с размещением оборудования в отдельном помещении дома из керамических блоков.
3. Комплект поэтажных чертежей радиаторного отопления дома в дер. Березенки.
4. Комплект чертежей теплого пола на площади 103 м.кв.
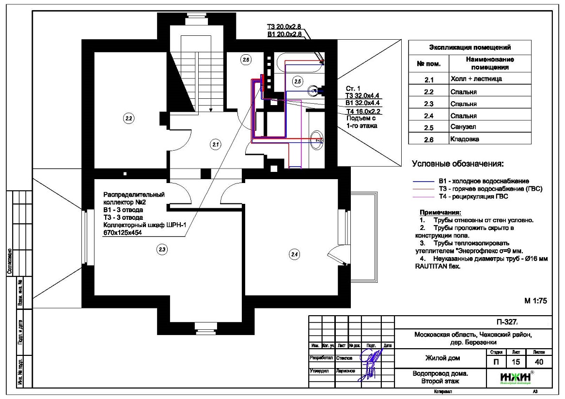
5. Комплект чертежей водоснабжения и канализации частного дома из керамических блоков.
6. Типовые схемы системы отопления канализации и водоснабжения дома 155 м.кв.
7. Теплотехнический расчет отопления дома из керамических блоков.
8. Спецификация материалов и оборудования по котельной, отоплению, канализации и водоснабжению дома в дер. Березенки.
Объем проекта отопления, канализации и водоснабжения дома: 40 листов.
Описание проекта отопления, котельной, канализации и водоснабжения частного дома 155 м.кв. в дер. Березенки.
Котельная частного дома в дер. Березенки (проект котельной бесплатно).
o Размещена в отдельном помещении дома 155 м.кв.;
o Теплогенератор - настенный газовый котел Vaillant, мощностью 28 кВт;
o Контуры теплоснабжения котельной – радиаторное отопление дома, отопление беседки, теплый пол и горячее водоснабжение, для которого предусмотрен накопительный бойлер Vaillant uniSTOR, объемом 200 литров (подключение к коллектору котельной);
o Расширительные баки отопления и бойлера Flamco, объемом 25 и 18 литров;
o Циркуляционные насосы отопления и бойлера Grundfos, использованы энергоэффективные насосы UPM3 Hybrid (в составе насосных групп Meibes), аналог насосов серии Alpha;
o Дымоудаление принудительное, дымоход коаксиальный, комплект Vaillant для прохода через кровлю, диаметр 80/125 мм;
o Распределительный коллектор - настенный Meibes, с насосными группами и гидравлическим разделителем;
o Автоматика котельной – встроена в котел.
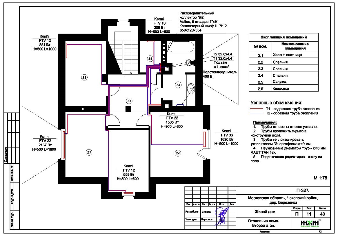
Отопление дома в дер. Березенки (проект отопления дома).
o Выполнен теплотехнический расчет отопления дома из керамических блоков (утеплитель кровли - каменная вата Rockwool, 200мм, пола - пеноплекс 100мм) с учетом теплопотерь через ограждающие конструкции при наружной температуре -28°С для Московской области (по СП 131.13330.2012), а также теплоотдачи помещений с теплым полом, расчетный расход тепла на отопление дома составил 18 кВт, удельные теплопотери 116,7 Вт/м.кв.;
o Подобраны приборы для отопления дома: стальные панельные радиаторы KERMI с нижним подключением и встроенный в пол конвектор Varmann с естественной конвекцией;
o Схема радиаторного отопления дома двухтрубная, коллекторно-лучевая, с принудительной циркуляцией теплоносителя и температурным графиком 80/60°С;
o Трубы отопления из сшитого полиэтилена Rehau;
o Теплоизоляция трубопроводов отопления Энергофлекс, толщиной 9мм;
o Теплоноситель в системе радиаторного отопления дома – незамерзающая жидкость для систем отопления Warme Eco Pro 30.
Водяной теплый пол дома в дер. Березенки (проект теплого пола).
o Водяной теплый пол в доме предусмотрен на площади 103 м.кв., коллектор теплого пола Valtec на 9 петель;
o Предусмотрен отдельный контур котельной для теплоснабжения водяного теплого пола дома (насосная группа котельной);
o Трубопроводы теплого пола – сшитый полиэтилен Rehau RAUTHERM S;
o Регулирование температуры теплого пола - общее, контуром котельной.
Внутренний водопровод дома в дер. Березенки (проект водоснабжения).
o Схема внутреннего водоснабжения дома – коллекторно-лучевая с рециркуляцией горячей воды через водяные полотенцесушители, выполнен расчет 18-и точек водоснабжения и полотенцесушителей;
o Трубопроводы системы водоснабжения – из сшитого полиэтилена Rehau;
o Теплоизоляция трубопроводов Энергофлекс Супер, толщиной 9мм;
o Летний водопровод проектом не предусмотрен.
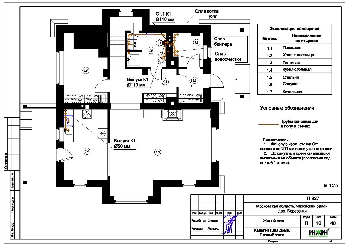
Внутренняя канализация (проект канализации) дома в дер. Березенки.
o Безнапорная, отвод стоков от санитарно-технических приборов предусмотрен в септик;
o Произведен расчет 12-ти точек бытовой канализации;
o Канализационные трубы Синикон, раструбные, из полипропилена.






















