Выполненные проекты
Отопление, водоснабжение дома из бруса 88 м.кв., проект
Объект: двухэтажный загородный дом из бруса, общей площадью 88 м.кв. в пос. Лесной Городок Московской области
Цена проекта отопления, канализации и водоснабжения: 11 880 руб. со скидкой 10%, проект газовой котельной - бесплатно.
Проект котельной, отопления, водоснабжения и канализации дома в пос. Лесной Городок выполнен: 13.04.2020
Состав проекта котельной, отопления, канализации и водоснабжения дома в пос. Лесной Городок:
1. Пояснительная записка проекта, общие данные по системам отопления, канализации и водоснабжения дома 88 м.кв. в Московской области.
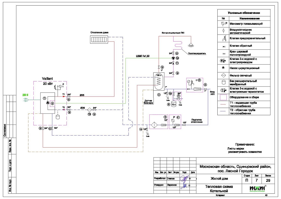
2. Тепломеханическая схема котельной с размещением оборудования в помещении дома в пос. Лесной Городок.
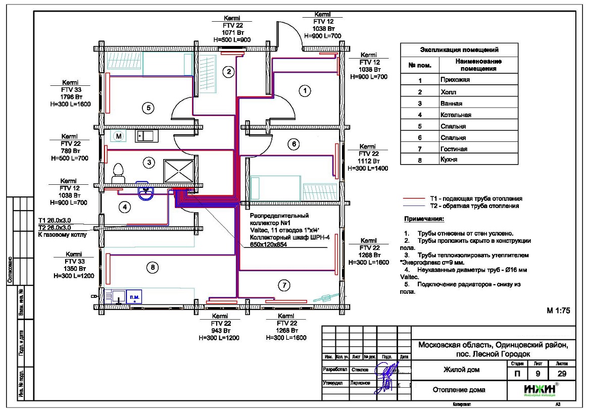
3. Комплект поэтажных чертежей радиаторного отопления дома в пос. Лесной Городок.
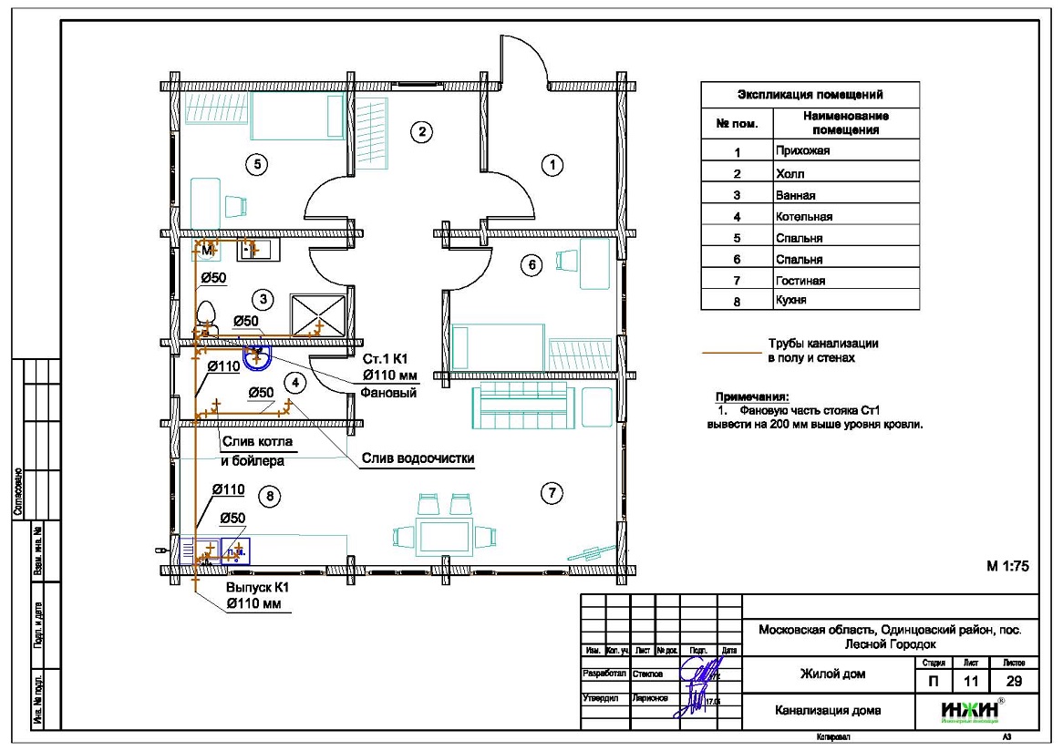
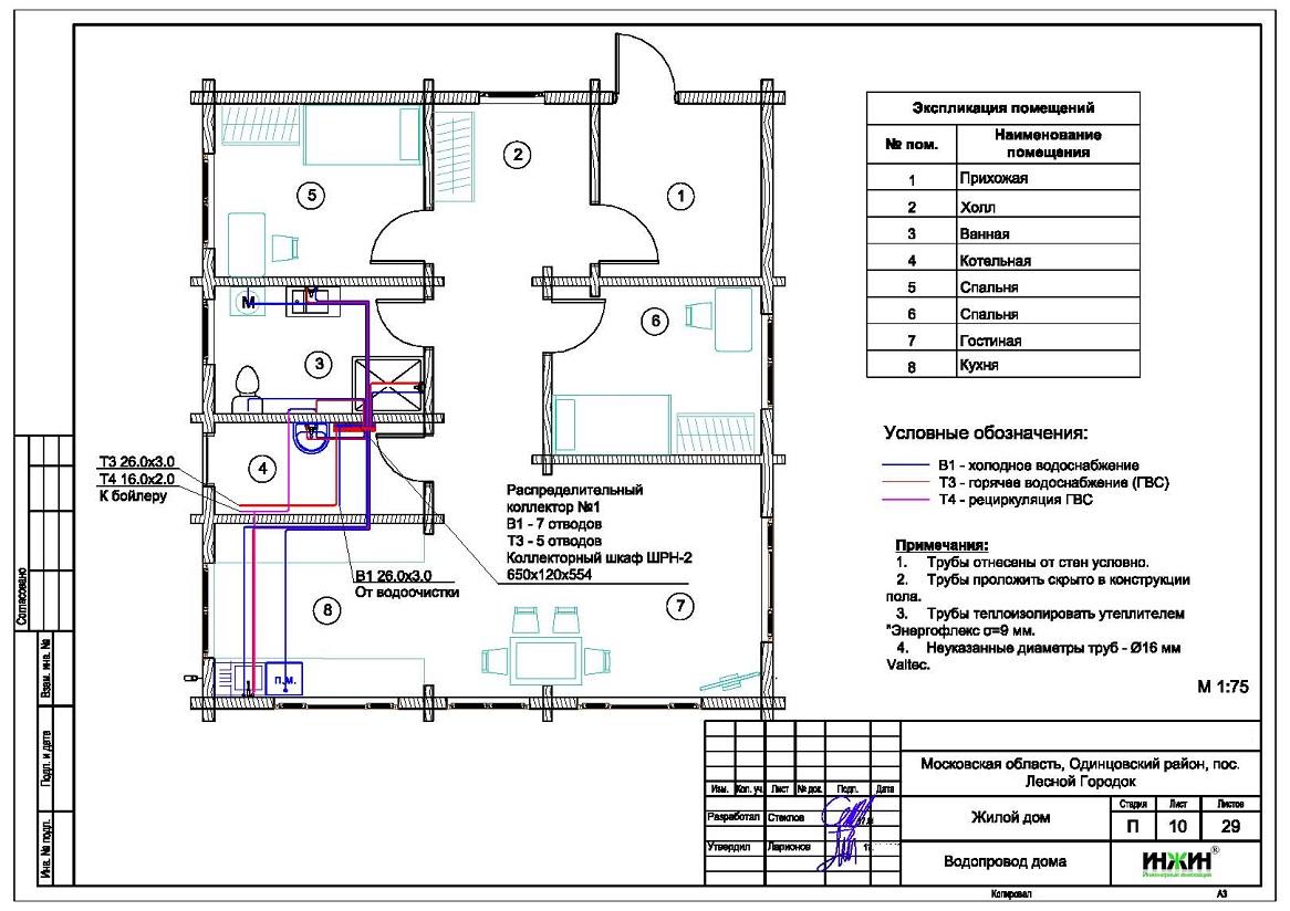
4. Комплект чертежей водоснабжения и канализации частного дома 88 м.кв.
5. Типовые схемы системы отопления канализации и водоснабжения дома из бруса 88 м.кв.
6. Теплотехнический расчет отопления деревянного дома 88 м.кв.
7. Спецификация материалов и оборудования по котельной, отоплению, канализации и водоснабжению дома в пос. Лесной Городок.
Объем проекта отопления, канализации и водоснабжения деревянного дома: 29 листов.
Описание проекта отопления, котельной, канализации и водоснабжения частного дома из бруса в пос. Лесной Городок.
Котельная частного дома в пос. Лесной Городок (проект котельной бесплатно).
o Размещена во внутреннем помещении дома;
o Теплогенератор котельной - настенный газовый котел Vaillant, мощностью 20 кВт;
o Контуры теплоснабжения котельной – радиаторное отопление дома и горячее водоснабжение, для которого предусмотрен накопительный бойлер Vaillant, объемом 150 литров, подключение к котлу;
o Расширительный бак бойлера Flamco, объемом 12 литров;
o Циркуляционный насос отопления Grundfos - встроен в котел;
o Дымоудаление котла принудительное, дымоход коаксиальный, комплект Vaillant для прохода через стену, диаметр 60/100 мм;
o Автоматика котельной – встроена в котел.
Отопление дома в пос. Лесной Городок (проект отопления деревянного дома).
o Выполнен теплотехнический расчет отопления дома из бруса(утеплитель кровли - минеральная вата 100мм, пола - пенополистирол 50мм) с учетом теплопотерь через ограждающие конструкции при наружной температуре -28°С для Московской области (по СП 131.13330.2012), расчетный расход тепла на отопление составил 12,22 кВт, удельные теплопотери 140,1 Вт/м.кв.;
o Подобраны приборы для отопления дома: стальные панельные радиаторы KERMI с нижним подключением (из пола);
o Схема радиаторного отопления дома двухтрубная, коллекторно-лучевая, с принудительной циркуляцией теплоносителя и температурным графиком 80/60°С, коллектор отопления Valtec, на 11 отводов;
o Трубы отопления из металлопластика Valtec;
o Теплоизоляция трубопроводов отопления Энергофлекс, толщиной 9мм;
o Теплоноситель в системе радиаторного отопления дома – подготовленная вода, предусмотрены средства защиты от образования накипи.
Водяной теплый пол проектом не предусмотрен.
Внутренний водопровод дома в пос. Лесной Городок (проект водоснабжения).
o Схема внутреннего водоснабжения дома – коллекторно-лучевая с рециркуляцией горячей воды через полотенцесушители, выполнен расчет 13-и точек водоснабжения;
o Трубопроводы системы водоснабжения – из металлопластика Valtec;
o Теплоизоляция трубопроводов Энергофлекс Супер, толщиной 9мм.
Внутренняя канализация (проект канализации) дома в пос. Лесной Городок.
o Безнапорная, отвод стоков от санитарно-технических приборов предусмотрен в септик;
o Произведен расчет 9-ти точек бытовой канализации для дома;
o Канализационные трубы Синикон, раструбные, из полипропилена, диаметром 50 и 110мм.
Заказать в нашей компании проект отопления, водоснабжения и канализации загородного дома из бруса со скидкой.



















