Выполненные проекты
Электрика дома в дер. Яковлево Дмитровского района
Объект: частный дом из газобетонных блоков, площадью 159 м.кв., расположенный в дер. Яковлево Дмитровского района Московской области
Цена (стоимость) проекта электрики (электропроводки): 13 594 руб. со скидкой 10%, проект слаботочных кабельных линий - бесплатно.
Проект электрики дома в дер. Яковлево выполнен: 08.05.2020
Состав проекта электрики дома в дер. Яковлево:
1. Пояснительная записка. Общие данные по электроснабжению и освещению частного дома в дер. Яковлево.
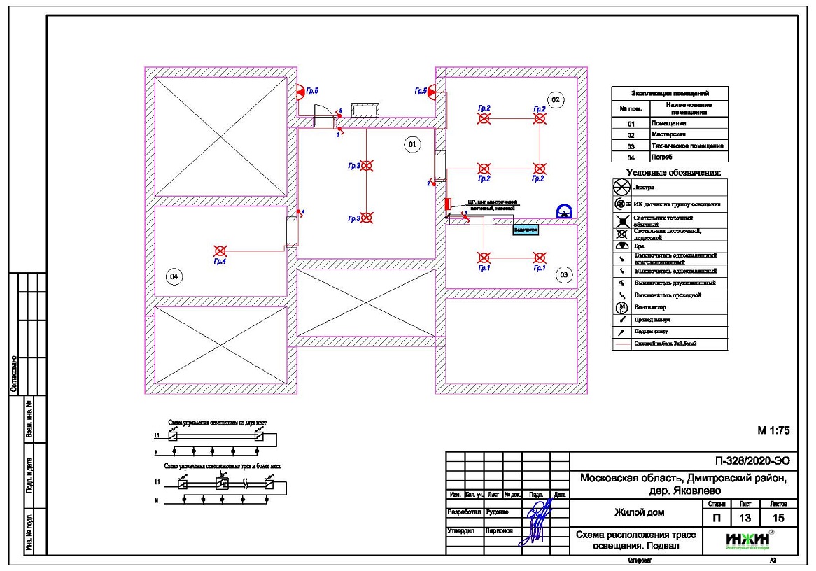
2. Однолинейные схемы вводного распределительного устройства и электрического распределительного щита дома 159 м.кв.
3. Чертежи электропроводки подвала и 1 этажа дома в дер. Яковлево.
4. Чертежи групповых осветительных сетей дома в дер. Яковлево.
5. Спецификация материалов и оборудования по электрике и электропроводке дома в дер. Яковлево.
Объем проекта электрики дома159 м.кв.: 16 листов.
Проект электрики дома площадью 159 м.кв. в дер. Яковлево- подробное описание.
Расчетные показатели по электроснабжению и освещению дома в дер. Яковлево.
o Расчетная электрическая мощность дома составила 21,04 кВт, с учетом коэффициента спроса 0,6, принятого согласно СП 256.1325800.2016;
o При расчете учтено силовое оборудование: КНС, газовый котел, кондиционеры (2 шт.), морозильная камера, скважинный насос, обогрев водостоков.
Распределительные электрические щиты дома площадью 159 м.кв.
o Проектом предусмотрен распределительный электрический щит, размещенный в прихожей;
o Автоматические выключатели, дифференциальные автоматы, рубильники и УЗО в щите – ABB, в количестве 37 шт. размещены во навесном корпусе.
Силовая кабельная сеть (электропроводка) дома в дер. Яковлево.
o Электропроводка дома предусмотрена с использованием кабелей ВВГ нг -LS с медными жилами в ПВХ-оболочке (не поддерживает горение);
o Общая протяженность линий электроснабжения и освещения – 955 метров;
o Электропроводка предусмотрена скрытым способом, в защитной гофрированной ПВХ-трубе (усиленной конструкции) и металлорукаве в виниловой оболочке (в стропильной системе кровли);
o Запроектировано 143 точки подключения розеток и выключателей освещения в доме;
o Предусмотрены слаботочные линии локальной вычислительной сети, видеонаблюдения и телевидения, общая протяженность - 430 метров..
Предусмотрено резервное электропитание однофазный бензиновый генератор мощностью 7 кВт (по выбору Заказчика).
Заказать проект электрики дома дистанционно.
Для этого дома в дер. Яковлево выполнен проект отопления, водоснабжения и канализации.



















