Выполненные проекты
Проект отопления дома в Новосибирске
Объект: двухэтажный загородный дом из газобетона «Сибит», общей площадью 115 м.кв. в Новосибирске (мкр. Близкий)
Вариант отопления: «Комфортный»
Цена проекта отопления, канализации и водоснабжения: 19 985 руб. со скидкой 10%, проект котельной - бесплатно.
Проект котельной, отопления, водоснабжения и канализации дома в Новосибирске выполнен: 20.05.2020
Состав проекта котельной, отопления, канализации и водоснабжения дома в Новосибирске:
1. Пояснительная записка проекта, общие данные по системам отопления, канализации и водоснабжения дома 115 м.кв. в Новосибирске.
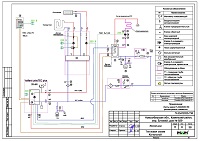
2. Тепломеханическая схема котельной с размещением оборудования в помещении 1-го этажа дома в Новосибирске.
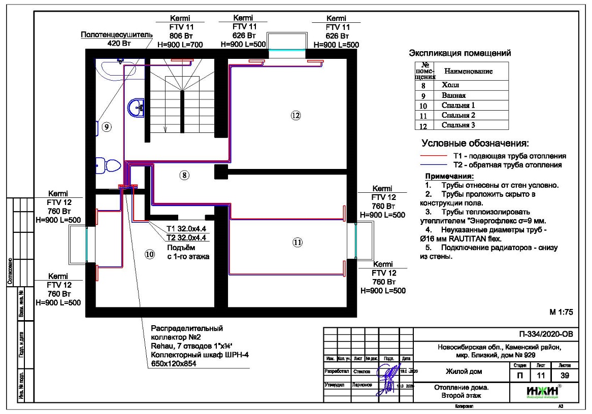
3. Комплект поэтажных чертежей радиаторного отопления дома в Новосибирске.
4. Комплект чертежей теплого пола дома на площади 60 м.кв.
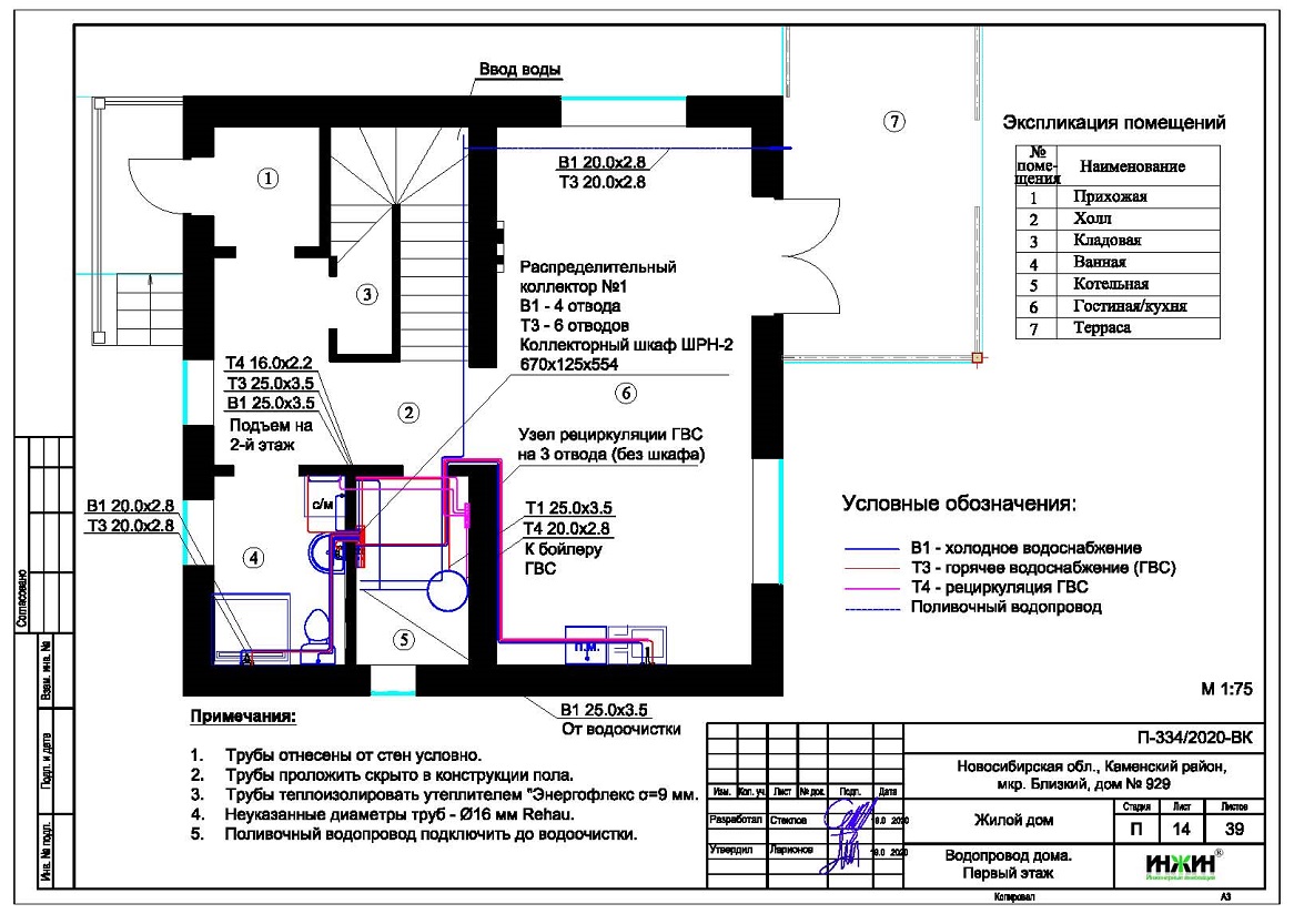
5. Комплект чертежей водоснабжения и канализации частного дома 115 м.кв.
6. Типовые схемы системы отопления канализации и водоснабжения дома из газобетона «Сибит» 115 м.кв.
7. Теплотехнический расчет отопления газобетонного дома 115 м.кв.
8. Спецификация материалов и оборудования по котельной, отоплению, канализации и водоснабжению дома в Новосибирске.
Объем проекта отопления, канализации и водоснабжения газобетонного дома: 39 листов.
Описание проекта отопления, котельной, канализации и водоснабжения частного дома из газобетона «Сибит» в Новосибирске.
Котельная частного дома в Новосибирске(проект котельной бесплатно).
o Размещена в помещении 1-го этажа дома в Новосибирске;
o Теплогенератор котельной - настенный газовый котел Vaillant, мощностью 24 кВт;
o Контуры теплоснабжения котельной – радиаторное отопление дома, теплый пол и горячее водоснабжение, для которого предусмотрен накопительный бойлер Vaillant, объемом 200 литров (подключение к котлу);
o Расширительные баки отопления и бойлера Flamco, объемом 18 литров каждый;
o Циркуляционные насосы отопления, теплого пола и бойлера Grundfos, использованы энергоэффективные насосы UPM3 Hybrid (в составе насосных групп), аналог насосов серии Alpha;
o Дымоудаление газового котла принудительное, дымоход коаксиальный, комплект Vaillantдля прохода через стену, диаметр 60/100 мм;
o Распределительный коллектор - компактный модуль Meibes Kombimix;
o Автоматика котельной – встроена в котел с дополнительным GSM-модулем.
Автоматизация котельной, отопления и теплого пола (вариант «Комфортный»).
o Автоматическое регулирование отопления по наружной температуре (погодное регулирование, при помощи модуля ZONT);
o Дистанционный контроль и управление работой газового котла отопления при помощи GSM-модуля и мобильного приложения ZONT.
Отопление дома в Новосибирске (проект отопления газобетонного дома).
o Выполнен теплотехнический расчет отопления дома из газобетона «Сибит»(утеплитель кровли - минеральная вата 200мм, пола - пенополистирол 50мм) с учетом теплопотерь через ограждающие конструкции при наружной температуре -39°С для Новосибирской области (по СП 131.13330.2012), а также теплоотдачи теплого пола (в помещениях, где он предусмотрен), расчетный расход тепла на отопление составил 11,65 кВт, удельные теплопотери 96,7 Вт/м.кв.;
o Подобраны приборы для отопления дома: стальные панельные радиаторы KERMI с нижним подключением (из пола);
o Схема радиаторного отопления дома двухтрубная, коллекторно-лучевая, с принудительной циркуляцией теплоносителя и температурным графиком 80/60°С, коллекторы отопления Rehau, на 5 и 7 отводов;
o Трубы отопления из сшитого полиэтилена Rehau;
o Теплоизоляция трубопроводов отопления Энергофлекс, толщиной 9мм;
o Теплоноситель в системе радиаторного отопления дома – подготовленная вода, предусмотрены средства защиты от образования накипи.
Водяной теплый пол дома в Новосибирске(проект теплого пола).
o Водяной теплый пол в доме предусмотрен на площади 60 м.кв., коллектор теплого пола Rehau - на 8 отводов;
o Предусмотрен отдельный контур котельной для теплоснабжения водяного теплого пола (насосная группа);
o Трубопроводы теплого пола – сшитый полиэтилен Rehau, основание для укладки - плиты STOUT;
o Регулирование температуры теплого пола - общее, контуром котельной.
Внутренний водопровод дома в Новосибирске (проект водоснабжения).
o Схема внутреннего водоснабжения дома – коллекторно-лучевая с рециркуляцией горячей воды через полотенцесушители, выполнен расчет 18-и точек водоснабжения;
o Трубопроводы системы водоснабжения – из сшитого полиэтилена Rehau;
o Теплоизоляция трубопроводов Энергофлекс Супер, толщиной 9мм;
o Для летнего водопровода предусмотрен наружный кран Meibes SEPP-Eis с защитой от замерзания.
Внутренняя канализация (проект канализации) дома в Новосибирске.
o Безнапорная, отвод стоков от санитарно-технических приборов предусмотрен в септик;
o Произведен расчет 11-ти точек бытовой канализации для дома, предусмотрено три противовакуумных клапана и один дренажный канал Advantix Vario для душевой кабины;
o Канализационные трубы Синикон, раструбные, из полипропилена, диаметром 50 и 110мм.
Для этого дома в Новосибирске выполнен проект электрики.






















