Выполненные проекты
Проект электрики таунхауса 224 м.кв.
Объект: таунхаус с цокольным этажом и мансардой, общей площадью 224 м.кв., расположенный в пос. Первомайское Московской области
Цена (стоимость) проекта электрики (электропроводки): 19 152 руб. со скидкой 10%, проект слаботочных кабельных линий - бесплатно.
Проект электрики таунхауса в пос. Первомайское выполнен: 22.06.2020
Состав проекта электрики таунхаус в пос. Первомайское:
1. Пояснительная записка. Общие данные по электроснабжению и освещению таунхауса в пос. Первомайское.
2. Однолинейные схемы вводного распределительного устройства и электрического распределительного щита таунхауса 224 м.кв.
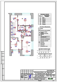
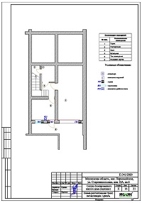
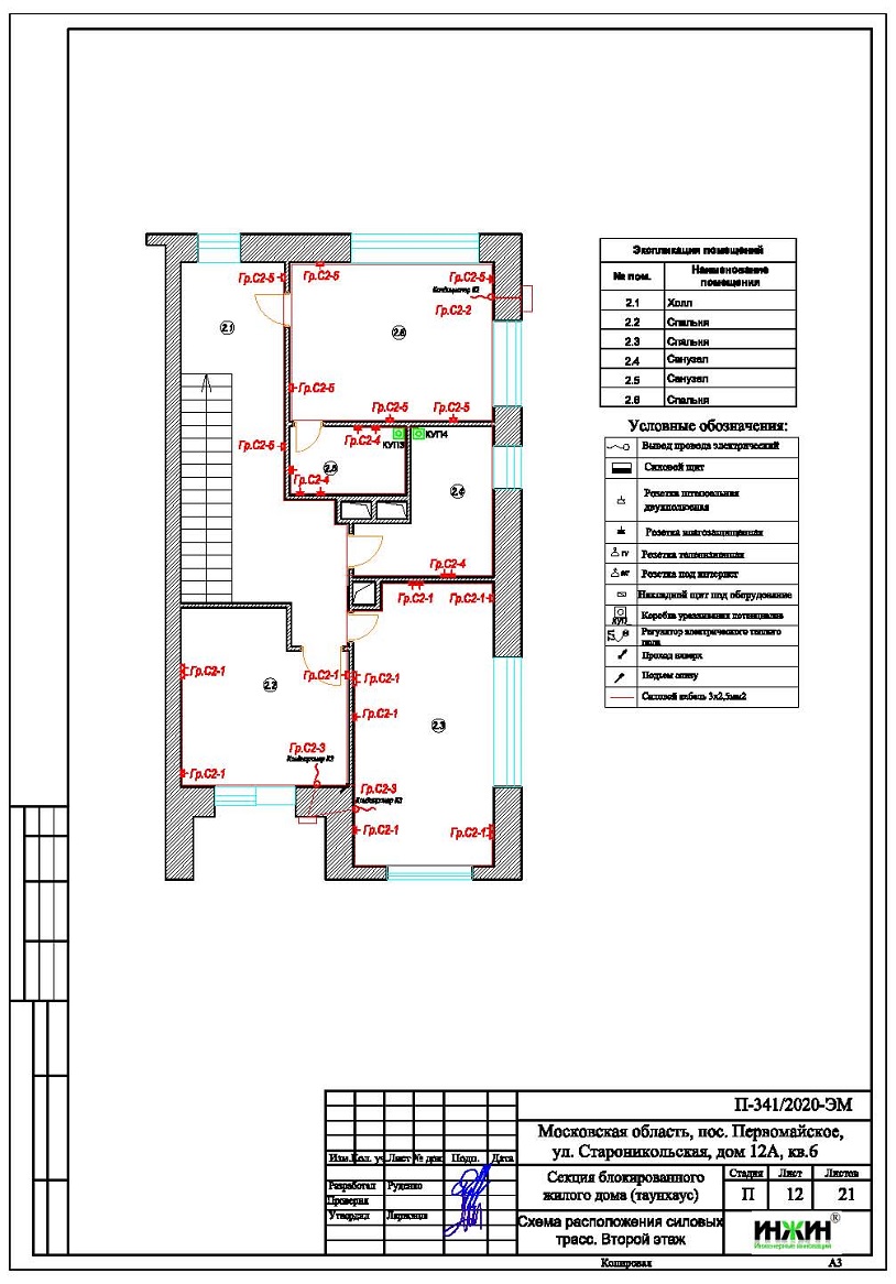
3. Чертежи электропроводки подвала и 1 этажа таунхауса в пос. Первомайское.
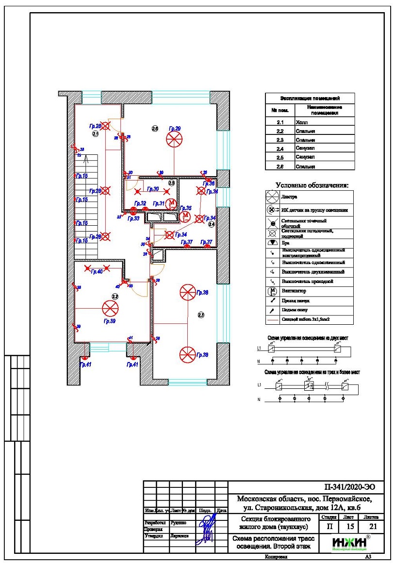
4. Чертежи групповых осветительных сетей таунхауса в пос. Первомайское.
5. Спецификация материалов и оборудования по электрике и электропроводке таунхауса в пос. Первомайское.
Объем проекта электрики таунхауса 224 м.кв.: 21 лист.
Проект электрики таунхауса площадью 224 м.кв. в пос. Первомайское- подробное описание.
Расчетные показатели по электроснабжению и освещению таунхауса в пос. Первомайское.
o Расчетная электрическая мощность дома составила 19,99 кВт, с учетом коэффициента спроса 0,5, принятого согласно СП 256.1325800.2016;
o При расчете учтено силовое оборудование: газовый котел, кондиционеры (3 шт.), сауна, приводы рольставен.
Распределительные электрические щиты таунхауса площадью 224 м.кв.
o Проектом предусмотрен распределительный электрический щит, размещенный в прихожей;
o Автоматические выключатели, дифференциальные автоматы, рубильники и УЗО в щите – ABB, в количестве 46 шт. размещены во навесном корпусе.
Силовая кабельная сеть (электропроводка) таунхауса в пос. Первомайское.
o Электропроводка таунхауса предусмотрена с использованием кабелей ВВГ нг -LS с медными жилами в ПВХ-оболочке (не поддерживает горение);
o Общая протяженность линий электроснабжения и освещения – 1499 метров;
o Электропроводка предусмотрена скрытым способом, в защитной гофрированной ПВХ-трубе (усиленной конструкции) и металлорукаве в виниловой оболочке (в стропильной системе кровли);
o Запроектировано 176 точек подключения розеток и выключателей освещения в доме;
o Предусмотрены слаботочные линии локальной вычислительной сети, видеонаблюдения и телевидения, общая протяженность - 690 метров..
Предусмотрено резервное электропитание однофазный бензиновый генератор мощностью 10 кВт (по выбору Заказчика).
Заказать проект электрики таунхауса дистанционно.
Для этого таунхауса в пос. Первомайское выполнен проект отопления, водоснабжения и канализации.






















