Выполненные проекты
Отопление таунхауса 224 м.кв. в пос. Первомайское
Объект: трехэтажный таунхаус из газобетонных блоков, площадью 224 м.кв., расположенный в пос. Первомайское Московской области
Вариант отопления: «Комфортный»
Цена проекта отопления, канализации и водоснабжения: 35 514 руб. со скидкой 10%, проект котельной - бесплатно.
Проект котельной, отопления, водоснабжения и канализации выполнен: 23.06.2020
Состав проекта котельной, отопления, канализации и водоснабжения таунхауса в пос. Первомайское:
1. Пояснительная записка проекта, общие данные по системам отопления, канализации и водоснабжения таунхауса 224 м.кв. в Московской области.
2. Тепломеханическая схема котельной с размещением оборудования в отдельном помещении таунхауса из газобетонных блоков.
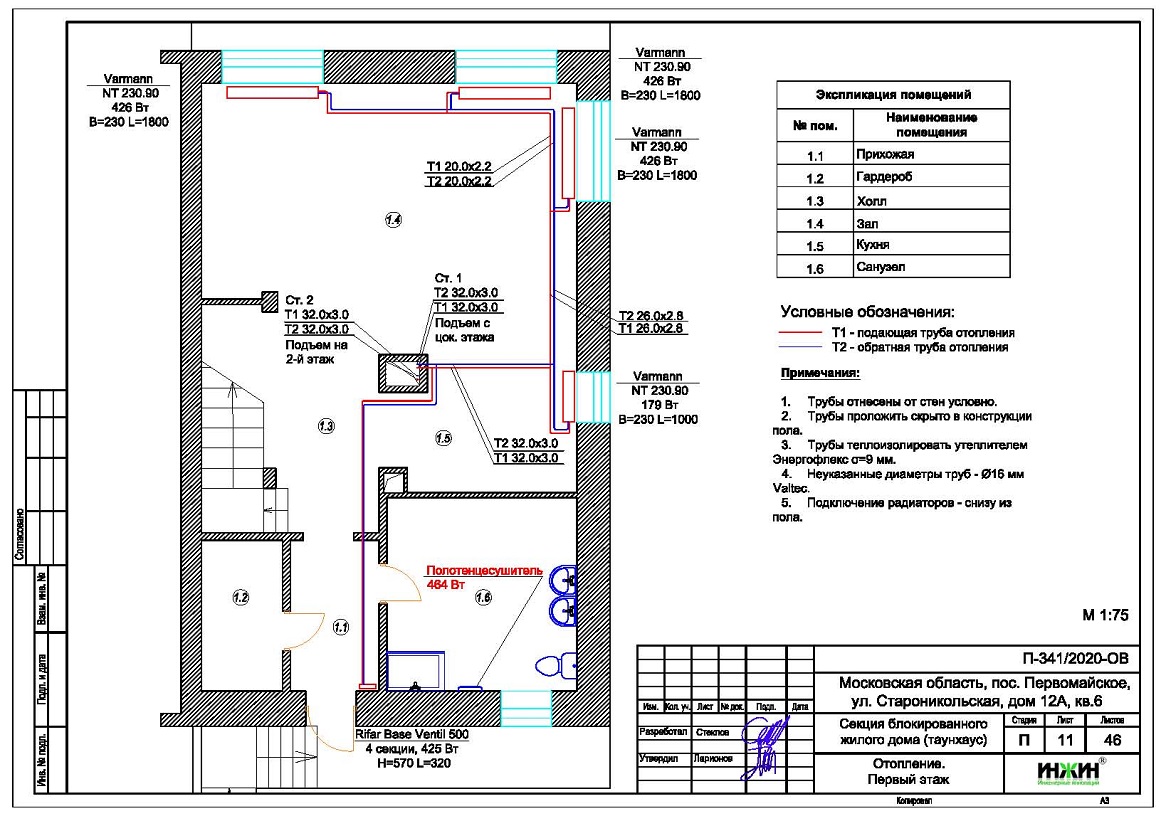
3. Комплект поэтажных чертежей радиаторного отопления таунхауса в пос. Первомайское.
4. Комплект чертежей теплого пола на площади 70 м.кв.
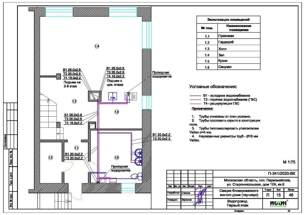
5. Комплект чертежей водоснабжения и канализации таунхауса из газобетонных блоков.
6. Типовые схемы системы отопления канализации и водоснабжения таунхауса 224 м.кв.
7. Теплотехнический расчет отопления таунхауса из газобетонных блоков.
8. Спецификация материалов и оборудования по котельной, отоплению, канализации и водоснабжению таунхауса в пос. Первомайское.
Объем проекта отопления, канализации и водоснабжения таунхауса: 46 листов.
Описание проекта отопления, котельной, канализации и водоснабжения таунхауса 224 м.кв. в пос. Первомайское.
Котельная таунхауса в пос. Первомайское(проект котельной бесплатно).
o Размещена в отдельном помещении таунхауса 224 м.кв.;
o Теплогенератор - настенный газовый котел Vaillant, мощностью 28 кВт;
o Контуры теплоснабжения котельной – радиаторное отопление 1 и 2 этажей таунхауса, теплый пол и горячее водоснабжение, для которого предусмотрен накопительный бойлер Vaillant uniSTOR, объемом 200 литров (подключение к коллектору котельной);
o Расширительные баки отопления и бойлера Flamco, объемом 25 и 18 литров;
o Циркуляционные насосы отопления и бойлера Grundfos, использованы энергоэффективные насосы UPM3 Hybrid (в составе насосных групп Meibes), аналог насосов серии Alpha;
o Дымоудаление естественное, дымоход из нержавеющей стали выполнен на объекте;
o Распределительный коллектор Meibes, с насосными группами;
o Автоматика котельной – встроена в котел с дополнительным GSM-модулем ZONT.
Отопление таунхауса в пос. Первомайское (проект отопления дома).
o Выполнен теплотехнический расчет отопления таунхауса из газобетонных блоков (утеплитель кровли - керамзит, 200мм, стен - минеральная вата 50мм) с учетом теплопотерь через ограждающие конструкции при наружной температуре -28°С для Московской области (по СП 131.13330.2012), а также теплоотдачи помещений с теплым полом, расчетный расход тепла на отопление таунхауса составил 20,6 кВт, удельные теплопотери 90,5 Вт/м.кв.;
o Подобраны приборы для отопления таунхауса: стальные панельные радиаторы KERMI с нижним подключением и встроенные в пол конвекторы Varmann с естественной конвекцией;
o Схема радиаторного отопления дома двухтрубная, коллекторно-лучевая, с принудительной циркуляцией теплоносителя и температурным графиком 80/60°С;
o Трубы отопления из металлопластика Valtec;
o Теплоизоляция трубопроводов отопления Энергофлекс, толщиной 9мм;
o Теплоноситель в системе радиаторного отопления таунхауса – подготовленная вода, предусмотрены средства защиты от образования накипи в системе отопления.
Водяной теплый пол таунхауса в пос. Первомайское (проект теплого пола).
o Водяной теплый пол в доме предусмотрен на площади 70 м.кв., коллектор теплого пола Valtec на 10 отводов;
o Предусмотрен отдельный контур котельной для теплоснабжения водяного теплого пола таунхауса (насосная группа котельной);
o Трубопроводы теплого пола – сшитый полиэтилен Valtec PEX-EVON;
o Регулирование температуры теплого пола - по помещениям, с использованием комнатных термостатов Valtec VT.AC709.0.0.
Внутренний водопровод таунхауса в пос. Первомайское (проект водоснабжения).
o Схема внутреннего водоснабжения таунхауса – коллекторно-лучевая с рециркуляцией горячей воды через водяные полотенцесушители, выполнен расчет 37-и точек водоснабжения и полотенцесушителей;
o Трубопроводы системы водоснабжения – из металлопластика Valtec;
o Теплоизоляция трубопроводов Энергофлекс Супер, толщиной 9мм;
o Летний водопровод проектом не предусмотрен.
Внутренняя канализация (проект канализации) таунхауса в пос. Первомайское.
o Комбинированная - безнапорная, отвод стоков от санитарно-технических приборов предусмотрен в септик;
o Произведен расчет 20-ти точек бытовой канализации;
o Канализационные трубы Синикон, раструбные, из полипропилена.
Заказать в нашей компании проект отопления, водоснабжения и канализации таунхауса в Московской области со скидкой.
Для этого таунхауса выполнен проект электрики и слаботочки.






















