Выполненные проекты
Проект электрики дома 340 м.кв. в КП "Аквавилла"
Объект: деревянный дом (брус) общей площадью 340 м.кв. в КП "Аквавилла" Мытищинского района Московской области
Цена (стоимость) проекта электрики (электропроводки): 29 070 руб. со скидкой 10%, проект слаботочных кабельных линий - бесплатно.
Проект электрики выполнен: 15.07.2020
Состав проекта электрики дома в КП "Аквавилла":
1. Пояснительная записка. Общие данные по электроснабжению и освещению частного дома в КП "Аквавилла".
2. Однолинейные схемы вводного распределительного устройства и электрического распределительного щита дома 340 м.кв.
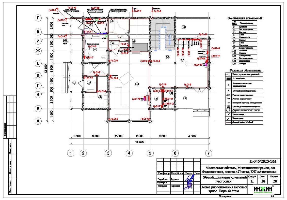
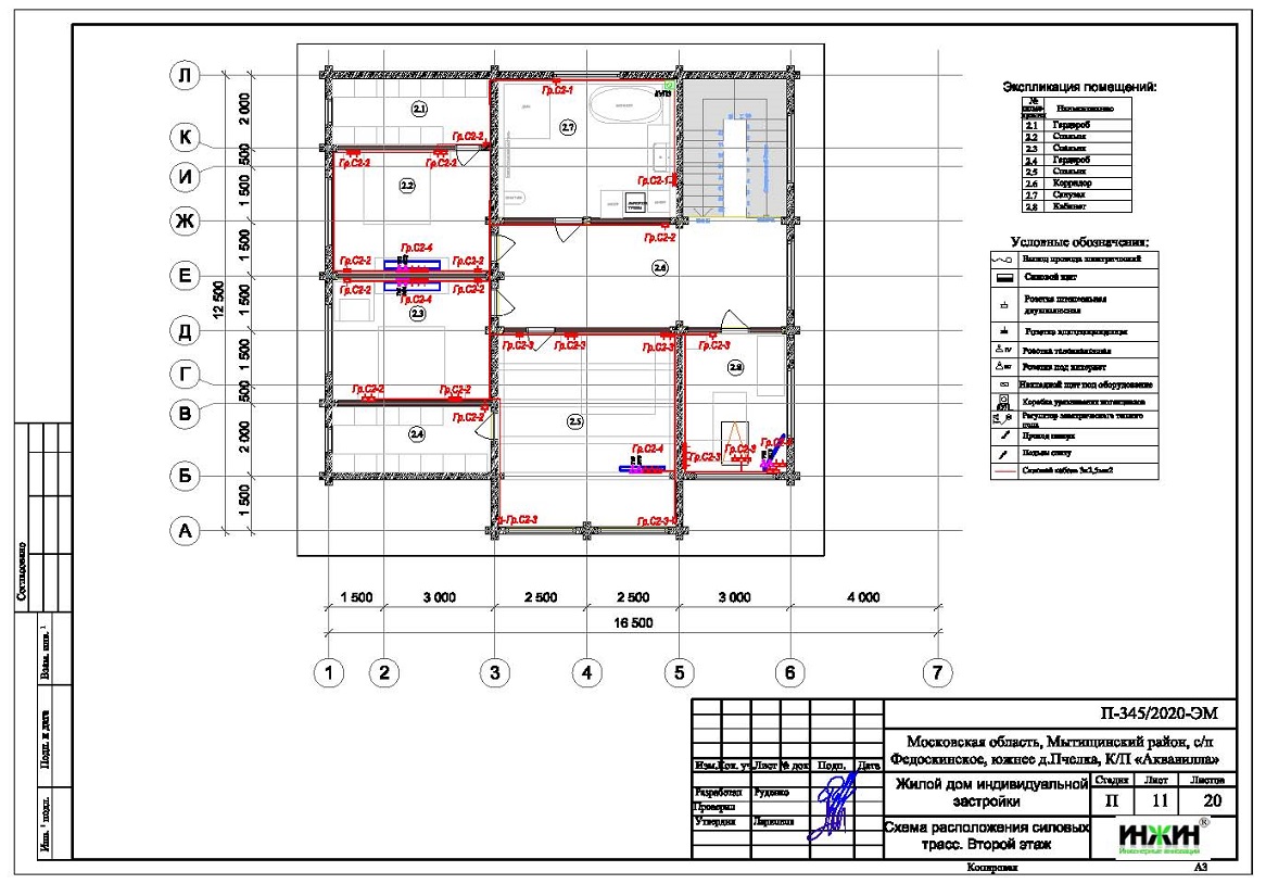
3. Чертежи электропроводки дома в КП "Аквавилла".
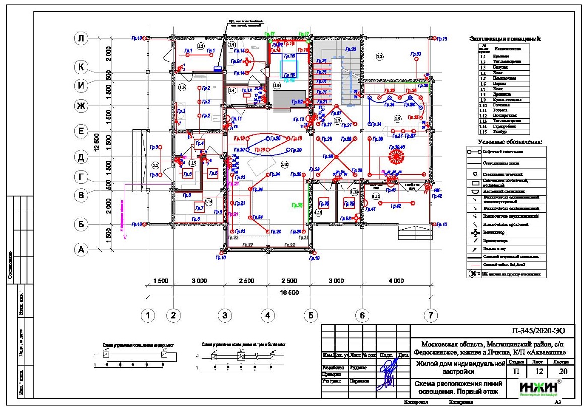
4. Чертежи групповых осветительных сетей дома в КП "Аквавилла".
5. Спецификация материалов и оборудования по электрике и электропроводке дома в КП "Аквавилла".
Объем проекта электрики дома 340 м.кв.: 20 листов.
Проект электрики дома площадью 340 м.кв. в КП "Аквавилла"- подробное описание.
Расчетные показатели по электроснабжению и освещению дома в КП "Аквавилла".
o Расчетная электрическая мощность дома составила 18,46 кВт, с учетом коэффициента спроса 0,6, принятого согласно СП 256.1325800.2016;
o При расчете учтено силовое оборудование: парогенератор, газовый котел, скважинный насос.
Распределительные электрические щиты дома площадью 340 м.кв.
o Проектом предусмотрен распределительный электрический щит, размещенный в техническом помещении;
o Автоматические выключатели, дифференциальные автоматы, рубильники и УЗО в щите – ABB, в количестве 31 шт. размещены в пристраиваемом корпусе.
Силовая кабельная сеть (электропроводка) дома в КП "Аквавилла"
o Электропроводка дома и бани предусмотрена с использованием кабелей ВВГ нг -LS с медными жилами в ПВХ-оболочке (не поддерживает горение);
o Общая протяженность линий электроснабжения и освещения – 1490 метров, вводные кабельные линии - бронированные кабели 130 метров;
o Электропроводка предусмотрена скрытым способом, в металлорукаве в виниловой оболочке;
o Запроектировано 175 точек подключения розеток и выключателей освещения в доме;
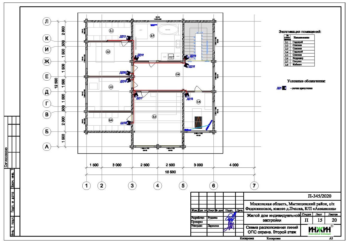
o Предусмотрены слаботочные линии локальной вычислительной сети и телевидения, общая протяженность - 790 метров, а также видеонаблюдение участка с использованием провода КВК-П-2Х0,75 ММ (50 метров).
Предусмотрено резервное электропитание - трехфазный дизельный генератор мощностью 10 кВт (по выбору Заказчика).






















