Выполненные проекты
Отопление дома с баней 104 м.кв.
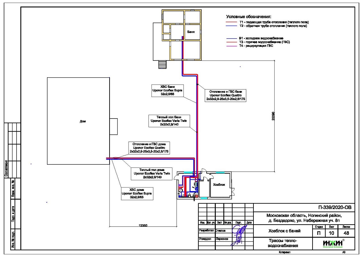
Объект: дом (хозблок) с деревянной баней общей площадью 104 м.кв. в дер. Бездедово Ногинского района Московской области
Вариант отопления: «Комфортный»
Цена проекта отопления, канализации и водоснабжения: 18 360 руб. со скидкой 10%, проект котельной - бесплатно.
Проект котельной, отопления, водоснабжения и канализации выполнен: 08.07.2020
Состав проекта котельной, отопления, канализации и водоснабжения дома с баней в дер. Бездедово:
1. Пояснительная записка проекта, общие данные по системам отопления, канализации и водоснабжения дома с баней 104 м.кв. в Московской области.
2. Тепломеханическая схема котельной с размещением оборудования в отдельном строении хозблока из газобетонных блоков.
3. Комплект поэтажных чертежей радиаторного отопления дома с баней в дер. Бездедово.
4. Комплект чертежей теплого пола на площади 58 м.кв.
5. Комплект чертежей водоснабжения и канализации дома с баней в дер. Бездедово.
6. Типовые схемы системы отопления канализации и водоснабжения дома 104 м.кв.
7. Теплотехнический расчет отопления дома и бани из дерева.
8. Спецификация материалов и оборудования по котельной, отоплению, канализации и водоснабжению дома с баней в дер. Бездедово.
Объем проекта отопления, канализации и водоснабжения дома: 48 листов.
Описание проекта отопления, котельной, канализации и водоснабжения частного дома с баней 104 м.кв.
Котельная (хозблок) в дер. Бездедово(проект котельной бесплатно).
o Размещена в отдельном строении - хозблоке;
o Теплогенераторы - основной, настенный газовый котел Vaillant, мощностью 36 кВт, резервный- электрический котел Protherm RAY (СКАТ), мощностью 18 кВт;
o Контуры теплоснабжения котельной – радиаторное отопление дома (проектируемого), теплый пол дома (проектируемого), радиаторное отопление бани и хозблока, теплый пол бани и горячее водоснабжение всех строений, для которого предусмотрен накопительный бойлер Vaillant uniSTOR, объемом 200 литров (подключение к коллектору котельной);
o Расширительные баки отопления и бойлера Flamco, объемом 35 и 18 литров;
o Циркуляционные насосы отопления и бойлера Grundfos, использованы энергоэффективные насосы UPM3 Hybrid (в составе модуля Kombimix), аналог насосов серии Alpha;
o Дымоудаление принудительное, дымоход коаксиальный, комплект Vaillant для прохода через стену, диаметр 60/100 мм;
o Распределительный коллектор - настенный Meibes, с насосными группами и гидравлическим разделителем;
o Автоматика котельной – контроллер отопления ZONT H-2000.
Отопление дома с баней в дер. Бездедово (проект отопления дома).
o Выполнен теплотехнический расчет отопления дома (хозблока) и бани (из бревна) (утеплитель кровли всех строений - минеральная вата Rockwool, 200мм) с учетом теплопотерь через ограждающие конструкции при наружной температуре -28°С для Московской области (по СП 131.13330.2012), а также теплоотдачи помещений с теплым полом (в бане), расчетный расход тепла на отопление составил, соответственно, для хозблока - 8,46 кВт, удельные теплопотери 215,8 Вт/м.кв., для бани - 8,1 кВт, удельные теплопотери 162,1 Вт/м.кв.;
o Подобраны приборы для отопления дома и бани: стальные панельные радиаторы KERMI с нижним подключением;
o Схема радиаторного отопления дома двухтрубная, коллекторно-лучевая, с принудительной циркуляцией теплоносителя и температурным графиком 80/60°С;
o Трубы отопления из металлопластика Valtec;
o Трассы теплоснабжения строений - из теплоизолированных труб Uponor Ecoflex Supra Plus и Ecoflex Quattro Midi;
o Теплоноситель в системе радиаторного отопления дома и бани – подготовленная вода, предусмотрены средства защиты от образования накипи.
Водяной теплый пол бани в дер. Бездедово (проект теплого пола).
o Водяной теплый пол в доме предусмотрен на площади 58 м.кв., коллектор теплого пола Valtec на 8 петель;
o Предусмотрен отдельный контур котельной для теплоснабжения водяного теплого пола дома (насосная группа в составе котельной);
o Трубопроводы теплого пола – сшитый полиэтилен Valtec;
o Регулирование температуры теплого пола - общее, контуром котельной.
Внутренний водопровод дома с баней в дер. Бездедово (проект водоснабжения).
o Схема внутреннего водоснабжения дома – коллекторно-лучевая с рециркуляцией горячей воды через водяной полотенцесушитель, выполнен расчет 16-и точек водоснабжения и полотенцесушителей бани и 3-х точек в хозблоке;
o Трубопроводы системы водоснабжения – из металлопластика Valtec;
o Теплоизоляция трубопроводов Энергофлекс Супер, толщиной 9мм;
o Летний водопровод проектом не предусмотрен.
Внутренняя канализация (проект канализации) дома с баней в дер. Бездедово.
o Безнапорная, отвод стоков от санитарно-технических приборов предусмотрен в септик;
o Произведен расчет 13-ти точек бытовой канализации для бани и хозблока;
o Канализационные трубы Синикон, раструбные, из полипропилена.
Заказать в нашей компании проект отопления, водоснабжения и канализации загородного дома в Московской области со скидкой.
Для этого дома с баней в дер. Бездедово выполнен проект электроснабжения и слаботочки.






















