Выполненные проекты
Проект электрики дома в ДНП "Селинские Дачи"
Объект: деревянный дом (брус) общей площадью 220 м.кв. в ДНП "Селинские Дачи" г.о. Клин Московской области
Цена (стоимость) проекта электрики (электропроводки): 18 810 руб. со скидкой 10%, проект слаботочных кабельных линий - бесплатно.
Проект электрики выполнен: 10.08.2020
Состав проекта электрики дома в ДНП "Селинские Дачи":
1. Пояснительная записка. Общие данные по электроснабжению и освещению частного дома в ДНП "Селинские Дачи".
2. Однолинейные схемы вводного распределительного устройства и электрического распределительного щита дома 220 м.кв.
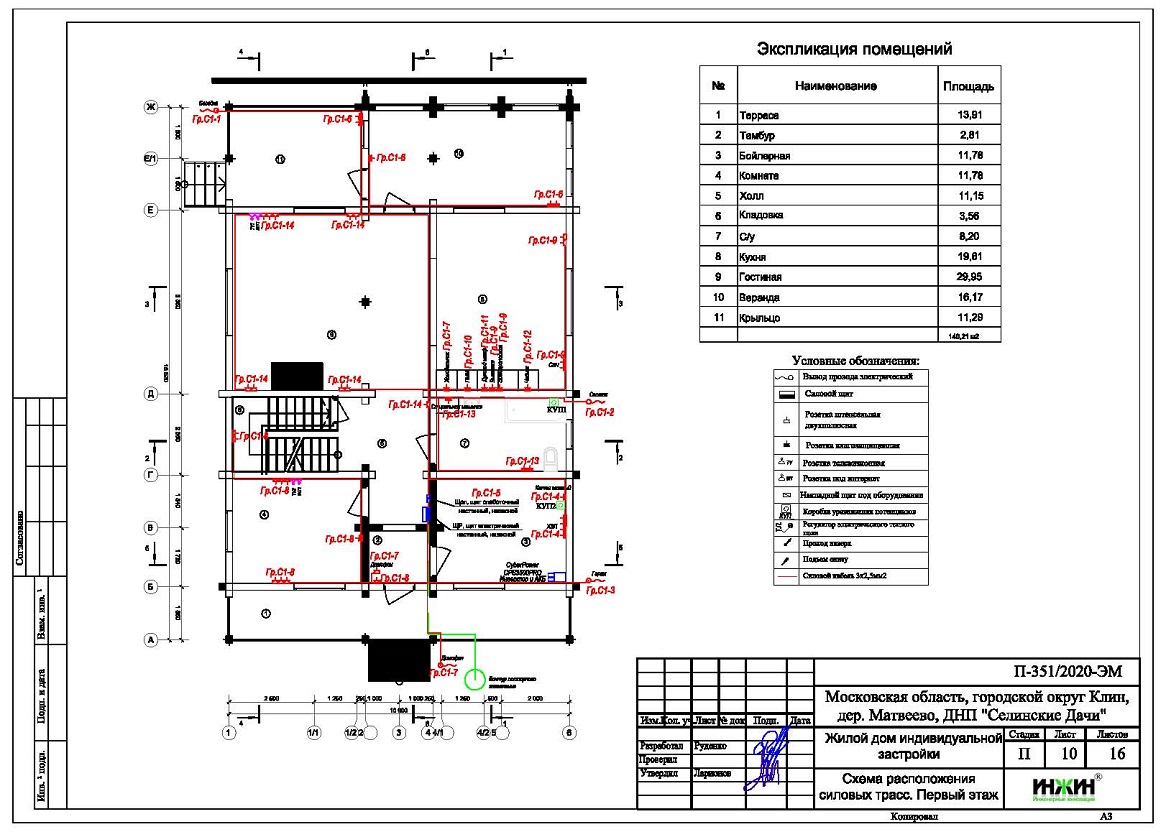
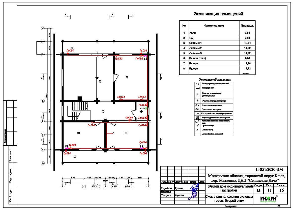
3. Чертежи электропроводки дома в ДНП "Селинские Дачи".
4. Чертежи групповых осветительных сетей дома в ДНП "Селинские Дачи".
5. Спецификация материалов и оборудования по электрике и электропроводке дома в ДНП "Селинские Дачи".
Объем проекта электрики дома 220 м.кв.: 16 листов.
Проект электрики дома площадью 220 м.кв. в ДНП "Селинские Дачи"- подробное описание.
Расчетные показатели по электроснабжению и освещению дома в ДНП "Селинские Дачи".
o Расчетная электрическая мощность дома составила 13,86 кВт, с учетом коэффициента спроса 0,8, принятого согласно СП 256.1325800.2016;
o При расчете учтено силовое оборудование: септик, газовый котел, скважинный насос.
Распределительные электрические щиты дома площадью 220 м.кв.
o Проектом предусмотрен распределительный электрический щит, размещенный в техническом помещении;
o Автоматические выключатели, дифференциальные автоматы, рубильники и УЗО в щите – ABB, в количестве 28 шт. размещены в пристраиваемом корпусе.
Силовая кабельная сеть (электропроводка) дома в ДНП "Селинские Дачи".
o Электропроводка дома предусмотрена с использованием кабелей ВВГ нг -LS с медными жилами в ПВХ-оболочке (не поддерживает горение);
o Общая протяженность линий электроснабжения и освещения – 998 метров, вводная кабельная линия - бронированный кабель 90 метров;
o Электропроводка предусмотрена скрытым способом, в металлорукаве в виниловой оболочке;
o Запроектировано 106 точек подключения розеток и выключателей освещения в доме;
o Предусмотрены слаботочные линии телевидения, общая протяженность - 120 метров.
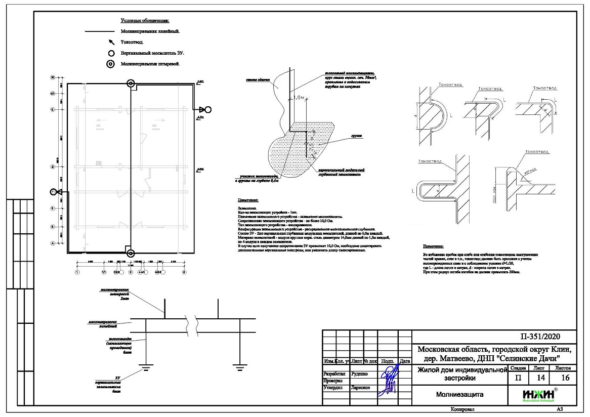
Предусмотрена система молниезащиты и резервное электропитание - однофазный инвертор CyberPower мощностью 2,5 кВт.
Заказать проект электрики дома дистанционно.
Для этого дома в ДНП "Селинские Дачи" выполнен проект отопления, водоснабжения и канализации.



















