Выполненные проекты
Проект отопления дома 176 м.кв. в Калужской области
Объект: двухэтажный загородный дом в СНТ «Барсуки», Жуковского района, Калужской области, площадью 176 м.кв.
Вариант отопления: «Комфортный»
Цена проекта отопления, канализации и водоснабжения: 28 368 руб. со скидкой 10%, проект котельной - бесплатно.
Проект котельной, отопления, водоснабжения и канализации дома в СНТ «Барсуки»выполнен: 02.10.2020
Состав проекта котельной, отопления, канализации и водоснабжения дома в СНТ «Барсуки»:
1. Пояснительная записка проекта, общие данные по системам отопления, канализации и водоснабжения дома 176 м.кв. в СНТ «Барсуки».
2. Тепломеханическая схема котельной с размещением оборудования в помещении 1-го этажа дома в СНТ «Барсуки».
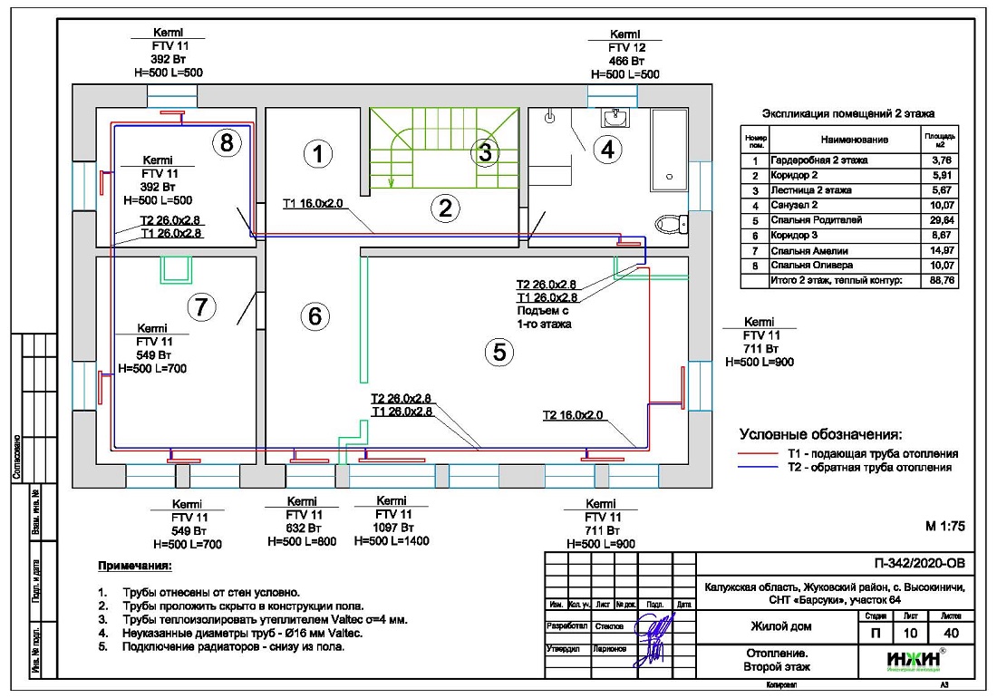
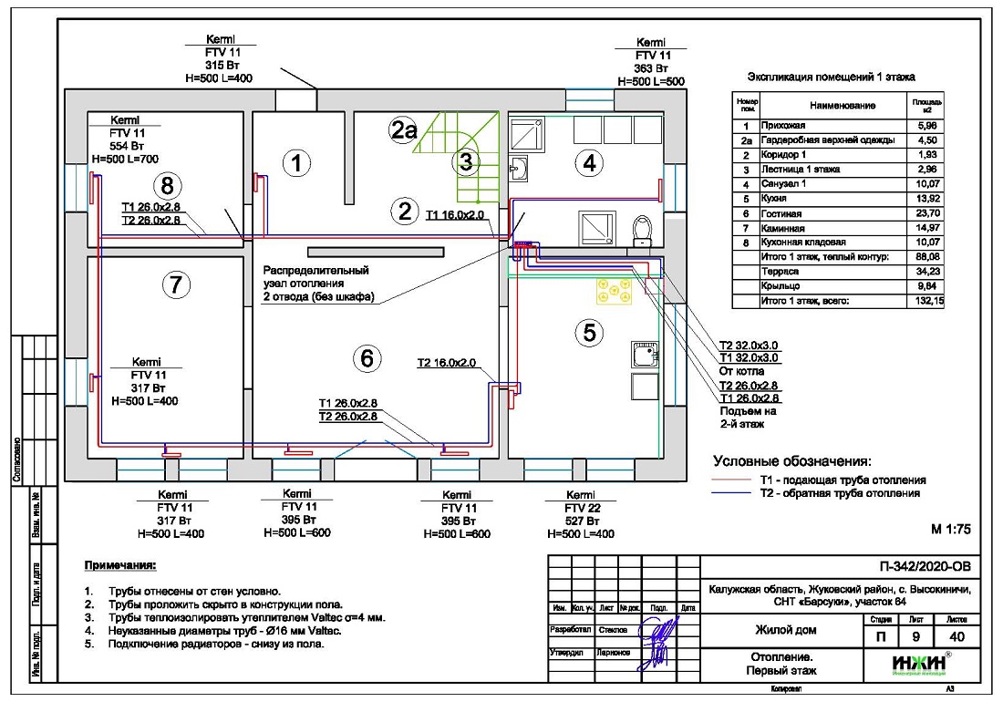
3. Комплект поэтажных чертежей радиаторного отопления дома в СНТ «Барсуки».
4. Комплект чертежей теплого пола дома на площади 64 м.кв.
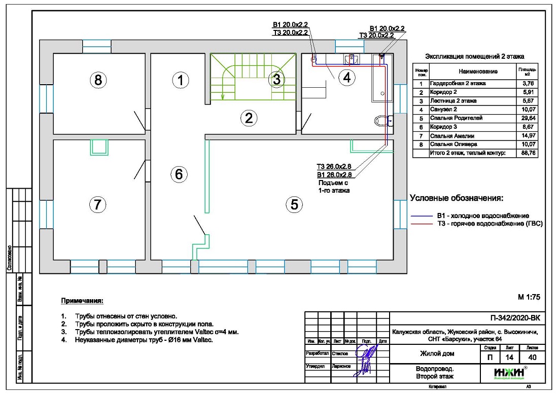
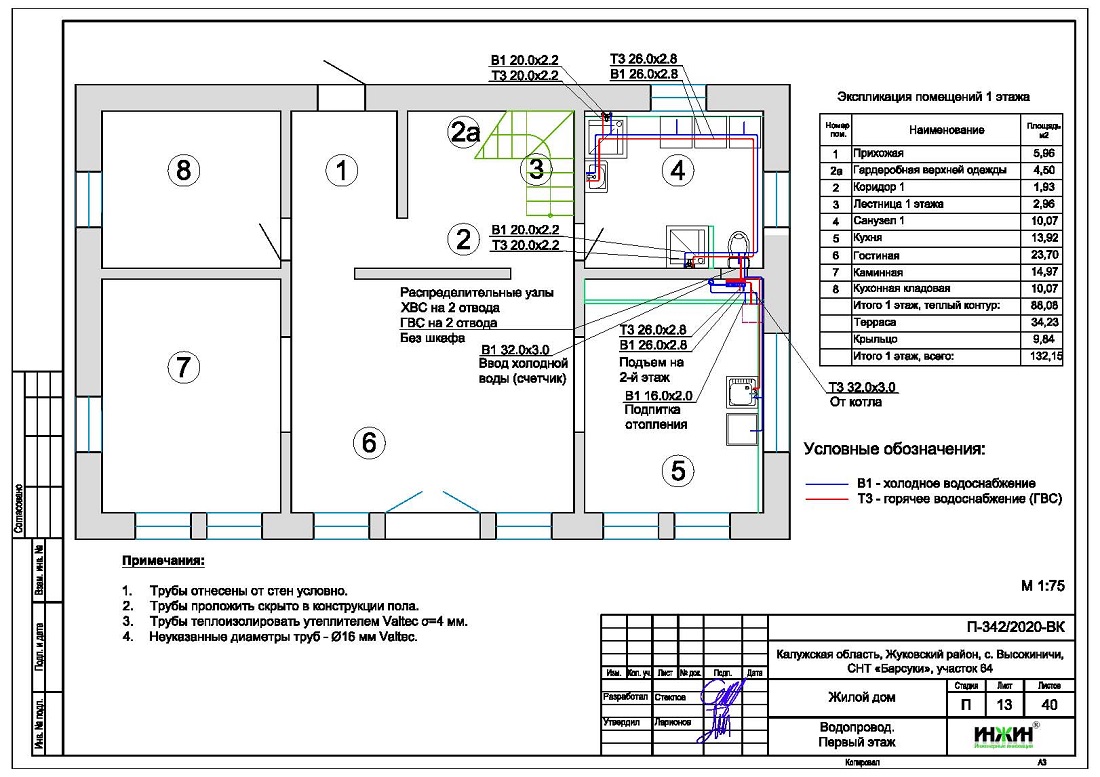
5. Комплект чертежей водоснабжения и канализации частного дома 176 м.кв.
6. Типовые схемы системы отопления канализации и водоснабжения дома 176 м.кв.
7. Теплотехнический расчет отопления дома 176 м.кв.
8. Спецификация материалов и оборудования по котельной, отоплению, канализации и водоснабжению дома в СНТ «Барсуки».
Объем проекта отопления, канализации и водоснабжения дома: 40 листов.
Описание проекта отопления, котельной, канализации и водоснабжения частного дома в СНТ «Барсуки».
Котельная частного дома в СНТ «Барсуки»(проект котельной бесплатно).
o Размещена в помещении 1-го этажа дома в СНТ «Барсуки»;
o Теплогенератор котельной - настенный газовый двухконтурный котел Vaillant, мощностью 28 кВт;
o Контуры теплоснабжения котельной – радиаторное отопление дома и теплый пол (смесительный узел) и горячее водоснабжение, (второй контур котла);
o Расширительный бак отопления строен в котел;
o Циркуляционный насос отопления встроен в котел, теплого пола Grundfos, использован энергоэффективный насос серии Alpha;
o Дымоудаление газового котла принудительное, дымоход раздельный, трубы Vaillant, диаметр 80 мм;
o Автоматика котельной – встроена в котел с дополнительным GSM-модулем.
Автоматизация котельной, отопления и теплого пола (вариант «Комфортный»).
o Автоматическое регулирование отопления по наружной температуре (погодное регулирование, при помощи модуля ZONT);
o Дистанционный контроль и управление работой газового котла отопления при помощи GSM-модуля и мобильного приложения ZONT.
Отопление дома в СНТ «Барсуки» (проект отопления дома в Калужской области).
o Выполнен теплотехнический расчет отопления дома из многослойной конструкции стенс учетом теплопотерь через ограждающие конструкции при наружной температуре -27°С для Калужской области (по СП 131.13330.2012), расчетный расход тепла на отопление составил 12,02 кВт, удельные теплопотери 68,0 Вт/м.кв.;
o Подобраны приборы для отопления дома: стальные панельные радиаторы KERMI с нижним подключением (из пола);
o Схема радиаторного отопления дома двухтрубная, с петлей Тихельмана и принудительной циркуляцией теплоносителя, температурный график 80/60°С;
o Трубы отопления из металлопластика Valtec;
o Теплоизоляция трубопроводов отопления Энергофлекс, толщиной 9мм;
o Теплоноситель в системе радиаторного отопления дома – подготовленная вода, предусмотрены средства защиты от образования накипи.
Водяной теплый пол дома в СНТ «Барсуки»(проект теплого пола).
o Водяной теплый пол в доме предусмотрен на площади 64 м.кв., коллектор теплого пола Valtec - на 10 отводов;
o Предусмотрен отдельный контур котельной для теплоснабжения водяного теплого пола (смесительный узел Valtec VT.COMBI.0.180);
o Трубопроводы теплого пола – сшитый полиэтилен Valtec, основание для укладки - плиты STOUT;
o Регулирование температуры теплого пола - общее, смесительным узлом.
Внутренний водопровод дома в СНТ «Барсуки»(проект водоснабжения).
o Схема внутреннего водоснабжения дома – тройниковая тупиковая с рециркуляцией горячей воды через полотенцесушители, выполнен расчет 19-и точек водоснабжения;
o Трубопроводы системы водоснабжения – из металлопластика Valtec;
o Теплоизоляция трубопроводов Энергофлекс Супер, толщиной 9мм.
Внутренняя канализация (проект канализации) дома в СНТ «Барсуки».
o Безнапорная, отвод стоков от санитарно-технических приборов предусмотрен в септик;
o Произведен расчет 14-ти точек бытовой канализации для дома, предусмотрен противовакуумный клапан;
o Канализационные трубы Синикон, раструбные, из полипропилена, диаметром 50 и 110мм.






















