Выполненные проекты
Проект отопления дома в Ивановской области
Объект: двухэтажный загородный дом из клееного бруса, площадью 160 м.кв., расположенный в дер. Худынино, Ивановской области
Вариант отопления: «Комфортный»
Цена проекта отопления и водоснабжения: 20 880 руб. со скидкой 10%, проект котельной - бесплатно.
Проект котельной, отопления и водоснабжения выполнен: 06.11.2020
Состав проекта котельной, отопления и водоснабжения дома в дер. Худынино, Ивановской области:
1. Пояснительная записка проекта, общие данные по системам отопления и водоснабжения дома 160 м.кв. в Ивановской области.
2. Тепломеханическая схема котельной с размещением оборудования в отдельном помещении дома из бруса.
3. Комплект поэтажных чертежей радиаторного отопления дома в дер. Худынино, Ивановской области.
4. Комплект чертежей теплого пола на площади 70 м.кв.
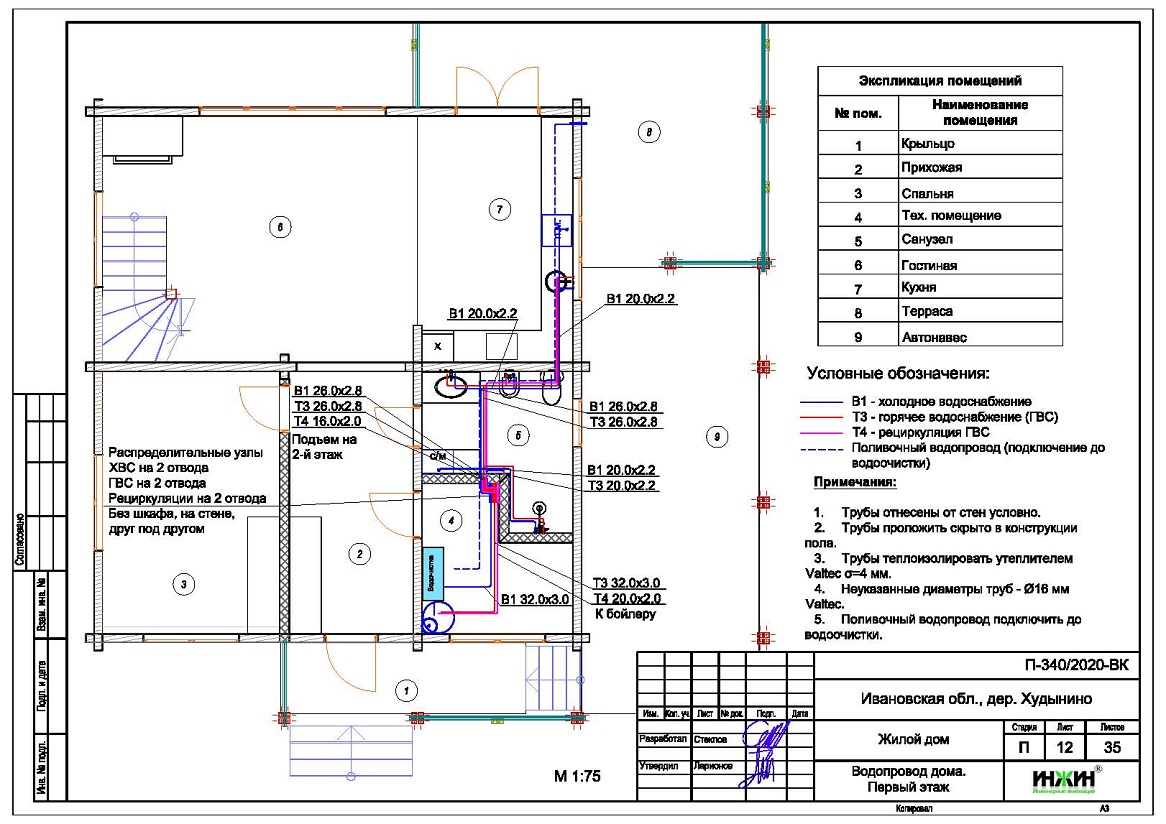
5. Комплект чертежей водоснабжения частного дома из дерева.
6. Типовые схемы системы отопления канализации и водоснабжения дома 160 м.кв.
7. Теплотехнический расчет отопления дома из бруса.
8. Спецификация материалов и оборудования по котельной, отоплению и водоснабжению дома в дер. Худынино, Ивановской области.
Объем проекта отопления и водоснабжения дома: 35 листов.
Описание проекта отопления, котельной и водоснабжения частного дома 160 м.кв. в дер. Худынино, Ивановской области.
Котельная частного дома в дер. Худынино, Ивановской области(проект котельной бесплатно).
o Размещена в отдельном помещении дома 160 м.кв.;
o Теплогенераторы - основной, настенный газовый котел Vaillant, мощностью 24 кВт, резервный- электрический котел Vaillant eloBLOCK, мощностью 14 кВт;
o Контуры теплоснабжения котельной – радиаторное отопление дома и горячее водоснабжение, для которого предусмотрен накопительный бойлер Vaillant, объемом 200 литров (подключение к коллектору котельной);
o Расширительные баки отопления и бойлера Flamco, объемом по 18 литров;
o Циркуляционные насосы отопления и бойлера Grundfos, использованы энергоэффективные насосы UPM3 Hybrid (в составе насосных групп Meibes), аналог насосов серии Alpha;
o Дымоудаление принудительное, дымоход коаксиальный, комплект Vaillant для прохода через кровлю, диаметр 80/125 мм;
o Распределительный коллектор - настенный компактный модуль Meibes Kombimix, с насосными группами;
o Автоматика котельной – контроллер отопления ZONT-2000 со встроенным GSM-модулем.
Отопление дома в дер. Худынино, Ивановской области (проект отопления дома).
o Выполнен теплотехнический расчет отопления дома из бруса (утеплитель кровли - минеральная вата Rockwool, 250мм, пола - пенопласт 50мм) с учетом теплопотерь через ограждающие конструкции при наружной температуре -30°С для Ивановской области (по СП 131.13330.2012), расчетный расход тепла на отопление дома составил 17 кВт, удельные теплопотери 104,3 Вт/м.кв.;
o Подобраны приборы для отопления дома: стальные панельные радиаторы KERMI с нижним подключением и стальные напольные конвекторы Kermi KKV;
o Схема радиаторного отопления дома двухтрубная, коллекторно-лучевая, с принудительной циркуляцией теплоносителя и температурным графиком 80/60°С;
o Трубы отопления из металлопластика Valtec;
o Теплоизоляция трубопроводов отопления Энергофлекс, толщиной 9мм;
o Теплоноситель в системе радиаторного отопления дома – подготовленная вода, предусмотрены средства защиты от образования накипи в системе отопления.
Водяной теплый пол дома в дер. Худынино, Ивановской области (проект теплого пола).
o Водяной теплый пол в доме предусмотрен на площади 70 м.кв., 9 контуров;
o Предусмотрена насосная группа в котельной;
o Трубопроводы теплого пола – сшитый полиэтилен Valtec;
o Регулирование температуры теплого пола - общее, автоматикой котельной.
Внутренний водопровод дома в дер. Худынино, Ивановской области (проект водоснабжения).
o Схема внутреннего водоснабжения дома – коллекторно-лучевая с рециркуляцией горячей воды через водяные полотенцесушители, выполнен расчет 21-й точки водоснабжения и полотенцесушителей;
o Трубопроводы системы водоснабжения – из металлопластика Valtec;
o Теплоизоляция трубопроводов Энергофлекс Супер, толщиной 9мм;
o Летний водопровод проектом не предусмотрен.



















