Выполненные проекты
Электропроводка твинхауса в ДСК "Поречье" (правая часть)
Объект: твинхаус из бруса площадью 175 м.кв. (правая часть) в ДСК "Поречье" Московской области
Цена (стоимость) проекта электрики (электропроводки): 14 963 руб. со скидкой 10%, проект слаботочных кабельных линий - бесплатно.
Проект электрики выполнен: 17.11.2020
Состав проекта электрики твинхауса в ДСК "Поречье" (правая часть):
1. Пояснительная записка. Общие данные по электроснабжению и освещению твинхауса в ДСК "Поречье".
2. Однолинейные схемы вводного распределительного устройства и электрических распределительных щитов твинхауса 175 м.кв.
3. Чертежи электропроводки твинхауса в ДСК "Поречье".
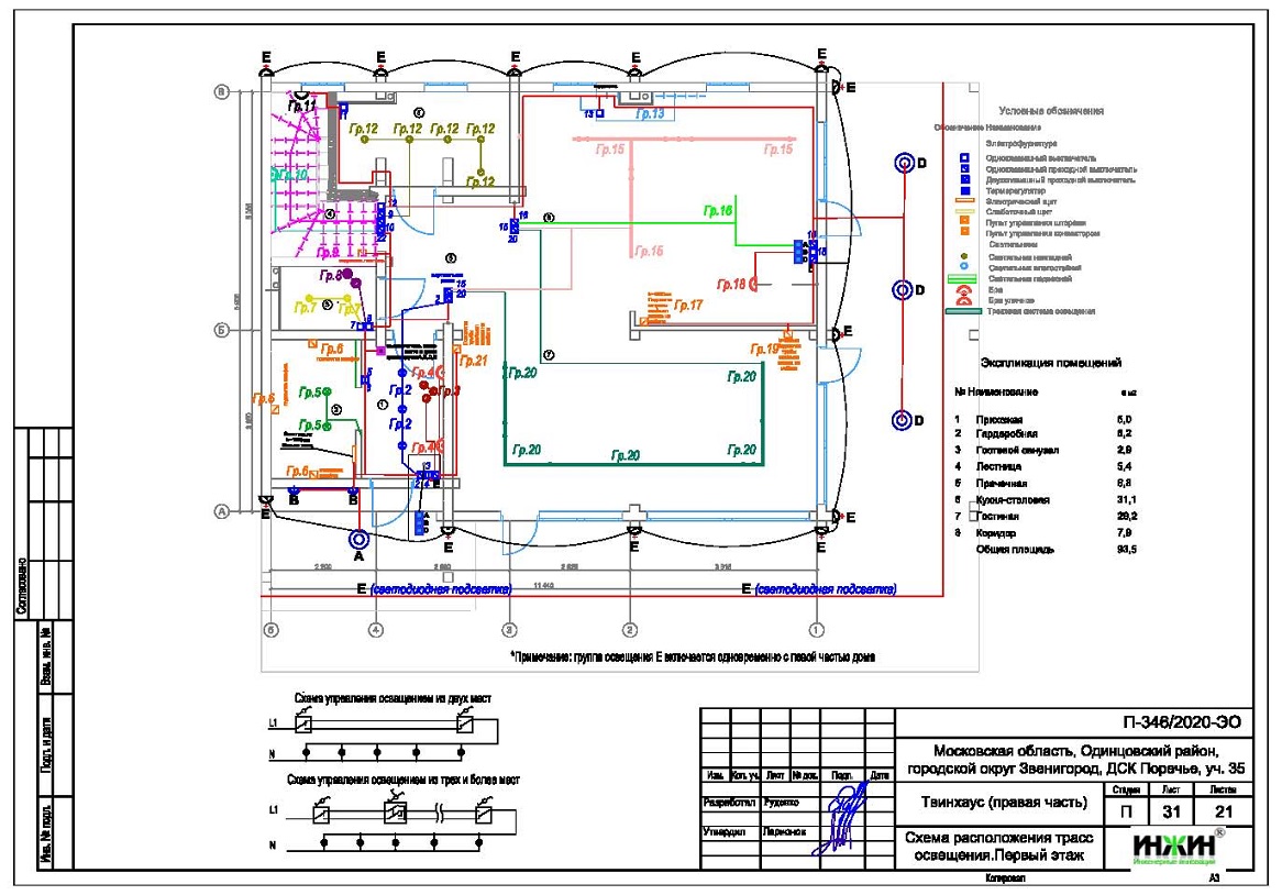
4. Чертежи групповых осветительных сетей твинхауса в ДСК "Поречье".
5. Спецификация материалов и оборудования по электрике и электропроводке твинхауса в ДСК "Поречье".
Объем проекта электрики дома 175 м.кв.: 22 листа.
Проект электрики твинхауса 175 м.кв. в ДСК "Поречье" (правая часть)- подробное описание.
Расчетные показатели по электроснабжению и освещению твинхауса в ДСК "Поречье".
o Расчетная электрическая мощность дома составила 14,48 кВт, с учетом коэффициента спроса 0,6, принятого согласно СП 256.1325800.2016;
o При расчете учтено силовое оборудование: кондиционеры, увлажнитель.
Распределительные электрические щиты твинхауса в ДСК "Поречье" площадью 175 м.кв.
o Проектом предусмотрен один распределительный электрический щит, размещенный под лестницей;
o Автоматические выключатели, дифференциальные автоматы, рубильники и УЗО в щите – ABB, в количестве 27 шт. размещены в пристраиваемом корпусе.
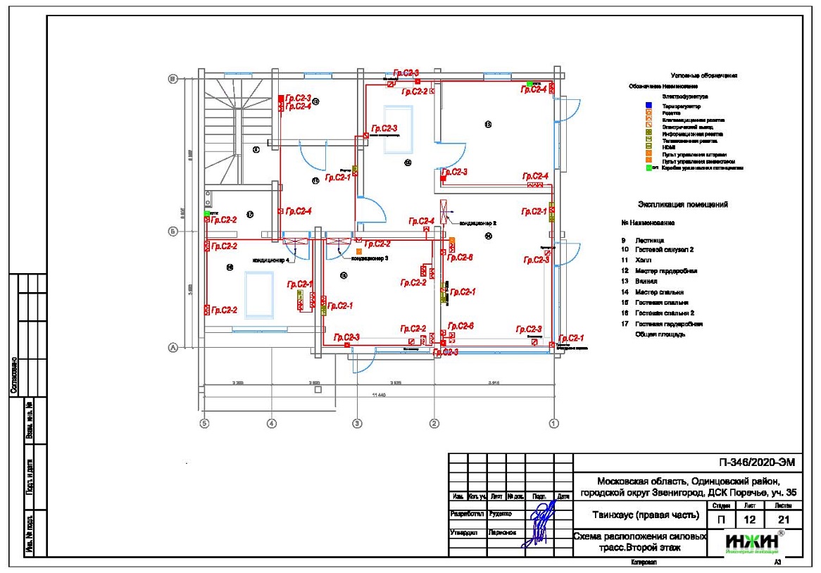
Силовая кабельная сеть (электропроводка) твинхауса в ДСК "Поречье" (правая часть).
o Электропроводка дома предусмотрена с использованием кабелей ВВГ нг -LS с медными жилами в ПВХ-оболочке (не поддерживает горение);
o Общая протяженность линий электроснабжения и освещения – 1 350 метров;
o Электропроводка предусмотрена скрытым способом, в металлорукаве в виниловой оболочке;
o Запроектировано 146 точек подключения розеток и выключателей освещения в доме;
o Предусмотрены слаботочные линии телевидения, общая протяженность - 150 метров.
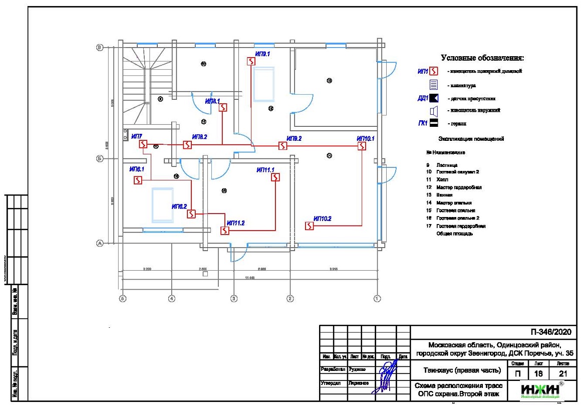
Предусмотрена системы охранно-пожарной сигнализации и резервное электропитание - однофазный инвертор CyberPower мощностью 5 кВт.























