Выполненные проекты
Проект отопления твинхауса из бруса 175 м.кв.
Объект: часть твинхауса (правая часть) из бруса в ДСК "Поречье" Московской области, площадью 175 м.кв.
Вариант отопления: «Комфортный+»
Цена проекта отопления, канализации и водоснабжения: 30 050 руб. со скидкой 10%.
Проект отопления, водоснабжения и канализации твинхауса в ДСК "Поречье" выполнен: 19.11.2020
Состав проекта отопления, канализации и водоснабжения твинхауса в ДСК "Поречье" (правая часть):
1. Пояснительная записка проекта, общие данные по системам отопления, канализации и водоснабжения твинхауса 175 м.кв. в Московской области.
2. Комплект поэтажных чертежей радиаторного отопления твинхауса в ДСК "Поречье" (правая часть).
3. Комплект чертежей теплого пола дома на площади 86 м.кв.
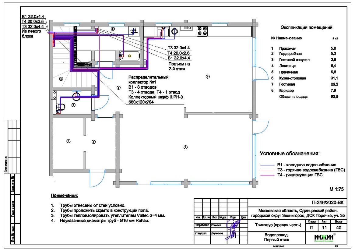
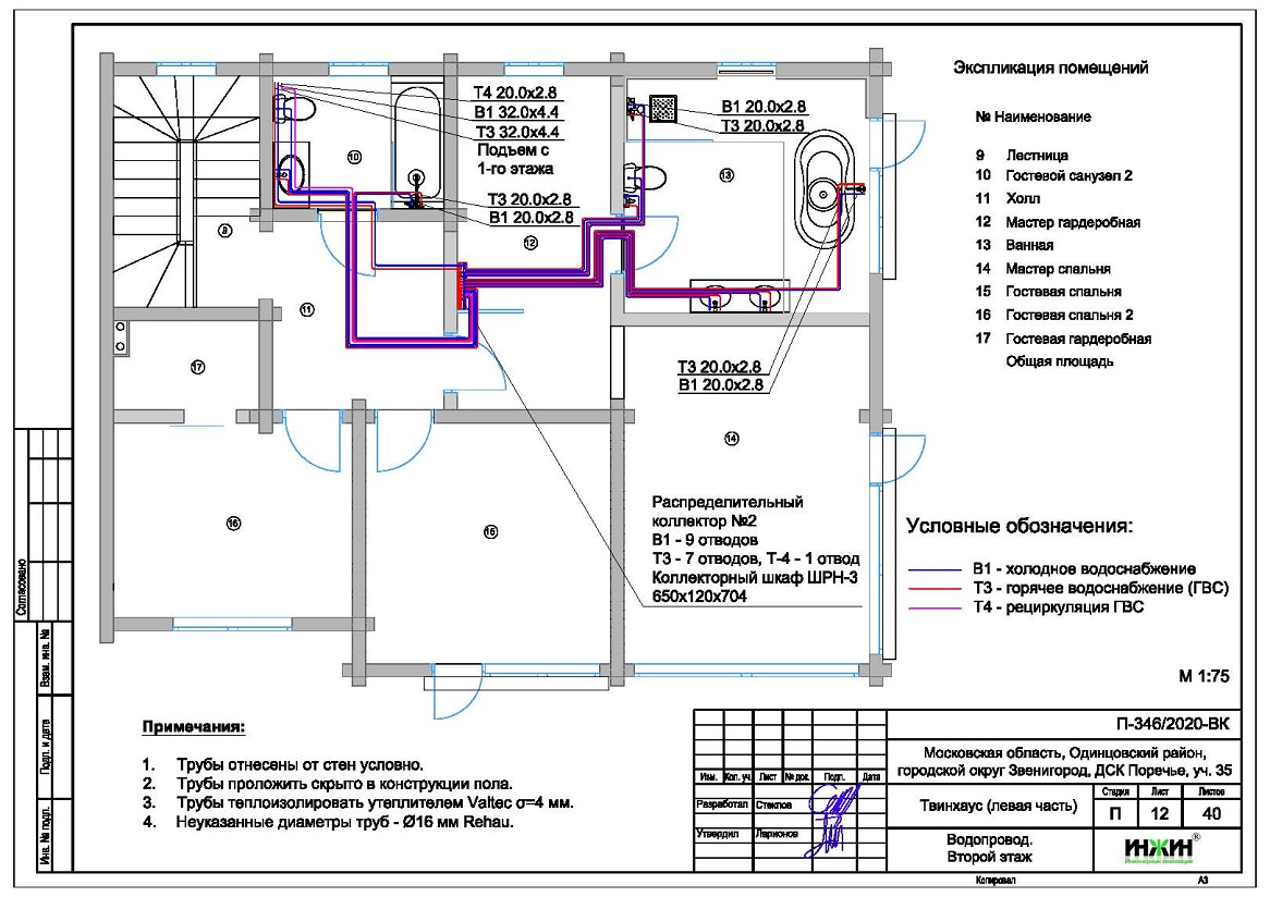
4. Комплект чертежей водоснабжения и канализации твинхауса 175 м.кв.
5. Типовые схемы системы отопления канализации и водоснабжения твинхауса 175 м.кв.
6. Теплотехнический расчет отопления твинхауса 175 м.кв.
7. Спецификация материалов и оборудования по отоплению, канализации и водоснабжению твинхауса в ДСК "Поречье".
Объем проекта отопления, канализации и водоснабжения деревянного твинхауса: 40 листов.
Описание проекта отопления, канализации и водоснабжения твинхауса в ДСК "Поречье" (правая часть).
Котельная твинхауса не проектировалась, теплоснабжение обеспечено индивидуальным тепловым пунктом поселка.
Отопление твинхауса в ДСК "Поречье" (проект отопления деревянного дома).
o Выполнен теплотехнический расчет отопления дома из клеенного бруса(утеплитель кровли - минеральная вата 200мм, пола - пенополистирол 150мм) с учетом теплопотерь через ограждающие конструкции при наружной температуре -28°С для Московской области (по СП 131.13330.2012), расчетный расход тепла на отопление составил 18,95 кВт, удельные теплопотери 102,5 Вт/м.кв.;
o Подобраны приборы для отопления дома: стальные панельные радиаторы KERMI с нижним подключением (из пола), также встроенные в пол конвекторы Varmann с принудительной конвекцией, а также стальное трубчатые радиаторы Zehnder Charleston Completto (цвет RAL 7016);
o Схема радиаторного отопления дома двухтрубная, коллекторно-лучевая, с принудительной циркуляцией теплоносителя и температурным графиком 80/60°С, коллекторы отопления Valtec, на 8 и 10 отводов;
o Трубы отопления из полиэтилена Rehau;
o Теплоизоляция трубопроводов отопления Энергофлекс, толщиной 9мм;
o Теплоноситель в системе радиаторного отопления дома – подготовленная вода, предусмотрены средства защиты от образования накипи.
Водяной теплый пол твинхауса в ДСК "Поречье" (правая часть) (проект теплого пола).
o Водяной теплый пол в доме предусмотрен на площади 22 м.кв., на контуре теплоснабжения ИТП;
o Трубопроводы теплого пола – полиэтилена Rehau, основание для укладки - плиты ENERGOFLOOR PIPELOCK (Энергофлекс);
o Регулирование температуры теплого пола - по помещениям, при помощи комнатных термостатов и сервоприводов на отводах коллектора.
Внутренний водопровод твинхауса в ДСК "Поречье" (проект водоснабжения).
o Схема внутреннего водоснабжения дома – коллекторно-лучевая с рециркуляцией горячей воды через полотенцесушители, выполнен расчет 28-и точек водоснабжения;
o Трубопроводы системы водоснабжения – из полиэтилена Rehau;
o Теплоизоляция трубопроводов Энергофлекс Супер, толщиной 9мм.
Внутренняя канализация (проект канализации) твинхауса в ДСК "Поречье" (правая часть).
o Безнапорная, отвод стоков от санитарно-технических приборов предусмотрен в септик;
o Произведен расчет 13-ти точек бытовой канализации для дома, предусмотрено два противовакуумных клапана 110мм и 50мм;
o Канализационные трубы Синикон, раструбные, из полипропилена, диаметром 50 и 110мм.
Заказать в нашей компании проект отопления, водоснабжения и канализации твинхауса из бруса со скидкой.
Для этого твинхауса в ДСК "Поречье" (правая часть) выполнен проект электрики и слаботочки.






















