Выполненные проекты
Проект электрики дома 227 м.кв.в Тульской области
Объект: деревянный дом (брус) общей площадью 227 м.кв. в КП "Подосинки Ленд" Ясногорского района Тульской области
Цена (стоимость) проекта электрики (электропроводки): 19 410 руб. со скидкой 10%, проект слаботочных кабельных линий - бесплатно.
Проект электрики выполнен: 18.12.2020
Состав проекта электрики дома в КП "Подосинки Ленд":
1. Пояснительная записка. Общие данные по электроснабжению и освещению частного дома в КП "Подосинки Ленд".
2. Однолинейные схемы вводного распределительного устройства и электрического распределительного щита дома 227 м.кв.
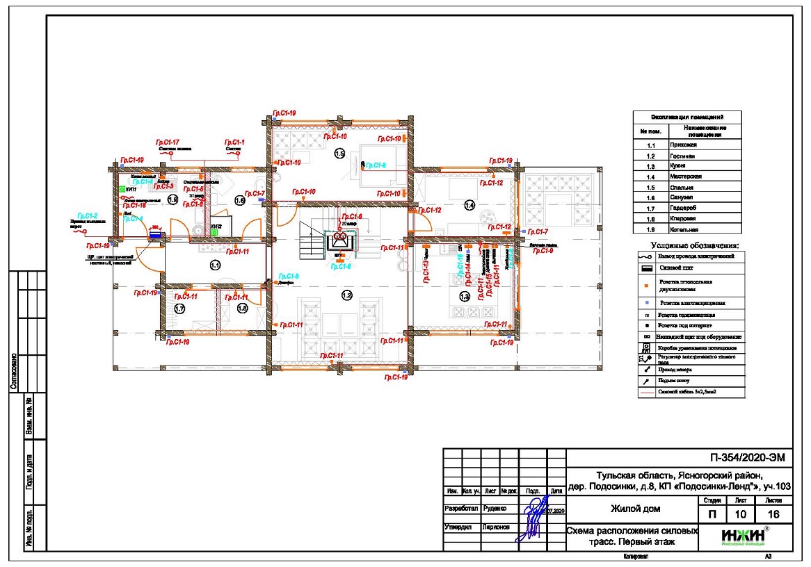
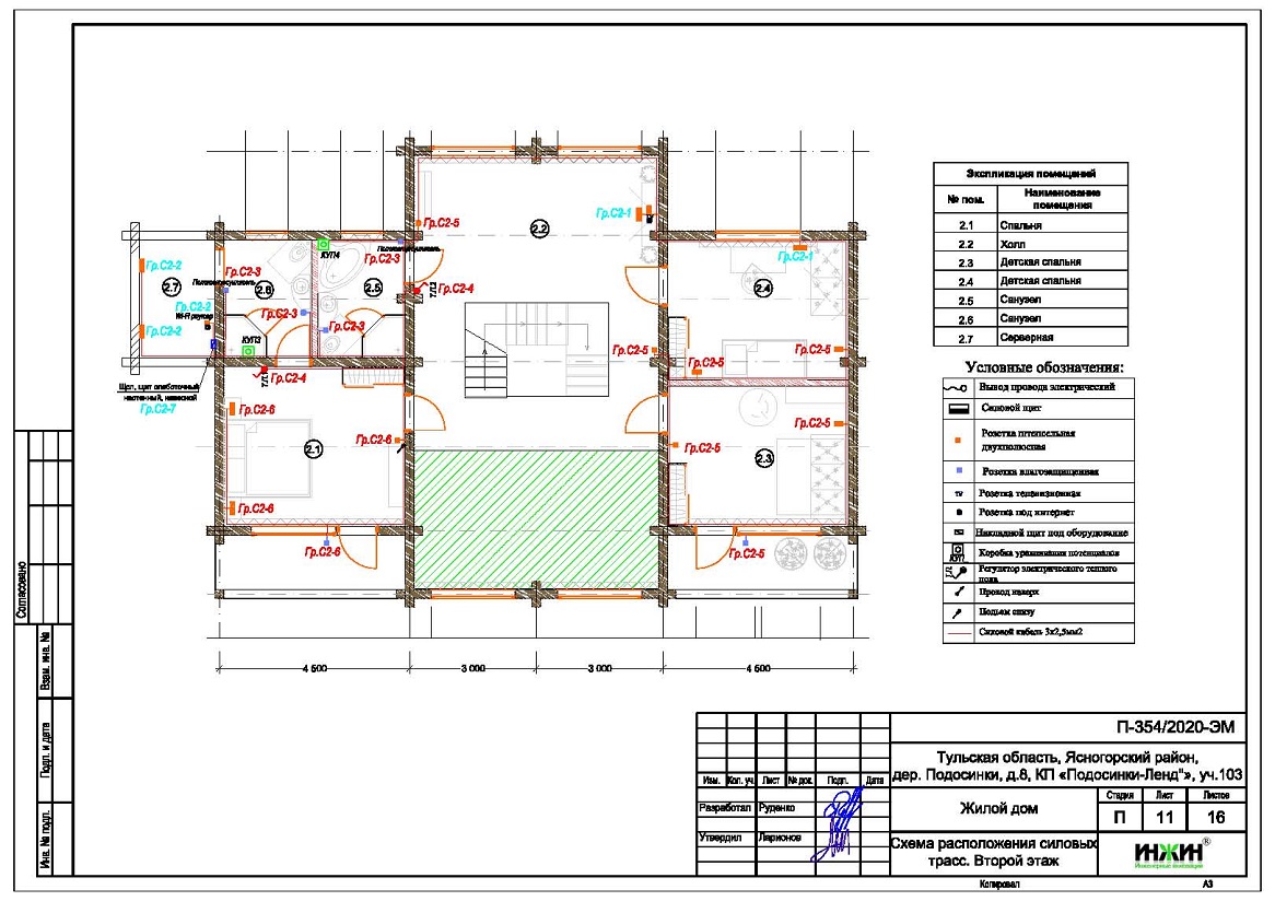
3. Чертежи электропроводки дома в КП "Подосинки Ленд".
4. Чертежи групповых осветительных сетей дома в КП "Подосинки Ленд".
5. Спецификация материалов и оборудования по электрике и электропроводке дома в КП "Подосинки Ленд".
Объем проекта электрики дома 227 м.кв.: 16 листов.
Проект электрики дома площадью 227 м.кв. в КП "Подосинки Ленд"- подробное описание.
Расчетные показатели по электроснабжению и освещению дома в КП "Подосинки Ленд".
o Расчетная электрическая мощность дома составила 23,77 кВт, с учетом коэффициента спроса 0,55, принятого согласно СП 256.1325800.2016;
o При расчете учтено силовое оборудование: септик, газовый котел, скважинный насос, электрический теплый пол и полотенцесушители, кондиционеры.
Распределительные электрические щиты дома площадью 227 м.кв.
o Проектом предусмотрен распределительный электрический щит, размещенный в техническом помещении;
o Автоматические выключатели, дифференциальные автоматы, рубильники и УЗО в щите – ABB, в количестве 38 шт. размещены в пристраиваемом корпусе.
Силовая кабельная сеть (электропроводка) дома в КП "Подосинки Ленд".
o Электропроводка дома предусмотрена с использованием кабелей ВВГ нг -LS с медными жилами в ПВХ-оболочке (не поддерживает горение);
o Общая протяженность линий электроснабжения и освещения – 1 550 метров, вводная кабельная линия - бронированный кабель 80 метров;
o Электропроводка предусмотрена скрытым способом, в металлорукаве в виниловой оболочке;
o Запроектировано 248 точек подключения розеток и выключателей освещения в доме;
o Предусмотрены слаботочные линии телевидения, общая протяженность - 555 метров.
Предусмотрена система резервного электропитания с использованием гибридного солнечного инвертора SILA VI 5000MH, солнечных батарей SIM305-24-DGPER и аккумулятора SunStonePower LiFePO4 48-200.
Заказать проект электрики дома дистанционно.
Для этого дома в КП "Подосинки Ленд" выполнен проект отопления, водоснабжения и канализации.



















